EasyManua.ls Logo

Wolf IG15/S - Opening Width 27 1; 2

Wolf IG15/S
120 pages
Print Icon
To Next Page IconTo Next Page
To Next Page IconTo Next Page
To Previous Page IconTo Previous Page
To Previous Page IconTo Previous Page
Loading...
Dimensions in
parentheses are in
millimeters unless
otherwise specified.
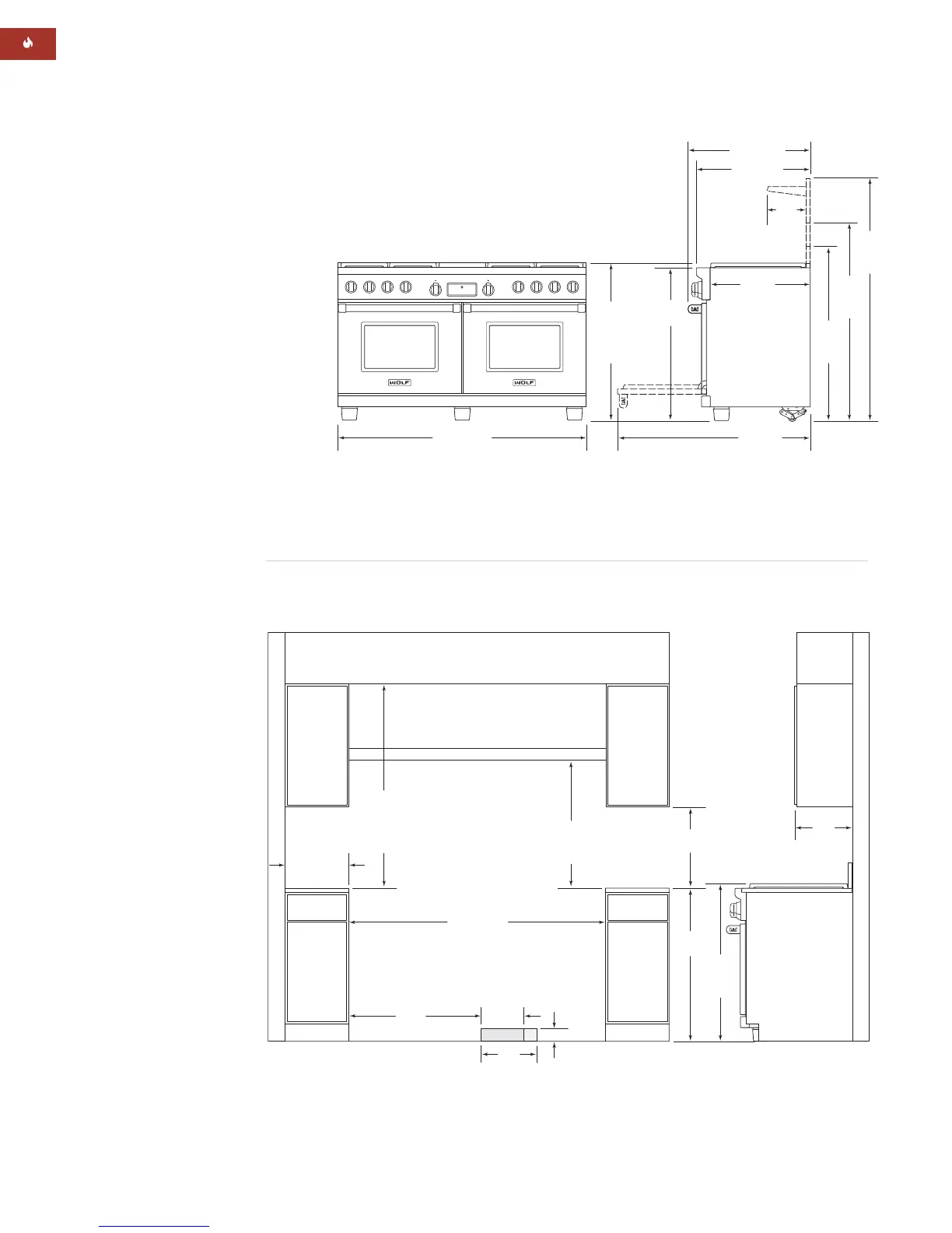
WOLF DUAL FUEL RANGES
70
13"
(330)
LOCATION OF
ELECTRICAL
36"
(914)
36
7
/8"
(937) TO
COOKING
SURFACE
VENTILATION HOOD
LOCATION OF GAS AND
ELECTRICAL EXTENDS 3" (76)
ON FLOOR FROM BACK WALL
3
1
/4"
(83)
31"
(787)
10" (254)
LOCATION
OF GAS
SUPPLY
60
1
/4" (1530)
FINISHED ROUGH OPENING WIDTH
18"min (457)
TO COUNTERTOP
30"min (762) TO
36"max (914)
TO BOTTOM OF
VENTILATION HOOD
36"min (914)
COUNTERTOP
TO COMBUSTIBLE
MATERIALS
44"min (1118)
FOR CHARBROILER
ISLAND INSTALLATIONS: 12" (305) MINIMUM
CLEARANCE FROM BACK OF RANGE TO
COMBUSTIBLE REAR WALL ABOVE COUNTERTOP
0" (0) TO NON-COMBUSTIBLE MATERIALS
13" max
(330)
6"min (152)
TO
COMBUSTIBLE
MATERIALS
(BOTH SIDES)
60
1
/8" (1527)
OVERALL WIDTH
41
7
/8"
(1064)
WITH 5"
RISER
46
7
/8"
(1191)
WITH 10"
RISER
56
7
/8"
(1445)
WITH 20"
RISER
47" (1194)
24
1
/4"
(616)
27
1
/2" (699)
9
1
/4"
(235)
29
1
/2" (749)
OVERALL DEPTH
LEGS AND CASTERS ALLOW
2
1
/8" (54) HEIGHT ADJUSTMENT
35
7
/8"
(911)
36
7
/8"
(937)
OVERALL
HEIGHT TO
COOKING
SURFACE
INSTALLATION SPECIFICATIONS
60" (1524) Dual Fuel Range
OVERALL DIMENSIONS
60" (1524) Dual Fuel Range
SPECIFICATIONS
60" (1524) Dual Fuel Range
Overall Width 60
1
/8" (1527)
Overall Height
(to cooking surface) 36
7
/8" (937)
Overall Depth 29
1
/2" (749)
Overall Oven Interior
Capacity (per oven) 4.5 cu ft (127 L)
Overall Interior Dim 25" x 16
1
/2" x 19"
(W x H x D) (635 x 419 x 483) each
Usable Interior Dim 21
1
/2"x16
1
/2"x16
3
/8"
(W x H x D) (546 x 419 x 416) each
Opening Width 60
1
/4" (1530)
Electrical Supply 240/208 V AC, 60 Hz
50 amp circuit
Electrical Rating 10.2 kW at 240 V
8.8 kW at 208 V
Total Amps 42.5
Shipping Weight 875950 lbs
(397431 kg)
MODEL OPTIONS
60" (1524) Dual Fuel Range
Six Surface Burners
Double Griddle DF606DG
French Top DF606F
Charbroiler and
Griddle DF606CG
Four Surface Burners
Charbroiler and
French Top DF604CF
Griddle and
French Top DF604GF
Natural gas models listed;
for LP gas add (-LP) to the
model number.
IMPORTANT NOTE: A
minimum 10" (254) riser is
required for all 60" (1524)
dual fuel range models
installed against a
combustible surface.
Unit dimensions may vary to ±
1
/
8
" (3).

Other manuals for Wolf IG15/S

Related product manuals