EasyManua.ls Logo

Wolf IG15/S - Page 75

Wolf IG15/S
120 pages
Print Icon
To Next Page IconTo Next Page
To Next Page IconTo Next Page
To Previous Page IconTo Previous Page
To Previous Page IconTo Previous Page
Loading...
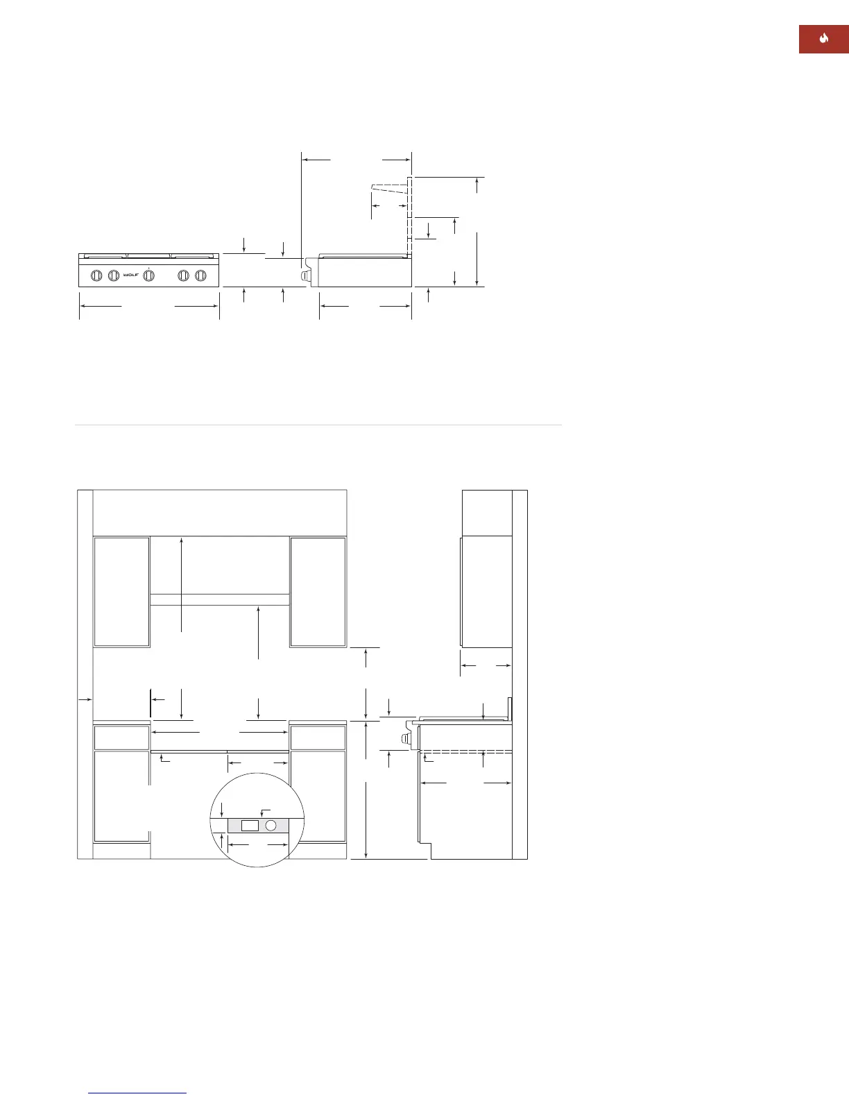
WOLF SEALED BURNER RANGETOPS
75
VENTILATION HOOD
36" (914)
FINISHED ROUGH OPENING WIDTH
30"min (762) TO
36"max (914)
TO BOTTOM OF
VENTILATION HOOD
36"min (914)
COUNTERTOP
TO COMBUSTIBLE
MATERIALS
44"min (1118)
FOR CHARBROILER
3
/4" (19)
PLATFORM
TOP VIEW
OF PLATFORM
E
G
16"
(406)
16" (406)
4" (102)
BACK
WALL
ISLAND INSTALLATIONS: 12" (305) MINIMUM
CLEARANCE FROM BACK OF RANGETOP TO
COMBUSTIBLE REAR WALL ABOVE COUNTERTOP
0" (0) TO NON-COMBUSTIBLE MATERIALS
LOCATION OF GAS AND
ELECTRICAL SUPPLY CUT-OUT
WITHIN SHADED AREA
THROUGH BOTTOM OF
PLATFORM
36"
(914)
18"min (457)
TO COUNTERTOP
3
/4" (19)
PLATFORM
8
1
/2"
(216)
COOKING
SURFACE
7
1
/2"
(191)
24" (610)
13" max
(330)
6"min (152)
TO
COMBUSTIBLE
MATERIALS
(BOTH SIDES)
35
7
/8" (911)
OVERALL WIDTH
24
1
/4"
(616)
12
1
/2"
(318)
WITH 5"
RISER
17
1
/2"
(445)
WITH 10"
RISER
27
1
/2"
(699)
WITH 20"
RISER
28
1
/2" (724)
OVERALL DEPTH
8
1
/2" (216)
OVERALL
HEIGHT
COOKING
SURFACE
7
1
/2"
(191)
9
1
/4"
(235)
INSTALLATION SPECIFICATIONS
36" (914) Sealed Burner Rangetop
OVERALL DIMENSIONS
36" (914) Sealed Burner Rangetop
Unit dimensions may vary to ±
1
/
8
" (3).
SPECIFICATIONS
36" (914) Sealed Burner Rangetop
Overall Width 35
7
/8" (911)
Overall Height
(to cooking surface) 8
1
/2" (216)
Overall Depth 28
1
/2" (724)
Opening Width 36" (914)
Opening Height 7
1
/2" (191)
(platform to countertop)
Opening Depth 24" (1219)
Electrical Supply 110/120 V AC
50/60 Hz
15 amp circuit
Power Cord 6' (1.8 m) 3-prong
Shipping Weight 190–220 lbs
(86–100 kg)
MODEL OPTIONS
36" (914) Sealed Burner
Rangetops
Six Surface
Burners SRT366
Four Surface Burners
Charbroiler SRT364C
Griddle SRT364G
Natural gas models listed;
for LP gas add (-LP) to the
model number.
IMPORTANT NOTE: A minimum
5" (127) riser is required when
installing Model SRT366
against a combustible surface.
A minimum 10" (254) riser is
required for charbroiler (C) or
griddle (G) models installed
against a combustible surface.
Refer to installation
instructions shipped
with each Wolf
product for detailed
specifications.

Other manuals for Wolf IG15/S

Related product manuals