EasyManua.ls Logo

Wolf IG15/S - Page 76

Wolf IG15/S
120 pages
Print Icon
To Next Page IconTo Next Page
To Next Page IconTo Next Page
To Previous Page IconTo Previous Page
To Previous Page IconTo Previous Page
Loading...
Dimensions in
parentheses are in
millimeters unless
otherwise specified.
WOLF SEALED BURNER RANGETOPS
76
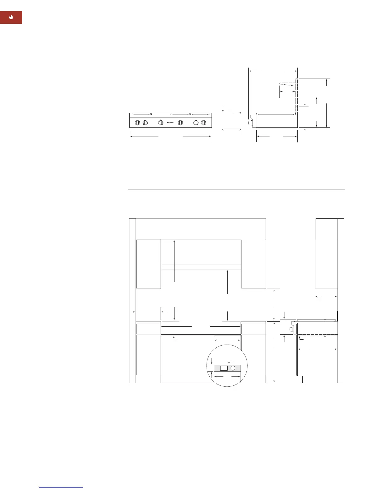
VENTILATION HOOD
48" (1219)
FINISHED ROUGH OPENING WIDTH
30"min (762) TO
36"max (914)
TO BOTTOM OF
VENTILATION HOOD
36"min (914)
COUNTERTOP
TO COMBUSTIBLE
MATERIALS
44"min (1118)
FOR CHARBROILER
LOCATION OF GAS AND
ELECTRICAL SUPPLY CUT-OUT
WITHIN SHADED AREA
THROUGH BOTTOM OF
PLATFORM
3
/4" (19) PLATFORM
TOP VIEW
OF PLATFORM
E
G
16"
(406)
16" (406)
4" (102)
BACK
WALL
ISLAND INSTALLATIONS: 12" (305) MINIMUM
CLEARANCE FROM BACK OF RANGETOP TO
COMBUSTIBLE REAR WALL ABOVE COUNTERTOP
0" (0) TO NON-COMBUSTIBLE MATERIALS
36"
(914)
18"min (457)
TO COUNTERTOP
3
/4" (19)
PLATFORM
8
1
/2"
(216)
COOKING
SURFACE
7
1
/2"
(191)
24" (610)
13" max
(330)
6"min (152)
TO
COMBUSTIBLE
MATERIALS
(BOTH SIDES)
47
7
/8" (1216)
OVERALL WIDTH
24
1
/4"
(616)
12
1
/2"
(318)
WITH 5"
RISER
17
1
/2"
(445)
WITH 10"
RISER
27
1
/2"
(699)
WITH 20"
RISER
28
1
/2" (724)
OVERALL DEPTH
8
1
/2" (216)
OVERALL
HEIGHT
COOKING
SURFACE
7
1
/2"
(191)
9
1
/4"
(235)
INSTALLATION SPECIFICATIONS
48" (1219) Sealed Burner Rangetop
OVERALL DIMENSIONS
48" (1219) Sealed Burner Rangetop
SPECIFICATIONS
48" (1219) Sealed Burner Rangetop
Overall Width 47
7
/8" (1216)
Overall Height
(to cooking surface) 8
1
/2" (216)
Overall Depth 28
1
/2" (724)
Opening Width 48" (1219)
Opening Height 7
1
/2" (191)
(platform to countertop)
Opening Depth 24" (1219)
Electrical Supply 110/120 V AC
50/60 Hz
15 amp circuit
Power Cord 6' (1.8 m) 3-prong
Shipping Weight 240–280 lbs
(109–127 kg)
MODEL OPTIONS
48" (1219) Sealed Burner
Rangetops
Six Surface Burners
Charbroiler SRT486C
Griddle SRT486G
Four Surface Burners
Charbroiler and
Griddle SRT484CG
Double Griddle SRT484DG
French Top SRT484F
Natural gas models listed;
for LP gas add (-LP) to the
model number.
IMPORTANT NOTE: A minimum
10" (254) riser is required for
charbroiler (C) or griddle (G)
models installed against a
combustible surface.
Unit dimensions may vary to ±
1
/
8
" (3).
Refer to installation
instructions shipped
with each Wolf
product for detailed
specifications.

Other manuals for Wolf IG15/S

Related product manuals