EasyManua.ls Logo

Wolf IG15/S - Page 68

Wolf IG15/S
120 pages
Print Icon
To Next Page IconTo Next Page
To Next Page IconTo Next Page
To Previous Page IconTo Previous Page
To Previous Page IconTo Previous Page
Loading...
Dimensions in
parentheses are in
millimeters unless
otherwise specified.
WOLF DUAL FUEL RANGES
68
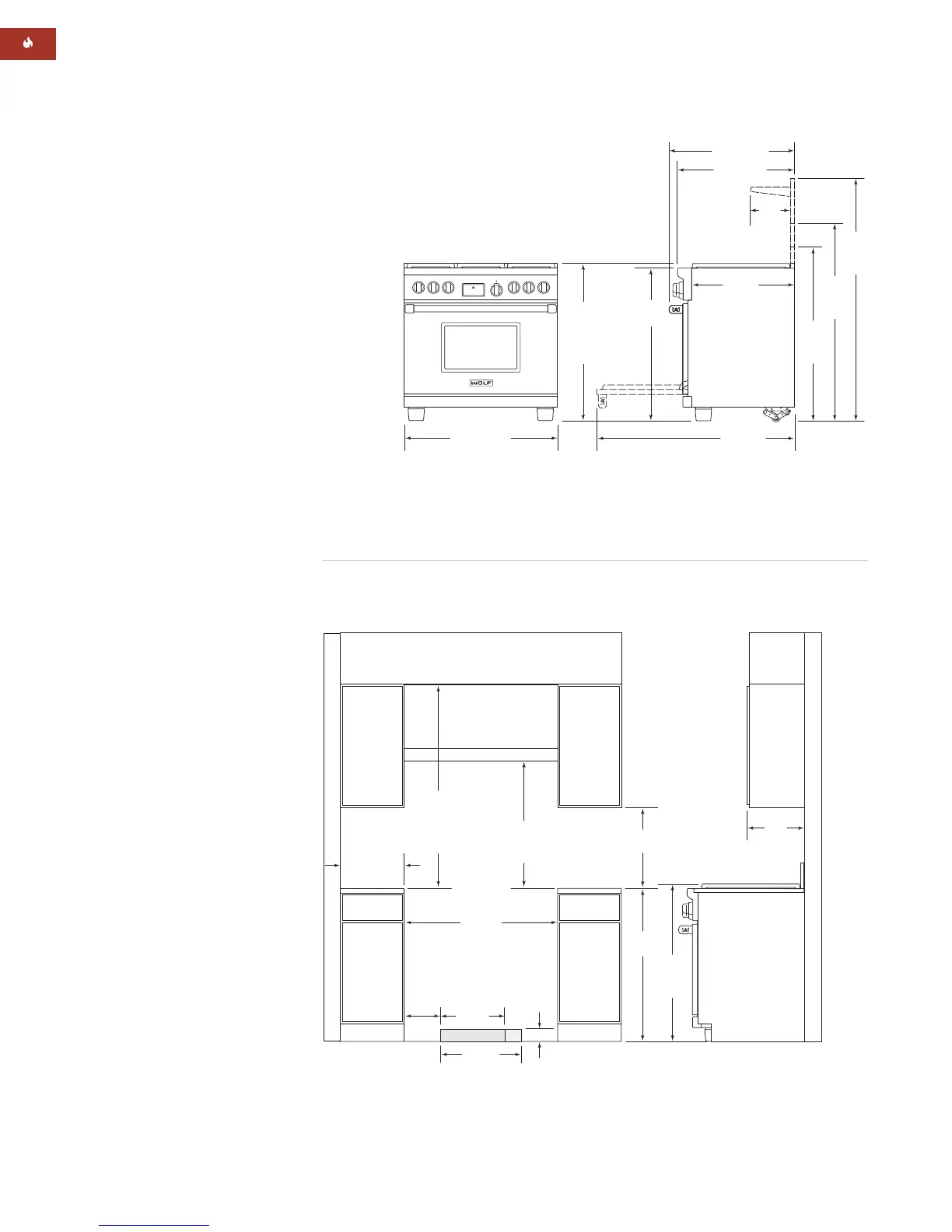
19" (483)
LOCATION OF
ELECTRICAL
36"
(914)
36
7
/8"
(937) TO
COOKING
SURFACE
VENTILATION HOOD
18"min (457)
TO COUNTERTOP
LOCATION OF GAS AND
ELECTRICAL EXTENDS 3" (76)
ON FLOOR FROM BACK WALL
36" (914)
FINISHED ROUGH OPENING WIDTH
3
1
/4"
(83)
8
1
/2"
(216)
15" (381)
LOCATION
OF GAS
SUPPLY
30"min (762) TO
36"max (914)
TO BOTTOM OF
VENTILATION HOOD
36"min (914)
COUNTERTOP
TO COMBUSTIBLE
MATERIALS
44"min (1118)
FOR CHARBROILER
ISLAND INSTALLATIONS: 12" (305) MINIMUM
CLEARANCE FROM BACK OF RANGE TO
COMBUSTIBLE REAR WALL ABOVE COUNTERTOP
0" (0) TO NON-COMBUSTIBLE MATERIALS
13" max
(330)
6"min (152)
TO
COMBUSTIBLE
MATERIALS
(BOTH SIDES)
35
7
/8" (911)
OVERALL WIDTH
41
7
/8"
(1064)
WITH 5"
RISER
46
7
/8"
(1191)
WITH 10"
RISER
56
7
/8"
(1445)
WITH 20"
RISER
47" (1194)
24
1
/4"
(616)
27
1
/2" (699)
9
1
/4"
(235)
29
1
/2" (749)
OVERALL DEPTH
LEGS AND CASTERS ALLOW
2
1
/8" (54) HEIGHT ADJUSTMENT
35
7
/8"
(911)
36
7
/8"
(937)
OVERALL
HEIGHT TO
COOKING
SURFACE
INSTALLATION SPECIFICATIONS
36" (914) Dual Fuel Range
OVERALL DIMENSIONS
36" (914) Dual Fuel Range
SPECIFICATIONS
36" (914) Dual Fuel Range
Overall Width 35
7
/8" (911)
Overall Height
(to cooking surface) 36
7
/8" (937)
Overall Depth 29
1
/2" (749)
Overall Oven
Interior Capacity 5.4 cu ft (153 L)
Overall Interior Dim 30" x 16
1
/2" x 19"
(W x H x D) (762 x 419 x 483)
Usable Interior Dim 26
1
/2"x 16
1
/2"x 16
3
/8"
(W x H x D) (673 x 419 x 416)
Opening Width 36" (914)
Electrical Supply 240/208 V AC, 60 Hz
30 amp circuit
Electrical Rating 5.2 kW at 240 V
4.5 kW at 208 V
Total Amps 21.7
Shipping Weight 445470 lbs
(202213 kg)
MODEL OPTIONS
36" (914) Dual Fuel Range
Six Surface
Burners DF366
Four Surface Burners
Charbroiler DF364C
Griddle DF364G
Natural gas models listed;
for LP gas add (-LP) to the
model number.
IMPORTANT NOTE: A
minimum 10" (254) riser is
required when installing a
36" (914) dual fuel range
with a charbroiler or griddle
against a combustible
surface.
Unit dimensions may vary to ±
1
/
8
" (3).

Other manuals for Wolf IG15/S

Related product manuals