EasyManua.ls Logo

Wolf IG15/S - Page 80

Wolf IG15/S
120 pages
Print Icon
To Next Page IconTo Next Page
To Next Page IconTo Next Page
To Previous Page IconTo Previous Page
To Previous Page IconTo Previous Page
Loading...
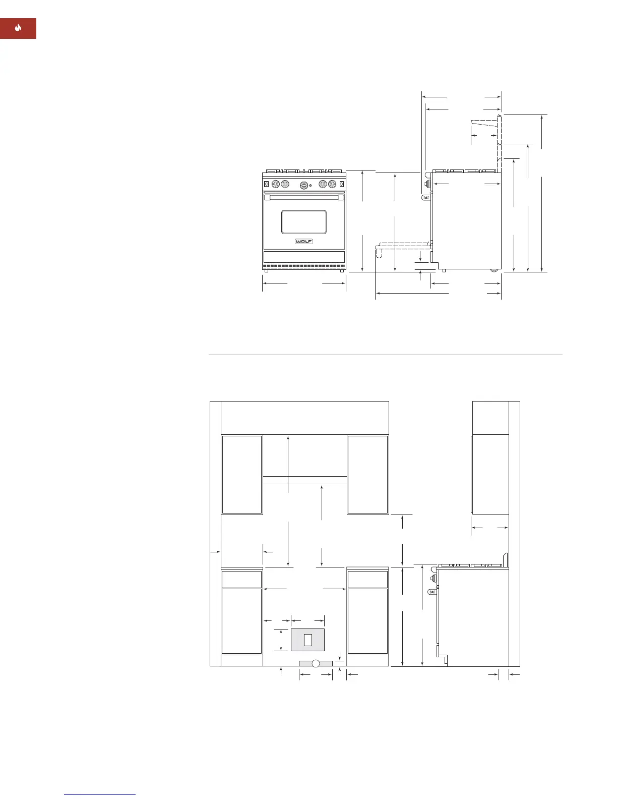
Dimensions in
parentheses are in
millimeters unless
otherwise specified.
WOLF GAS RANGES
80
30"min (762)
COUNTERTOP
TO COMBUSTIBLE
MATERIALS
30"(762) TO 36"(914)
COUNTERTOP
TO BOTTOM OF
VENTILATION HOOD
VENTILATION
HOOD
30
1
/4" (768)
FINISHED ROUGH
OPENING WIDTH
ISLAND INSTALLATIONS: 12" (305) MINIMUM CLEARANCE FROM BACK
OF RANGE TO COMBUSTIBLE REAR WALL ABOVE COUNTERTOP –
0" (0) TO NON-COMBUSTIBLE MATERIALS
G
5"
(127)
2"
(51)
12"
(305)
E
12"
(305)
10"
(254)
5
1
/2"
(140)
8"
(203)
LOCATION OF GAS SUPPLY EXTENDS
3" (76) ON FLOOR FROM BACK WALL
3"
(76)
36"
(914)
18"min (457)
TO COUNTERTOP
37"
(940) TO
COOKING
SURFACE
13" max
(330)
6"min (152)
TO
COMBUSTIBLE
MATERIALS
(BOTH SIDES)
30" (762)
OVERALL WIDTH
36"
(914)
37" (940)
OVERALL
HEIGHT TO
COOKING
SURFACE
2
1
/2"
(64)
24
1
/2" (622)
25
1
/4" (641)
LEGS AND CASTERS ALLOW
1" (25) HEIGHT ADJUSTMENT
43
3
/8" (1102)
46
3
/4"
(1187)
WITH 10"
RISER
56
3
/4"
(1441)
WITH 20"
RISER
27
1
/4" (692)
9
1
/4"
(235)
28
3
/8" (721)
OVERALL DEPTH
41
3
/4"
(1060)
WITH 5"
RISER
INSTALLATION SPECIFICATIONS
30" (762) Gas Range
OVERALL DIMENSIONS
30" (762) Gas Range
SPECIFICATIONS
30" (762) Gas Range
Overall Width 30" (762)
Overall Height
(to cooking surface) 37" (940)
Overall Depth 28
3
/8" (721)
Overall Oven
Interior Capacity 4.4 cu ft (125 L)
Overall Interior Dim 24" x 18
5
/8" x 17"
(W x H x D) (610 x 473 x 432)
Usable Interior Dim 24" x 16
1
/2" x 17"
(W x H x D) (610 x 419 x 432)
Opening Width 30
1
/4" (768)
Electrical Supply 110/120 V AC, 50/60 Hz
15 amp circuit
Power Cord 6' (1.8 m) 3-prong
Shipping Weight 325 lbs (147 kg)
MODEL OPTIONS
30" (762) Gas Range
Four Surface
Burners R304
Natural gas model listed;
for LP gas add (-LP) to the
model number.
IMPORTANT NOTE: A
minimum 5" (127) riser is
required when installing a
30" (762) gas range against
a combustible surface.
Unit dimensions may vary to ±
1
/
8
" (3).

Other manuals for Wolf IG15/S

Related product manuals