EasyManua.ls Logo

Wolf IG15/S - Page 82

Wolf IG15/S
120 pages
Print Icon
To Next Page IconTo Next Page
To Next Page IconTo Next Page
To Previous Page IconTo Previous Page
To Previous Page IconTo Previous Page
Loading...
WOLF GAS RANGES
82
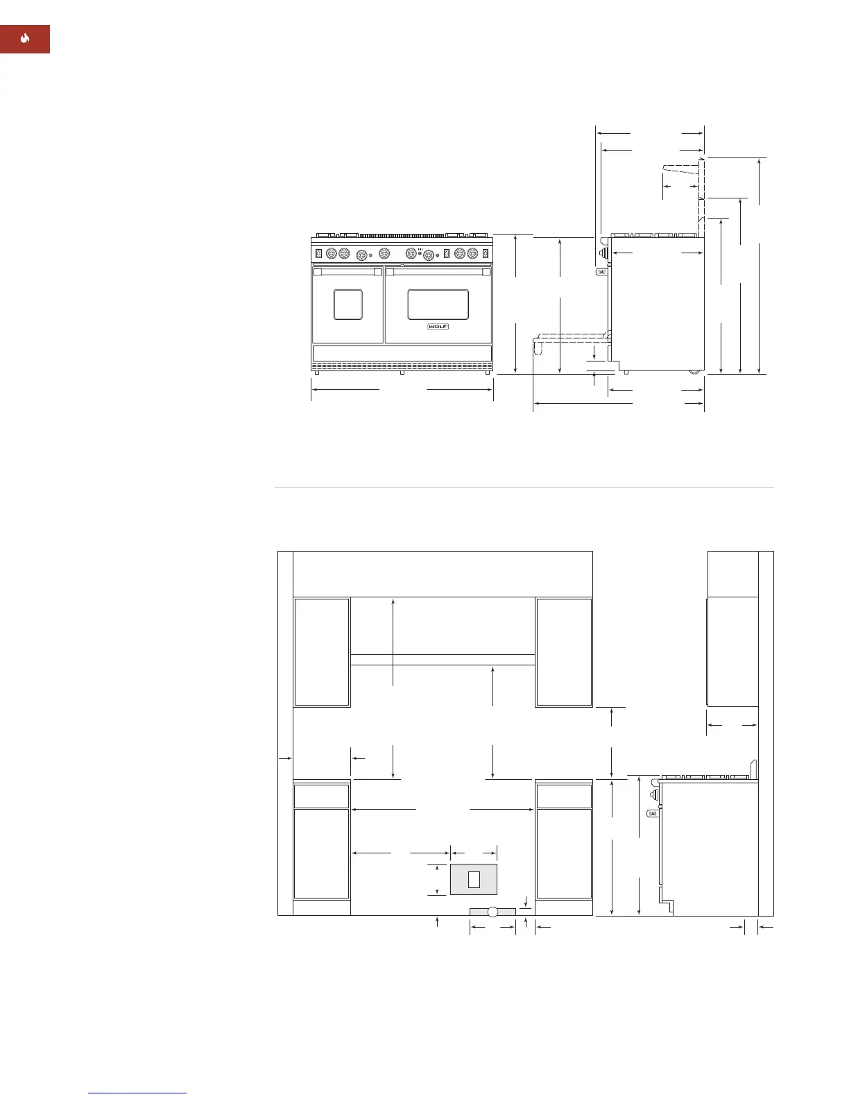
30"min (762)
COUNTERTOP
TO COMBUSTIBLE
MATERIALS
36"min (914)
FOR CHARBROILER
30"(762) TO 36"(914)
COUNTERTOP TO
BOTTOM OF
VENTILATION HOOD
VENTILATION HOOD
LOCATION OF GAS SUPPLY EXTENDS
3" (76) ON FLOOR FROM BACK WALL
48
1
/4" (1226)
FINISHED ROUGH OPENING WIDTH
3"
(76)
ISLAND INSTALLATIONS: 12" (305) MINIMUM CLEARANCE FROM BACK
OF RANGE TO COMBUSTIBLE REAR WALL ABOVE COUNTERTOP –
0" (0) TO NON-COMBUSTIBLE MATERIALS
26"
(660)
G
5"
(127)
2"
(51)
12"
(305)
E
12"
(305)
5
1
/2"
(140)
8"
(203)
36"
(914)
18"min (457)
TO COUNTERTOP
37"
(940) TO
COOKING
SURFACE
13" max
(330)
6"min (152)
TO
COMBUSTIBLE
MATERIALS
(BOTH SIDES)
48" (1219)
OVERALL WIDTH
36"
(914)
37" (940)
OVERALL
HEIGHT TO
COOKING
SURFACE
2
1
/2"
(64)
24
1
/2" (622)
25
1
/4" (641)
LEGS AND CASTERS ALLOW
1" (25) HEIGHT ADJUSTMENT
43
3
/8" (1102)
46
3
/4"
(1187)
WITH 10"
RISER
56
3
/4"
(1441)
WITH 20"
RISER
27
1
/4" (692)
9
1
/4"
(235)
28
3
/8" (721)
OVERALL DEPTH
41
3
/4"
(1060)
WITH 5"
RISER
INSTALLATION SPECIFICATIONS
48" (1219) Gas Range
OVERALL DIMENSIONS
48" (1219) Gas Range
SPECIFICATIONS
48" (1219) Gas Range
Overall Width 48" (1219)
Overall Height
(to cooking surface) 37" (940)
Overall Depth 28
3
/8" (721)
Large Oven
Overall Interior Cap 4.4 cu ft (125 L)
Overall Interior Dim 24" x 18
5
/8" x 17"
(W x H x D) (610 x 473 x 432)
Usable Interior Dim 24" x 16
1
/2" x 17"
(W x H x D) (610 x 419 x 432)
Small Oven
Overall Interior Cap 2.5 cu ft (71 L)
Overall Interior Dim 13
1
/2"x 18
5
/8" x 17"
(W x H x D) (343 x 473 x 432)
Usable Interior Dim 13
1
/2"x 16
1
/2" x 17"
(W x H x D) (343 x 419 x 432)
Opening Width 48
1
/4" (1226)
Electrical Supply 110/120 V AC, 50/60 Hz
15 amp circuit
Power Cord 6' (1.8 m) 3-prong
Shipping Weight 650750 lbs
(295340 kg)
MODEL OPTIONS
48" (1219) Gas Range
Eight Surface
Burners R488
Six Surface Burners
Charbroiler R486C
Griddle R486G
Four Surface Burners
Charbroiler and
Griddle R484CG
Double Griddle R484DG
French Top R484F
Natural gas models listed;
for LP gas add (-LP) to the
model number.
IMPORTANT NOTE: A
minimum 5" (127) riser is
required when installing a gas
range against a combustible
surface. A minimum 10" (254)
riser is required when
installing a gas range with a
charbroiler or griddle against
a combustible surface.
Unit dimensions may vary to ±
1
/
8
" (3).

Other manuals for Wolf IG15/S

Related product manuals