EasyManua.ls Logo

Wolf IG15/S - Page 87

Wolf IG15/S
120 pages
Print Icon
To Next Page IconTo Next Page
To Next Page IconTo Next Page
To Previous Page IconTo Previous Page
To Previous Page IconTo Previous Page
Loading...
WOLF GAS RANGETOPS
87
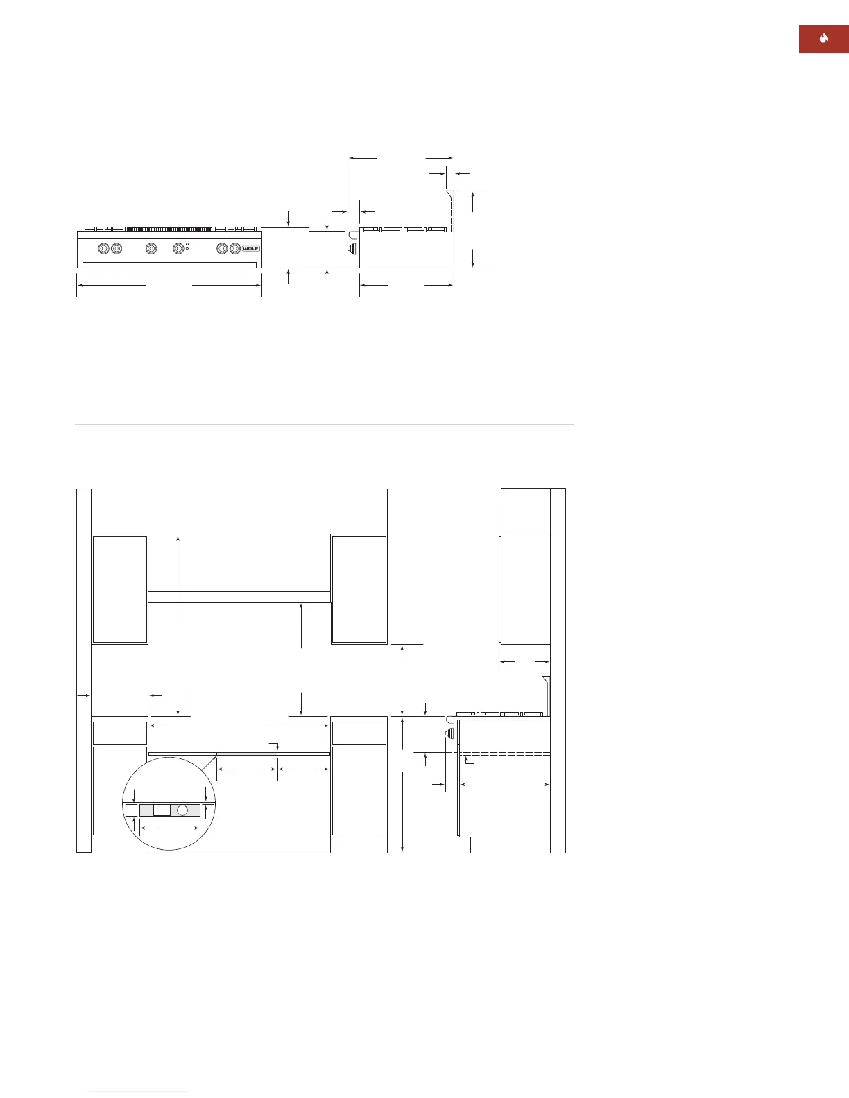
VENTILATION HOOD
14"
(356)
16"
(406)
LOCATION OF GAS AND
ELECTRICAL SUPPLY CUT-OUT
WITHIN SHADED AREA
THROUGH BOTTOM OF
PLATFORM
TOP VIEW
OF PLATFORM
E
G
16"
(406)
3"
(76)
BACK WALL
1
/2"
(13)
48
1
/4" (1226)
FINISHED ROUGH OPENING WIDTH
3
/4" (19) PLATFORM
6"min (152)
TO
COMBUSTIBLE
MATERIALS
(BOTH SIDES)
30"min (762)
TO
36"max (914)
COUNTERTOP
TO BOTTOM OF
VENTILATION HOOD
30"min (762)
COUNTERTOP
TO COMBUSTIBLE
MATERIALS
36"min (914)
FOR CHARBROILER
2
3
/4"
(70)
ISLAND INSTALLATIONS: 12" (305) MINIMUM
CLEARANCE FROM BACK OF RANGETOP TO
COMBUSTIBLE REAR WALL ABOVE COUNTERTOP
0" (0) TO NON-COMBUSTIBLE MATERIALS
3
/4" (19) PLATFORM
9
1
/2" (241)
OPENING
HEIGHT
24" (610)
13" max
(330)
36"
(914)
18"min (457)
TO COUNTERTOP
48" (1219)
OVERALL WIDTH
20" (508)
WITH
10
1
/2"
RISER
24" (610)
27
1
/4" (692)
OVERALL DEPTH
TO KNOBS
2
3
/4" (70)
10
1
/2" (267)
OVERALL
HEIGHT
9
1
/2"
(241)
2"
(51)
COOKING
SURFACE
INSTALLATION SPECIFICATIONS
48" (1219) Gas Rangetop
OVERALL DIMENSIONS
48" (1219) Gas Rangetop
SPECIFICATIONS
48" (1219) Gas Rangetop
Overall Width 48" (1219)
Overall Height
(to cooking surface) 10
1
/2" (267)
Overall Depth 27
1
/4" (692)
Opening Width 48
1
/4" (1226)
Opening Height 9
1
/2" (241)
(platform to countertop)
Electrical Supply 110/120 V AC, 50/60 Hz
15 amp circuit
Power Cord 6' (1.8 m) 3-prong
Shipping Weight 220280 lbs
(100127 kg)
MODEL OPTIONS
48" (1219) Gas Rangetop
Eight Surface
Burners RT488
Six Surface Burners
Charbroiler RT486C
Griddle RT486G
Four Surface Burners
Charbroiler and
Griddle RT484CG
Double Griddle RT484DG
French Top RT484F
Natural gas models listed;
for LP gas add (-LP) to the
model number.
IMPORTANT NOTE: In non-
island applications, a riser is
required when installing a 48"
(1219) gas rangetop against a
combustible surface.
Unit dimensions may vary to ±
1
/
8
" (3).
Refer to installation
instructions shipped
with each Wolf
product for detailed
specifications.

Other manuals for Wolf IG15/S

Related product manuals