EasyManua.ls Logo

Wolf IG15/S - Page 99

Wolf IG15/S
120 pages
Print Icon
To Next Page IconTo Next Page
To Next Page IconTo Next Page
To Previous Page IconTo Previous Page
To Previous Page IconTo Previous Page
Loading...
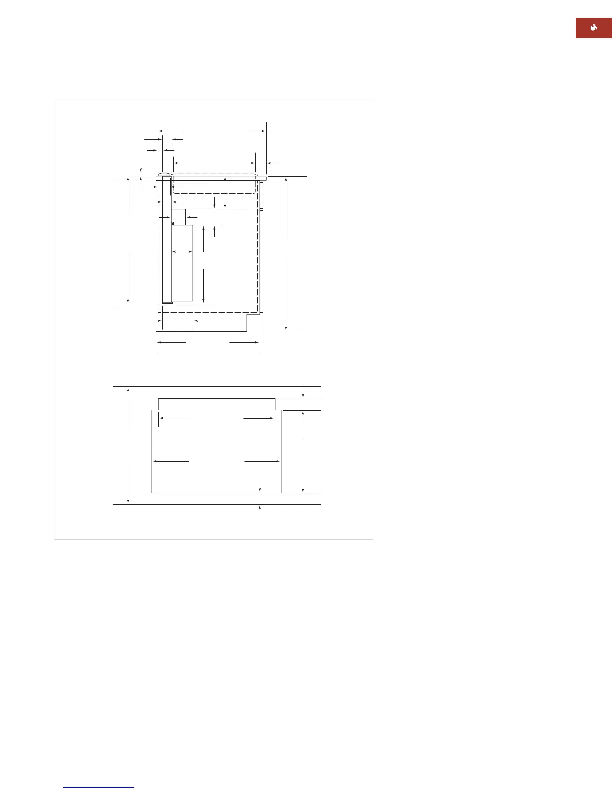
WOLF COOKTOP VENTILATION
99
2
1
/8
" (54)
19
1
/4
" (489)
COOKTOP CUT-OUT
DEPTH
27" (686)
FOR MODEL DD30
33" (838)
FOR MODEL DD36
42" (1067)
FOR MODEL DD45
36"
(914)
2
3
/8
" (60)
25
1
/8
"min (638)
OF FLAT COUNTERTOP
*
.344"
29
5
/16
"
(745)
COUNTERTOP
TO BOTTOM OF
AIR BOX
18"
(457)
3
5
/8
"
(92)
3
1
/4
"
(83)
5"
(127)
7
11
/16
"
(197)
5
/8
"
(16)
2
1
/2
"min
(64)
WITH NO
RAISED LIP
*
*
AREAS OF POTENTIAL INTERFERENCE
2
1
/2
"min (64)
2
3
/4
" (70)
COOKTOP CUT-OUT
WIDTH
24"min (610)
CABINET DEPTH
1
3
/4
"min (44)
BACK EDGE
OF COOKTOP
TO INSIDE OF
CABINET BACK
*
7
1
/8
"
(181)
25
1
/8
"min
(638)
FLAT
COUNTERTOP
SPACE
19
1
/4
"
(489)
COUNTERTOP TOP VIEW
INSTALLATION SPECIFICATIONS
Downdraft Systems
SPECIFICATIONS
Models DD30I / DD30R
Overall Width 30" (762)
Overall Height 9
1
/16" (230)
(above countertop)
Overall Depth 2
3
/8" (60)
Duct Size (DD30I) 3
1
/4" (83) x 10" (254)
Duct Size (DD30R) 3
1
/4" (83) x 14" (356)
Discharge Adjustable
Blower (DD30I) 500 CFM Internal
Blower Options* 1100 CFM In-Line,
(DD30R) 900, 1200 or 1500 CFM
Remote
Electrical Supply 110/120 V AC, 60 Hz
15 amp circuit
Power Cord 2
1
/2' (.8 m) 3-prong
Shipping Weight 75 lbs (34 kg)
SPECIFICATIONS
Models DD36I / DD36R
Overall Width 36" (914)
Overall Height 9
1
/16" (230)
(above countertop)
Overall Depth 2
3
/8" (60)
Duct Size (DD36I) 3
1
/4" (83) x 10" (254)
Duct Size (DD36R) 3
1
/4" (83) x 14" (356)
Discharge Adjustable
Blower (DD36I) 500 CFM Internal
Blower Options* 1100 CFM In-Line,
(DD36R) 900, 1200 or 1500 CFM
Remote
Electrical Supply 110/120 V AC, 60 Hz
15 amp circuit
Power Cord 2
1
/2' (.8 m) 3-prong
Shipping Weight 80 lbs (36 kg)
SPECIFICATIONS
Models DD45I / DD45R
Overall Width 45
1
/2" (1156)
Overall Height 9
1
/16" (230)
(above countertop)
Overall Depth 2
3
/8" (60)
Duct Size (DD45I) 3
1
/4" (83) x 10" (254)
Duct Size (DD45R) 3
1
/4" (83) x 14" (356)
Discharge Adjustable
Blower (DD45I) 500 CFM Internal
Blower Options* 1100 CFM In-Line,
(DD45R) 900, 1200 or 1500 CFM
Remote
Electrical Supply 110/120 V AC, 60 Hz
15 amp circuit
Power Cord 2
1
/2' (.8 m) 3-prong
Shipping Weight 85 lbs (39 kg)
*Refer to the cooktop ventilation
recommendations on pages 115–116.
Refer to installation
instructions shipped
with each Wolf
product for detailed
specifications.

Other manuals for Wolf IG15/S

Related product manuals