EasyManua.ls Logo

Wolf SPU-1-200 - Technische Daten

Wolf SPU-1-200
Print Icon
To Next Page IconTo Next Page
To Next Page IconTo Next Page
To Previous Page IconTo Previous Page
To Previous Page IconTo Previous Page
Loading...
3043757_201801 3
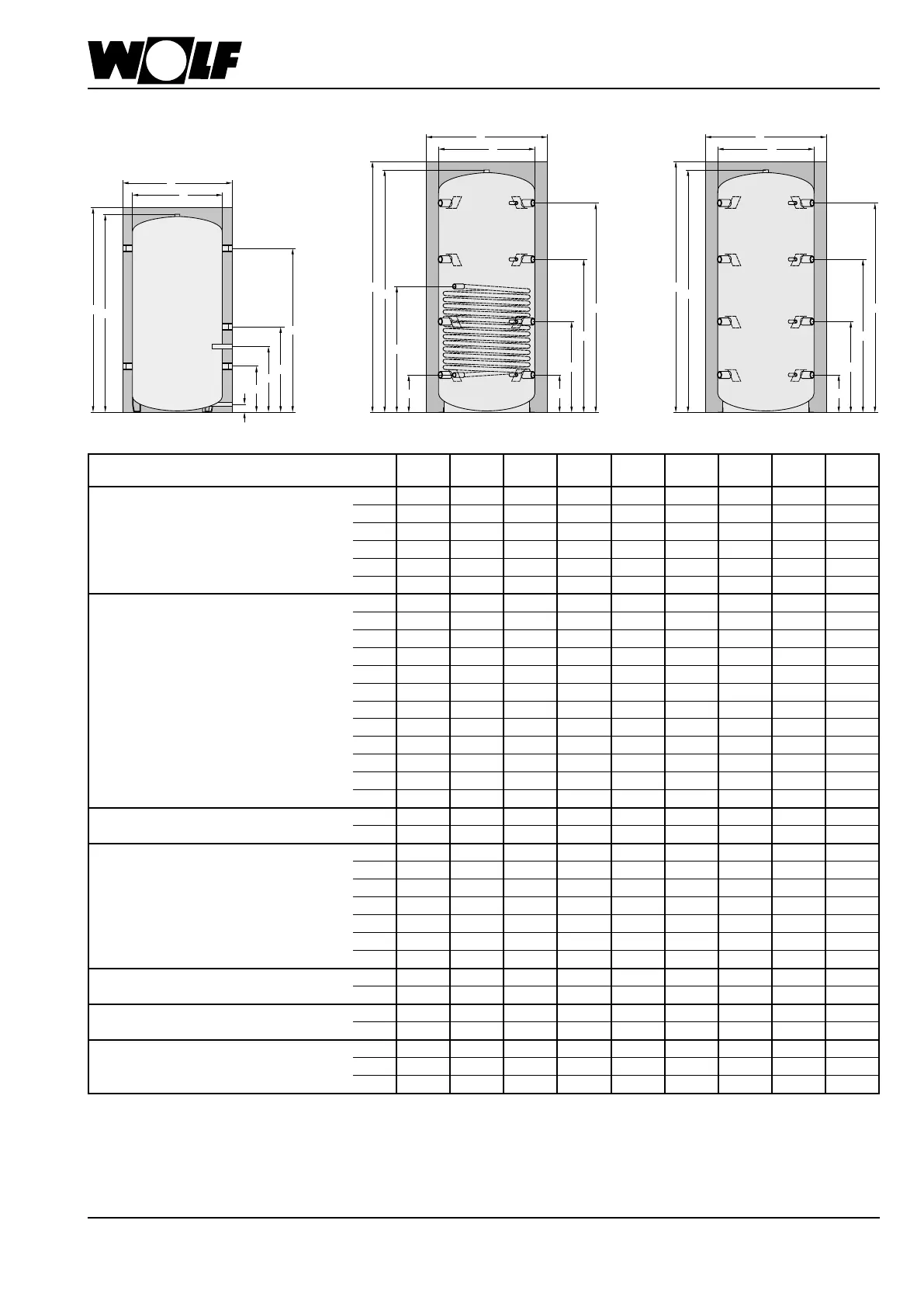
Technische Daten
TYP SPU-1
SPU-2-W / SPU-2
200
-
-
500
-
800
-
1000
-
1500
-
2000
-
3000
-
4000
-
5000
Speicherinhalt SPU-1 Ltr. 200 - - - - - - - -
SPU-2-W Ltr. - 480 780 960 1500 - - - -
SPU-2 Ltr. - 490 795 980 1530 1950 2700 3950 4950
Bereitschaftswärmeaufwand SPU-1
kWh/24h
1,55 - - - - - - - -
SPU-2-W
kWh/24h
- 2,03 2,59 3,02 3,67 - - - -
SPU-2
kWh/24h
- 2,03 2,59 3,02 3,67 4,28 - - -
Anschluss / Thermometer / Fühlerleiste A mm 256 220 260 310 380 395 435 490 510
Anschluss / Thermometer / Fühlerleiste B mm 460 620 630 745 825 950 995 1050 1135
Tauchhülse C mm 358 - - - - - - - -
Anschluss / Thermometer / Fühlerleiste C mm - 1010 1030 1250 1350 1510 1555 1610 1760
Anschluss / Thermometer / Fühlerleiste D mm 910 1390 1430 1710 1760 2070 2115 2170 2390
Rücklauf Heizwendel * E mm - 220 260 310 375 - - - -
Vorlauf Heizwendel * F mm - 715 845 1030 1175 - - - -
Höhe ohne Wärmedämmung / Entlüftung G mm 1114 1640 1700 2050 2150 2400 2480 2590 2830
Höhe mit Wärmedämmung H mm 1140 1725 1785 2135 2235 2480 2560 2670 2910
Durchmesser mit Wärmedämmung I mm 610 850 990 990 1200 1300 1450 1700 1800
Durchmesser ohne Wärmedämmung J mm 500 650 790 790 1000 1100 1250 1500 1600
Entleerung K mm 85 - - - - - - - -
Kippmaß mit Wärmedämmung mm 1310 1910 2050 2360 2540 2800 2950 3150 3400
Kippmaß ohne Wärmedämmung mm - 1670 1750 2090 2270 2550 2650 2850 3100
Anschluss (5 Stück) Rp 1½“ - - - - - - - -
Anschluss (8 Stück) Rp - 1½“ 1½“ 1½“ 1½“ 2“ 2“ 2“ 2“
Tauchhülse Rp ½“ - - - - - - - -
Thermometer (4 Stück) Rp - ½“ ½“ ½“ ½“ ½“ ½“ ½“ ½“
Entlüftung Rp 1“ 1½“ 1½“ 1½“ 1½“ 1¼“ 1¼“ 1¼“ 1¼“
Entleerung Rp ½“ - - - - - - - -
Anschluss Heizwendel * Rp - 1“ 1“ 1“ 1“ - - - -
Wärmetauscheräche * - 1,8 2,4 3,0 3,6 - - - -
Wärmetauscherinhalt * Ltr. - 11 15 19 22 - - - -
max. Betriebsüberdruck primär * / sekundär bar - / 3 10 / 3 10 / 3 10 / 3 10 / 3 - / 3 - / 3 - / 3 - / 3
max. Betriebstemperatur primär * / sekundär °C - / 95 110 / 95 110 / 95 110 / 95 110 / 95 - / 95 - / 95 - / 95 - / 95
Gewicht SPU-1 kg 48 - - - - - - - -
SPU-2-W kg - 113 133 149 256 - - - -
SPU-2 kg - 87 109 130 205 253 298 486 603
* nur bei SPU-2-W
E
F
G
H
I
J
B
A
C
D
SPU-2-W
G
H
I
J
B
A
C
D
SPU-2
B
A
C
D
G
H
I
J
K
SPU-1

Table of Contents

Related product manuals