EasyManua.ls Logo

Wolf SPU-1-200 - Características Técnicas

Wolf SPU-1-200
Print Icon
To Next Page IconTo Next Page
To Next Page IconTo Next Page
To Previous Page IconTo Previous Page
To Previous Page IconTo Previous Page
Loading...
3043757_201801 33
Características técnicas
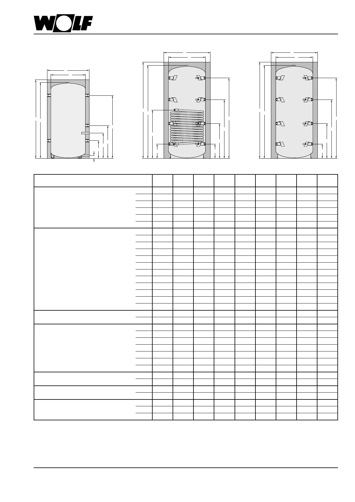
Acumulador intermedio SPU-1
SPU-2-W / SPU-2
200
-
-
500
-
800
-
1000
-
1500
-
2000
-
3000
-
4000
-
5000
Capacidad acumulador SPU-1 Ltr. 200 - - - - - - - -
SPU-2-W Ltr. - 480 780 960 1500 - - - -
SPU-2 Ltr. - 490 795 980 1530 1950 2700 3950 4950
Pérdida estática SPU-1
kWh/24h
1,55 - - - - - - - -
SPU-2-W
kWh/24h
- 2,03 2,59 3,02 3,67 - - - -
SPU-2
kWh/24h
- 2,03 2,59 3,02 3,67 4,28 - - -
Conexión / Termómetro / Regleta de sondas A mm 256 220 260 310 380 395 435 490 510
Conexión / Termómetro / Regleta de sondas B mm 460 620 630 745 825 950 995 1050 1135
Casquillo de inmersión C mm 358 - - - - - - - -
Conexión / Termómetro / Regleta de sondas C mm - 1010 1030 1250 1350 1510 1555 1610 1760
Conexión / Termómetro / Regleta de sondas D mm 910 1390 1430 1710 1760 2070 2115 2170 2390
Retorno intercambiador * E mm - 220 260 310 375 - - - -
Avance intercambiador * F mm - 715 845 1030 1175 - - - -
Altura sin aislamiento / Purga de aire G mm 1114 1640 1700 2050 2150 2400 2480 2590 2830
Altura con aislamiento H mm 1140 1725 1785 2135 2235 2480 2560 2670 2910
Diámetro con aislamiento I mm 610 850 990 990 1200 1300 1450 1700 1800
Diámetro sin aislamiento J mm 500 650 790 790 1000 1100 1250 1500 1600
Vaciado K mm 85 - - - - - - - -
Cota de inclinación con aislamiento mm 1310 1910 2050 2360 2540 2800 2950 3150 3400
Cota de inclinación sin aislamiento mm - 1670 1750 2090 2270 2550 2650 2850 3100
Conexión (5 pc.) Rp 1½“ - - - - - - - -
Conexión (8 pc.) Rp - 1½“ 1½“ 1½“ 1½“ 2“ 2“ 2“ 2“
Casquillo de inmersión Rp ½“ - - - - - - - -
Termómetro (4 pc.) Rp - ½“ ½“ ½“ ½“ ½“ ½“ ½“ ½“
Purga de aire Rp 1“ 1½“ 1½“ 1½“ 1½“ 1¼“ 1¼“ 1¼“ 1¼“
Vaciado Rp ½“ - - - - - - - -
Conexión intercambiador * Rp - 1“ 1“ 1“ 1“ - - - -
Supercie calefactora intercambiador * - 1,8 2,4 3,0 3,6 - - - -
Capacidad intercambiador * Ltr. - 11 15 19 22 - - - -
Presión de régimen máx. prim. * / sec. bar - / 3 10 / 3 10 / 3 10 / 3 10 / 3 - / 3 - / 3 - / 3 - / 3
Temperatura de régimen máx. prim. * / sec. °C - / 95 110 / 95 110 / 95 110 / 95 110 / 95 - / 95 - / 95 - / 95 - / 95
Peso SPU-1 kg 48 - - - - - - - -
SPU-2-W kg - 113 133 149 256 - - - -
SPU-2 kg -
87 109 130 205 253 298 486 603
* solamente para SPU-2-W
E
F
G
H
I
J
B
A
C
D
SPU-2-W
G
H
I
J
B
A
C
D
SPU-2
B
A
C
D
G
H
I
J
K
SPU-1

Table of Contents

Related product manuals