EasyManua.ls Logo

Worcester HEATSLAVE 9.24 RSF

Worcester HEATSLAVE 9.24 RSF
45 pages
To Next Page IconTo Next Page
To Next Page IconTo Next Page
To Previous Page IconTo Previous Page
To Previous Page IconTo Previous Page
Loading...
,.,
~
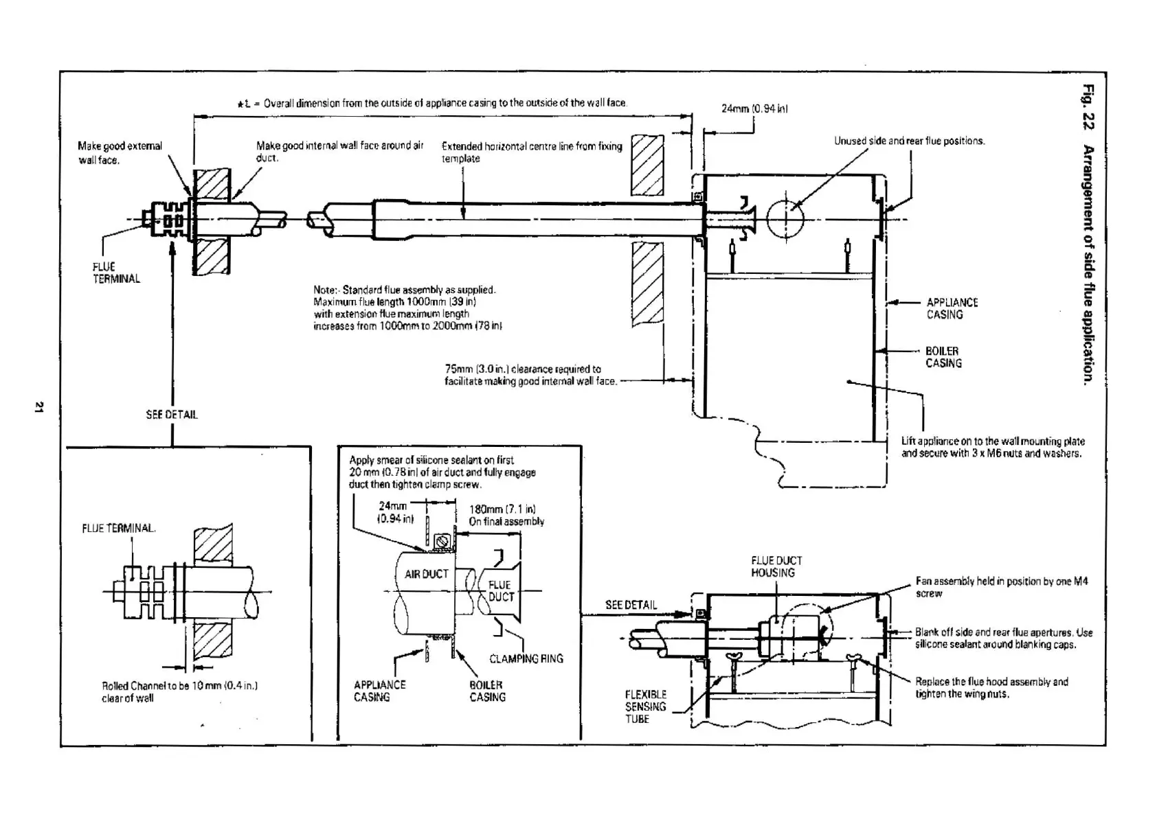
*L
=
Overall
dim
ensio
n
from
the
ou
ts
ide
of
appliance
cas
ing
to
the
outs
ide
of
the
wall
fa
ce
.
Make
good
interoa
l
wa
ll
fac~
around
ai
r
Extended
hori
z
onta
l
centre
line
f1
om
fixing
du
ct.
temp
l
ate
SEE
DETAIL
F
LUE
TE
RM
I
NAL
Rolled
Channel
to
be
10
mm
(0.4
in
.l
clear
of
wall
Note
>
Sta
ndard
flue
!ISsemb
ly
as
supp
l
ie
d.
Maximum
flue
le
ngt
h 100
0mm
[
39
i
n)
with
exte
nsio
n fl
ue
max
i
mum
I
engt
h
increases
from
1
000mm
to
200
0mm
178i
nl
75mm
(3
.0
in
.l
clearance
requ
i
red
to
fa
cilitate
maki
ng
!JOOd
in
t
ernal
wal
l
IC!ce.
Apply
smear
of
sili
con
e
sealan
t on fir
st
20
mm
10
.
78
in I
of
air duct
and
ful
ly
engage
duct th
en
tig
hten
cl
amp
screw
.
24mm
--t---1
180mm
(7
.1 in)
W.94inl
~
1
On1i
n
alass
emb
ly
APPLIANCE
CASING
~
r=-J• I
BOILER
CASING
~
.
FLEX
IB
LE
SENSING
TU
BE
-
Un
used
si
de
and
re
ar
fl
ue
pos
i
tions
.
I
I
L
APP
LlA
NC'E
!
CASING
BO
IL£R
CASING
.,
~
·
N
N
:J>
..
:::J
CCI
~
3
ct
:::J
...
0
~
en
a:
Cl
;;;!=
c::
ftl
OJ
~
'2.
r;·
~.
0
?
t------
I i
'
. '
lift
C!
ppl
ia
nc
e on to
tne
wa
ll
mount
i
ng
plate
and
secure
with 3 x
M6
nu
ts
and
washe
rs.
(___
___
~
I
- - .J
FLUE
DUCT
HOUS
ING
FC!n
as
sembly
he
ld in
pos
it
ion
by
one
M4
sc
r
ew
IF
_
B
.l
~
nk
ofl
si
de
and
rear
flue
a~ert
u
111s
.
Us
e
st1
1
cone
sealant
ar
o
u~
d
bl
an
k
10
9 c
ap
s.
Replace
t
he
fl
ue
h
ood
assemb
ly a
nd
lighten the w
in
g
nu
ts.

Related product manuals