EasyManua.ls Logo

Worcester HEATSLAVE 9.24 RSF

Worcester HEATSLAVE 9.24 RSF
45 pages
To Next Page IconTo Next Page
To Next Page IconTo Next Page
To Previous Page IconTo Previous Page
To Previous Page IconTo Previous Page
Loading...
N
Co)
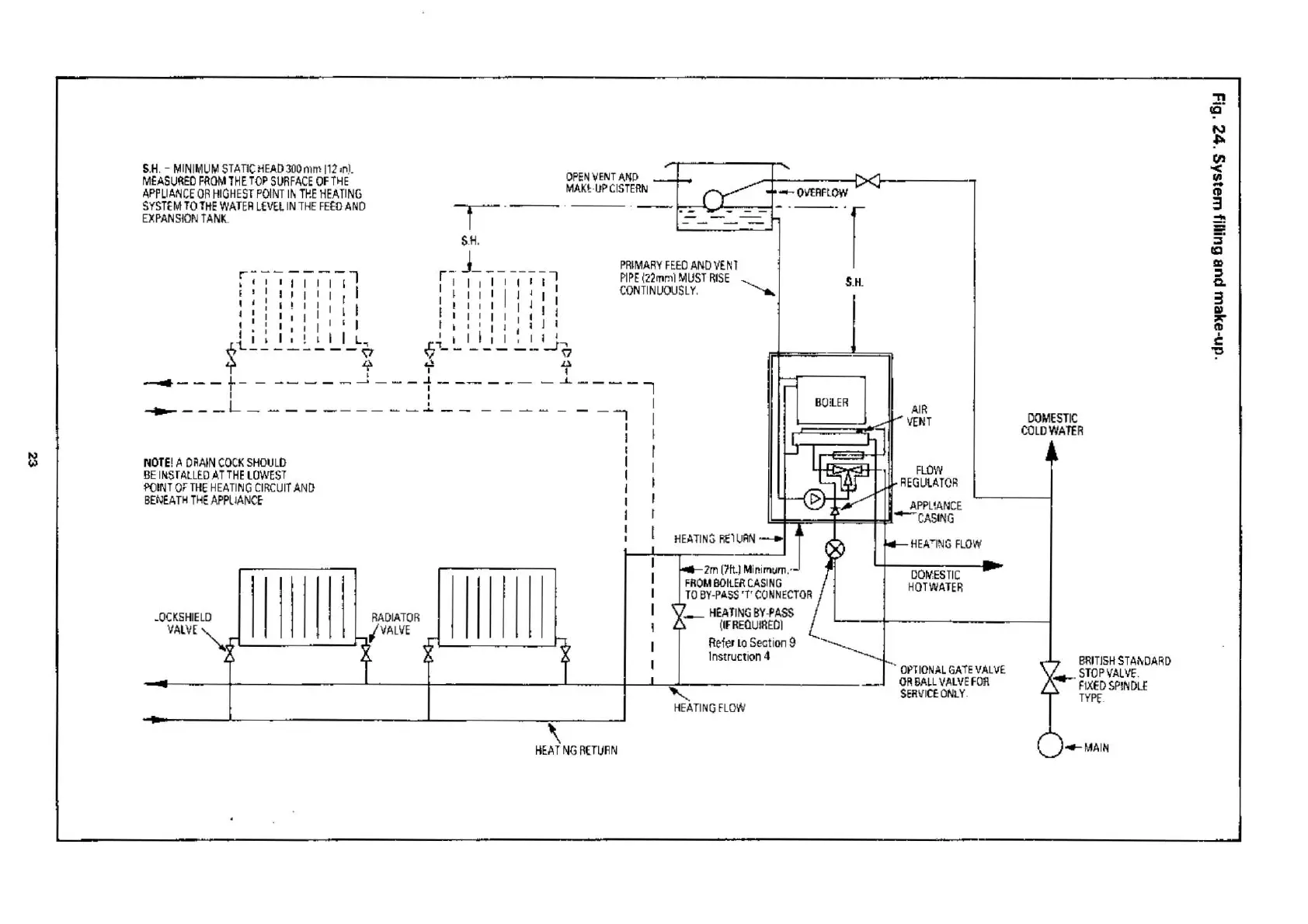
S.H
.-
MIN
I
MUM
STATICHE
A
0300mm
112m)
.
M£ASURED
FROM
lHE
TOP
SUR
FA
CE
OF
THE
APPLIAN
C
E'
OR
tf
iG
HEST
POINT
I
ll
Tf-!E
HEA
TIN
G
SYST
EM
TO
THE
WATER
LEVEL
IN
THE
FEEO
AN
D
EX
PAN
SION
TANK
.
OPEN
VENT
A"P
+
,.___.-
~'
[><}-
--·
~
_
___
MAn
·
liPC
I
S
TE~~
--
-
-
~=~-R·Wr
S.H.
-· j_ _ _ _ _ _ _
PRIMAR
Y
FEED
AND
V
f.NT
1
I-
--
- - - - l r
1
I 1
1
I
1
I I
PI
PE
l22mml
MU
ST
RI
SE
.........._
S H
: : : : : : : : I I I I I : I I J I I I
CON
TIN
UOUSLY
.
-.......
•.
1 : 1 ! 1 1
1
1
1
1
1
1 1 1 1
1
'
1
:
I I 1 I
1
I I I I I I I I I
I I
I I I I ' I I I I I I I I J I
••
I I I I I I I
~1_~
_!.
_!~
~
~
1
-
1
-\7
9,-~
1
- -
·~
.:_~_,_]~
f
~
T 1
~
--
-
t - -
--
- - -
_!
-
--
-t
-
--
- - - -
...1...----..,
I I I
~---
L
__
___
___
_ _ .!.
__
- -
---
- -
-,
I
: I
NOTE
! A 0
R
A~
N
COC
K S
HOULD
BE
I
NSTAL
L
EOATTHE
LOW
EST
POINT
Or
T
HE
H
EA
TING CI
RCUIT
ANO
BENEAT
H
THE
APPUANCE
-OC
K.
SHIHD
VA
lVE
RADIATOR
/
VALVE
'
Hf.A
T NG
RETURN
I t
I I
I I
: I
I I
l I
2m
(7ft
.) Mi
f!
i
rnu
m.·
FROM
BOltER
CA
SI
NG
TO
OY·P
A
SS
'
T'
CONN
ECT
OR
_
HEAT
I
NG
BY
-
PAS
S
'
(
lf
REO
UI
R
EDl
Refer
to
Secti
on 9
1
nstruction
4
H
~ATING
FLOW
FLOW
REGULATOR
HEA"ING
FLOW
DOMESTI
C
HOTWATER
'
Ot'TIONAL
GAiE
VALV£
OR
BA
LL
VA
L
VE
F
OR
SER
V
ICE:
O
NL
Y.
D
OMeST
IC
C
OL
DWATER
BRITI
SH ST
A.'•OA
RD
· S
TO
PVA
LV
E'
.
._
.F
IX
ED
SP
IND
LE
TYPE'.
..,._MA
IN
'TI
10'
N
~
en
<
In
...
(fl
3
~
CD
:;)
Q,
3
~
Cll
c
"0

Related product manuals