EasyManua.ls Logo

Xylem Lowara e1631 - Page 18

Xylem Lowara e1631
32 pages
Print Icon
To Next Page IconTo Next Page
To Next Page IconTo Next Page
To Previous Page IconTo Previous Page
To Previous Page IconTo Previous Page
Loading...
Technical appendix
13.
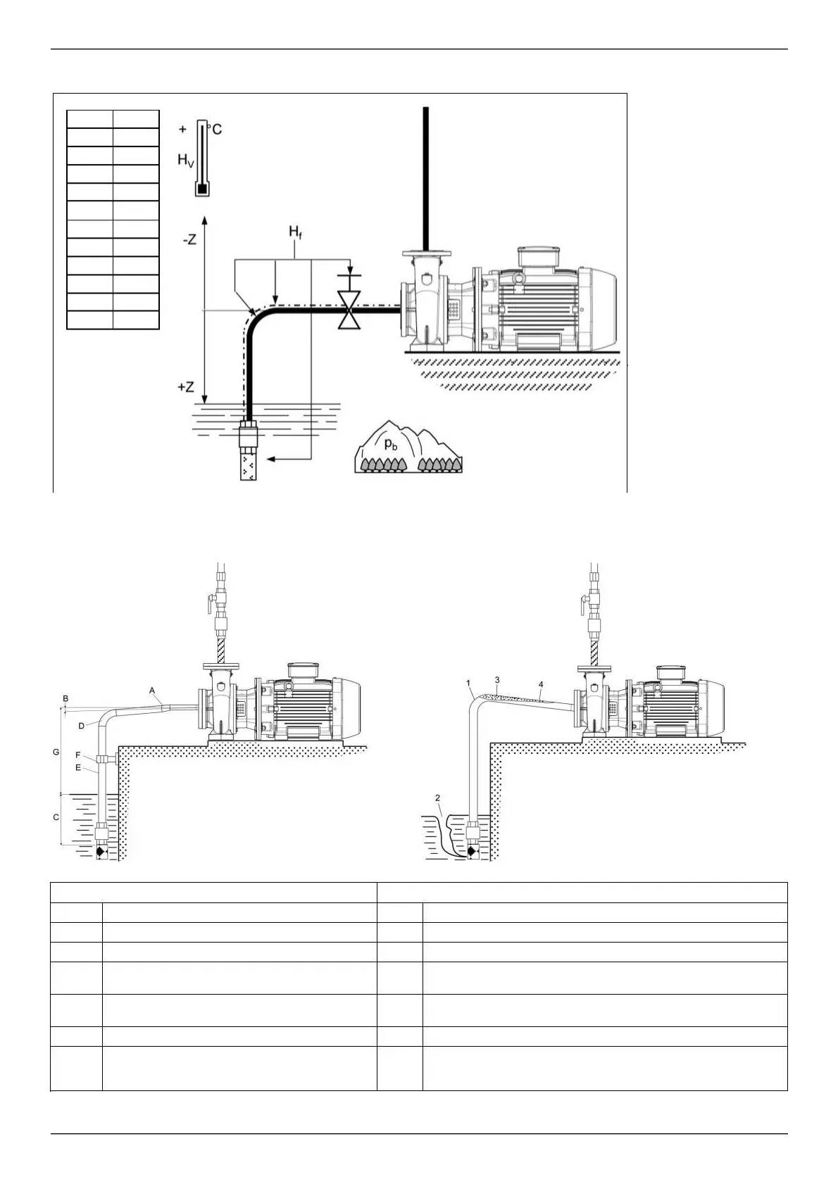
T [°C] Hv [m]
20
30
0,2
0,4
40
0,7
50
1,2
60
2,0
70
3,1
80
4,8
90
7,1
100
110
120
10,3
14,6
20,2
14.
15.
Istallazione corretta
Riduzione eccentrica
Istallazione non corretta
A
B
C
D
1
2
3
4
Curva stretta; elevata resistenza di flusso
Immersion insufficiente; aspirazione aria
Pendenza positiva; sacche d'aria
Pendenza positiva
Buona immersione
Curva larga
Diametro del tubo < diametro bocca della pompa; elevata resistenza di
flusso
E
Diametro tubo d'aspirazione > diametro bocca della
pompa
F
Morsetto tubo
G
L'aspirazione soprabattente dipende dalla pompa e
dall'installazione. In condizioni normali il dislivello non
è superiore a 5-6 m.
18
e1631 Installation, Operation, and Maintenance Manual