EasyManua.ls Logo

Yale GLP35UX - Lift Cylinder

Yale GLP35UX
100 pages
To Next Page IconTo Next Page
To Next Page IconTo Next Page
To Previous Page IconTo Previous Page
To Previous Page IconTo Previous Page
Loading...
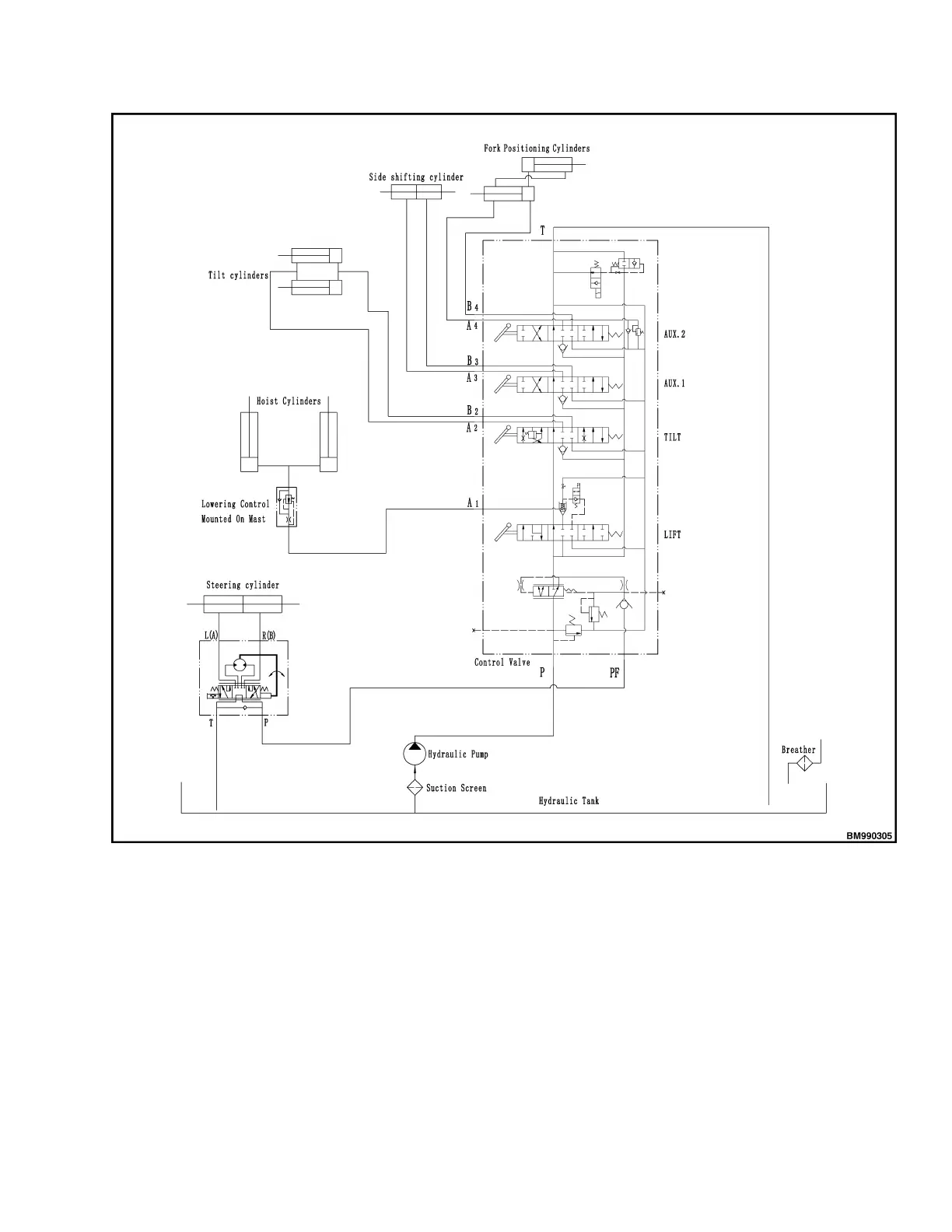
Figure 44. Oil Circuit of Hydraulic System (OPS)
LIFT CYLINDER
Two single-acting lift cylinders are attached on the
back of the outer mast channel, and the bottom part of
cylinder is attached to the outer mast channel using
pins and bolts. The top part of the cylinder (piston rod)
is connected to the cross member of the outer mast
channel. The piston strokes must be adjusted to be
consistent, for the two cylinders to lift simultaneously.
The lift cylinder is composed of cylinder body, piston,
piston rod, cylinder cover, cylinder bottom and sealing
parts. One port is located in the lower part of cylinder
body. A return pipe is mounted in the upper part of
cylinder body for a small amount of leaked fluid to
return to the tank. The piston is fastened onto the
piston rod using a nut and cotter pin, and one seal
ring, retainer ring and wear ring are fitted on the outer
surface of the piston (see Figure 45). The high-
pressure fluid moves the piston along the cylinder
body. A shaft sleeve and dust ring are mounted in the
inner hold of cylinder cover, to support the piston rod,
while resisting dust.
8000 YRM 2199 Hydraulic System
47

Table of Contents

Related product manuals