EasyManua.ls Logo

Yamaha F20BEH - Page 90

Yamaha F20BEH
226 pages
Print Icon
To Next Page IconTo Next Page
To Next Page IconTo Next Page
To Previous Page IconTo Previous Page
To Previous Page IconTo Previous Page
Loading...
3-20
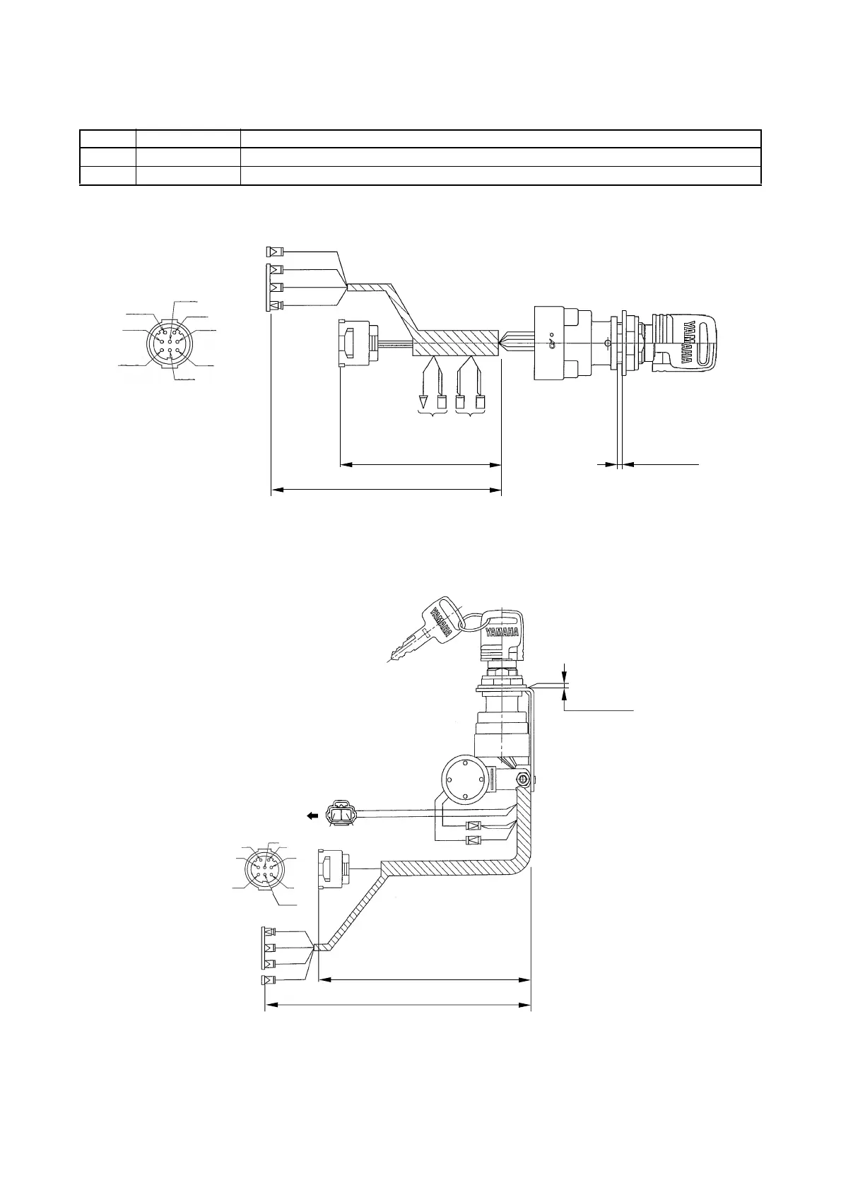
REMOTE SWITCH APPLICATIONS
IG SWITCH W/O PANEL
Ref. No. Part No. Description
1 704-82510-07 With bullet connectors for stop switch
2 6X3-8257B-00 With 2-pin coupler for stop switch, For 6X3 and 6X7 RC
Y
P
B
W
L
Br
G
R
380 (15)
175 (6.89)
R
Y
G
B
P
Y
B
W
To
stop SW
To
buzzer
355 (14)
140 (5.51)
B
G
Y
R
P
B
Br
G
R
Y
W
L
B
W
To stop SW
Max. 4 (0.16)
Max. 4 (0.16)
1
2
mm (in.)
mm (in.)

Table of Contents

Related product manuals