EasyManua.ls Logo

YASKAWA ArcWorld 50 - Page 70

YASKAWA ArcWorld 50
126 pages
Print Icon
To Next Page IconTo Next Page
To Next Page IconTo Next Page
To Previous Page IconTo Previous Page
To Previous Page IconTo Previous Page
Loading...
3-6
183574-1CD
183574-1CD
3 Installation
3.2 Site Preparation
ArcWorld 50/50S/52/52S
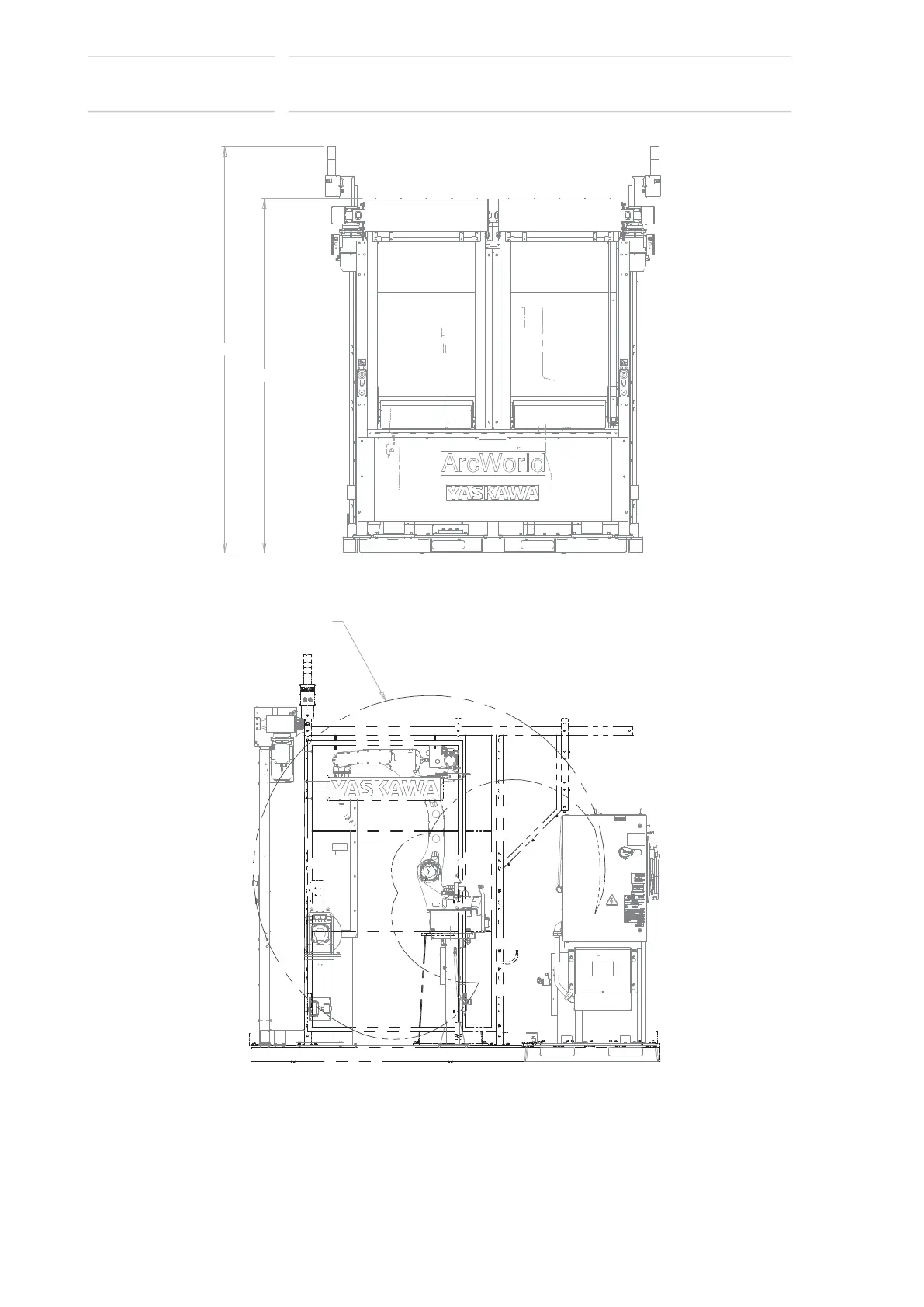
Fig. 3-2(b): Plan View Front View (AW52 and AW52S)
Fig. 3-2(c): Plan View P-Point Envelope (AW52 and AW52S)
2965.3
2583.4
ROBOT ENVELOPE P-POINT
70 of 126

Table of Contents

Related product manuals