EasyManua.ls Logo

YASKAWA ArcWorld 50 - Site Preparation

YASKAWA ArcWorld 50
126 pages
Print Icon
To Next Page IconTo Next Page
To Next Page IconTo Next Page
To Previous Page IconTo Previous Page
To Previous Page IconTo Previous Page
Loading...
3-4
183574-1CD
183574-1CD
3 Installation
3.2 Site Preparation
ArcWorld 50/50S/52/52S
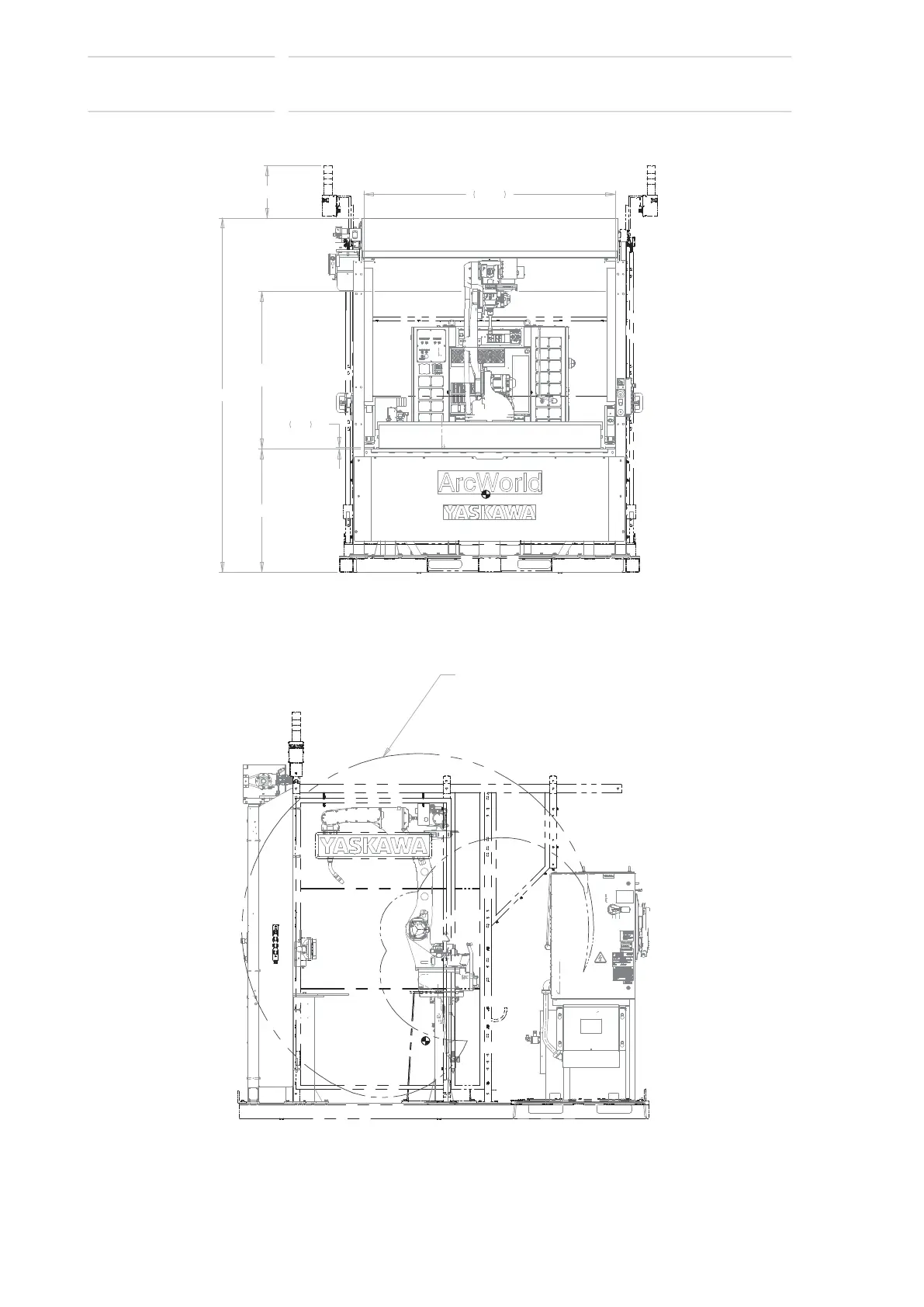
Fig. 3-1(b): Plan View Front View (AW50 and AW50S)
Fig. 3-1(c): Plan View P-Point Envelope (AW50 and AW50S)
900
13.4
OPT. TABLE
1149
OPENING
2584
1836.5
OPENING
381.3
ROBOT ENVELOPE P-POINT
68 of 126

Table of Contents

Related product manuals