EasyManua.ls Logo

YASKAWA CIMR-VCBA0002

YASKAWA CIMR-VCBA0002
152 pages
Go to English
To Next Page IconTo Next Page
To Next Page IconTo Next Page
To Previous Page IconTo Previous Page
To Previous Page IconTo Previous Page
Loading...
8 Manutenzione
YASKAWA Europe TOMP_C710606_75A V1000 IP66 - Manuale di avvio rapido IT 29
8 Manutenzione
Alcuni modelli sono dotati di ventola di circolazione interna e ventola di raffreddamento esterna. In questo capitolo viene descritto come vengono
sostituite queste ventole in caso di necessità.
Numeri parti di ricambio ventola di raffreddamento
In caso di sostituzione delle ventole utilizzare esclusivamente le parti di ricambio YASKAWA elencate nella tabella sotto indicata.
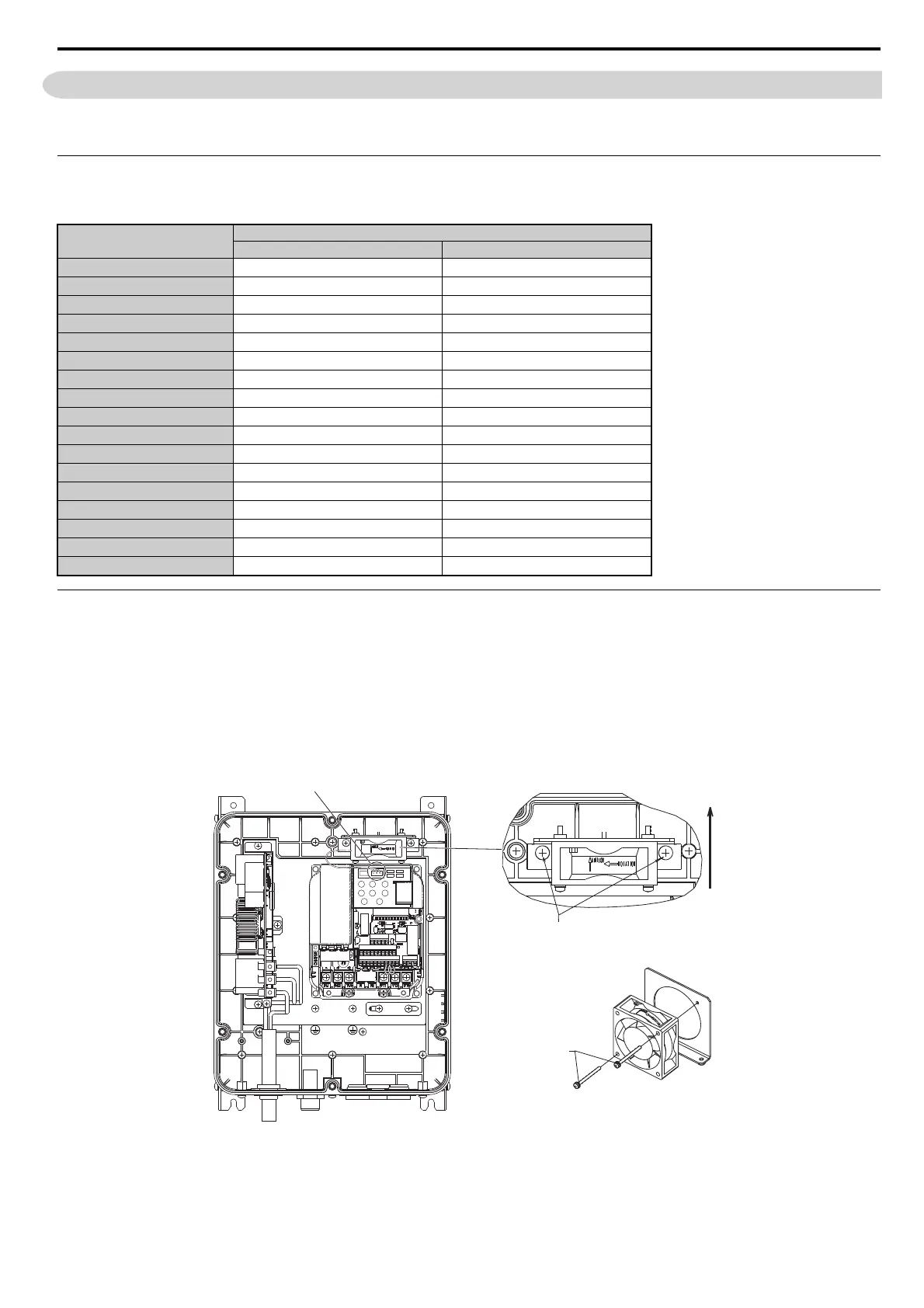
Sostituzione della ventola di circolazione interna
Qualora la ventola di circolazione interna dovesse essere difettosa, nell'inverter viene emesso l'errore "FAn" (errore "Ventola"). In questo caso
sostituire la ventola come descritto sotto.
1. Staccare l'inverter dall'alimentazione di tensione ed attendere 5 minuti fino a quando i condensatori del bus DC si sono scaricati.
2. Rimuovere la copertura anteriore IP66 come descritto nel capitolo Rimozione della copertura anteriore a pagina 9.
3. Assicurarsi che l'indicatore di carica sull'inverter non sia più illuminato.
4. Staccare la spina della ventola interna (a 3 fili, connettore a destra) dall'inverter.
5. Smontare il supporto della ventola di circolazione (2x viti M4) e la ventola stessa.
6. Smontare la ventola dal supporto (2x viti M3).
7. Fissare una nuova ventola al supporto. Assicurarsi che la ventola montata soffi verso l'alto. Fissare quindi il supporto alla carcassa IP66 e
collegare il cavo della ventola al connettore sull'inverter.
8. Montare di nuovo la copertura anteriore IP66 come descritto nel capitolo Rimontaggio della copertura anteriore a pagina 11.
9. Inserire l'alimentazione di tensione. Di norma l'inverter dovrebbe avviare senza indicazione di un errore.
Modello
CIMR-VC
Ventola montata
Ventola di circolazione interna Ventola di raffreddamento esterna
BA0001 --
BA0002 --
BA0003 --
BA0006 --
BA0010 EUOP-V91003 -
BA0012 EUOP-V91003 -
4A0001 --
4A0002 --
4A0004 --
4A0005 --
4A0007 --
4A0009 --
4A0011 EUOP-V91003 -
4A0018 EUOP-V91003 EUOP-V91004
4A0023 EUOP-V91003 EUOP-V91004
4A0031 EUOP-V91003 EUOP-V91004
4A0038 EUOP-V91003 EUOP-V91004
Flusso d’aria
S1 S2 S3 S4 S5 S6 SC HC H1 H2 RP
R+ R- S+ S- IG
P1 P2 PC A1 A2 +V AC AM AC MP
MA MB MC
Staccare questi con-
Rimuovere entrambe le viti M4 e smontare il
supporto della ventola di circolazione.
Rimuovere entrambe le viti M3 per
togliere la ventola dal supporto.
nettori
TOMP_C710606_75A_0_0_prePrint.pdf 119 21.12.2010 13:52:38

Related product manuals