EasyManua.ls Logo

YASKAWA CIMR-VCBA0002

YASKAWA CIMR-VCBA0002
152 pages
Go to English
To Next Page IconTo Next Page
To Next Page IconTo Next Page
To Previous Page IconTo Previous Page
To Previous Page IconTo Previous Page
Loading...
8 Wartung
YASKAWA Europe TOMP_C710606_75A V1000 IP66 - Kurzanleitung DE 29
8Wartung
Einige Modelle verfügen über interne Umwälzlüfter und externe Kühllüfter. In diesem Kapitel wird beschrieben, wie diese Lüfter ausgetauscht
werden, wenn erforderlich.
Ersatzteilnummern Kühllüfter
Verwenden Sie beim Austausch der Lüfter die YASKAWA-Ersatzteile aus der nachfolgenden Tabelle.
Austausch des internen Umwälzlüfters
Falls der interne Umwälzlüfter defekt ist, wird im Umrichter der Fehler "FAn" (Fehler "Lüfter") ausgelöst. Tauschen Sie in diesem Fall den Lüfter
wie unten beschrieben aus.
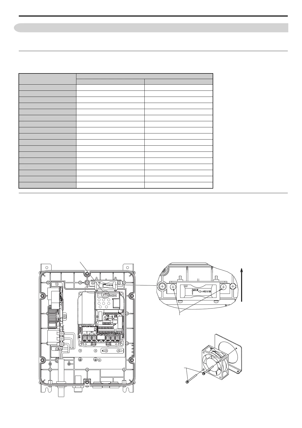
1. Trennen Sie den Umrichter von der Spannungsversorgung und warten Sie 5 Minuten, bis sich die Zwischenkreis-Kondensatoren entladen
haben.
2. Entfernen Sie die vordere Abdeckung des IP66 wie in Kapitel Entfernung der vorderen Abdeckung auf Seite 10 beschrieben.
3. Vergewissern Sie sich, dass die Ladeanzeige auf dem Umrichter nicht mehr leuchtet.
4. Trennen Sie den Stecker des internen Lüfters (3-adrig, Stecker rechts) vom Umrichter.
5. Demontieren Sie die Halterung des Umwälzlüfters (2x M4-Schrauben) und den Lüfter.
6. Bauen Sie den Lüfter von der Halterung ab (2x M3-Schrauben).
Modell
CIMR-VC
Eingebaute Lüfter
Interner Umwälzlüfter Externer Kühllüfter
BA0001 --
BA0002 --
BA0003 --
BA0006 --
BA0010 EUOP-V91003 -
BA0012 EUOP-V91003 -
4A0001 --
4A0002 --
4A0004 --
4A0005 --
4A0007 --
4A0009 --
4A0011 EUOP-V91003 -
4A0018 EUOP-V91003 EUOP-V91004
4A0023 EUOP-V91003 EUOP-V91004
4A0031 EUOP-V91003 EUOP-V91004
4A0038 EUOP-V91003 EUOP-V91004
Air flow
S1 S2 S3 S4 S5 S6 SC HC H1 H2 RP
R+ R- S+ S- IG
P1 P2 PC A1 A2 +V AC AM AC MP
MA MB MC
Trennen Sie diesen Stecker
Entfernen Sie die beiden M4-Schrauben und
demontieren Sie die Halterung des Umwälzlüfters.
Entfernen Sie die beiden M3-
Schrauben, um den Lüfter von
der Halterung abzunehmen.
TOMP_C710606_75A_0_0_prePrint.pdf 31 21.12.2010 13:52:19

Related product manuals