EasyManua.ls Logo

YASKAWA JANCD-YEW01-E - Hardware Specifications

YASKAWA JANCD-YEW01-E
40 pages
Print Icon
To Next Page IconTo Next Page
To Next Page IconTo Next Page
To Previous Page IconTo Previous Page
To Previous Page IconTo Previous Page
Loading...
2-1
167646-1CD
HW1481264
2 Hardware Specifications
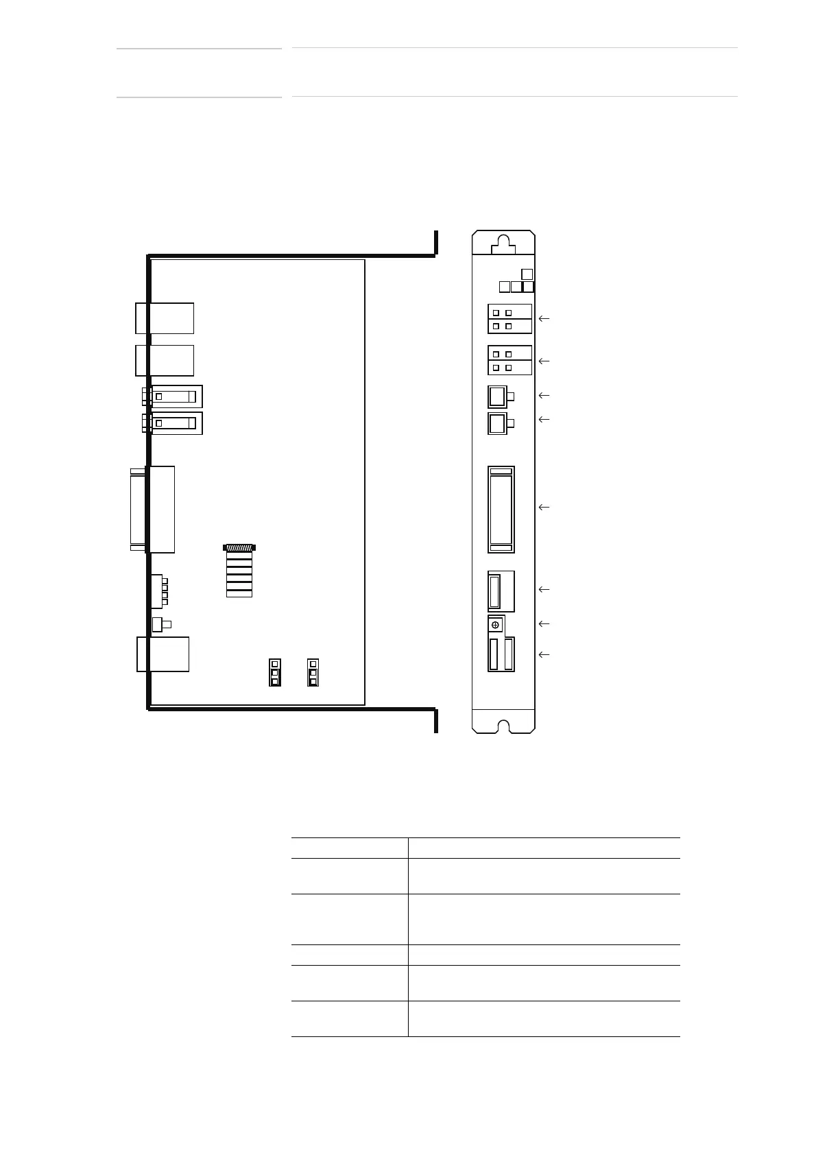
2.1 Board Outline Drawing
Interface Board for Welding
Power Supply
2 Hardware Specifications
2.1 Board Outline Drawing
2.2 Board Specifications
CN324
24 VDC power input connector
CN323
CN322
Switch to set the transfer rate of I/O
Switch to set the bytes transferred of I/O
ARCON relay (K6)
F1 and F2 fuses
1 A, 250 V (fast-acting)
217001 (Littelfuse)
CN320
SW1
SW2
17 BYTE/32 BYTE
4 Mbps, 10 Mbps
S1
K1
K2
K3
K4
K5
K7
K6
F2
F1
24 VDC power output connector
Fuse (F2)
Fuse (F1)
Welding power source connector
Switch to set the station
Starting point detection command
signal output connector
I/O data transfer connector
JANCD-
YEW01-E
REV.
CN324
CN323 F2
F1
F1,F2:
1A/250V
CN322
S1
CN320 CN321
CN321
Item Specification
Board mounting
location
Optional-board mounting space in the DX200
cabinet
External I/O 4 welding power source specific inputs
4 welding power source specific outputs
1 general output
Stick detection input 1 input
Number of analog
input channels
2 channels
Number of analog
output channels
2 channels
13 of 40

Related product manuals