EasyManua.ls Logo

YASKAWA motoman NX100

YASKAWA motoman NX100
405 pages
To Next Page IconTo Next Page
To Next Page IconTo Next Page
To Previous Page IconTo Previous Page
To Previous Page IconTo Previous Page
Loading...
7.6 User I/O Signal Assignment
7-52
7.6.4 Spot Welding
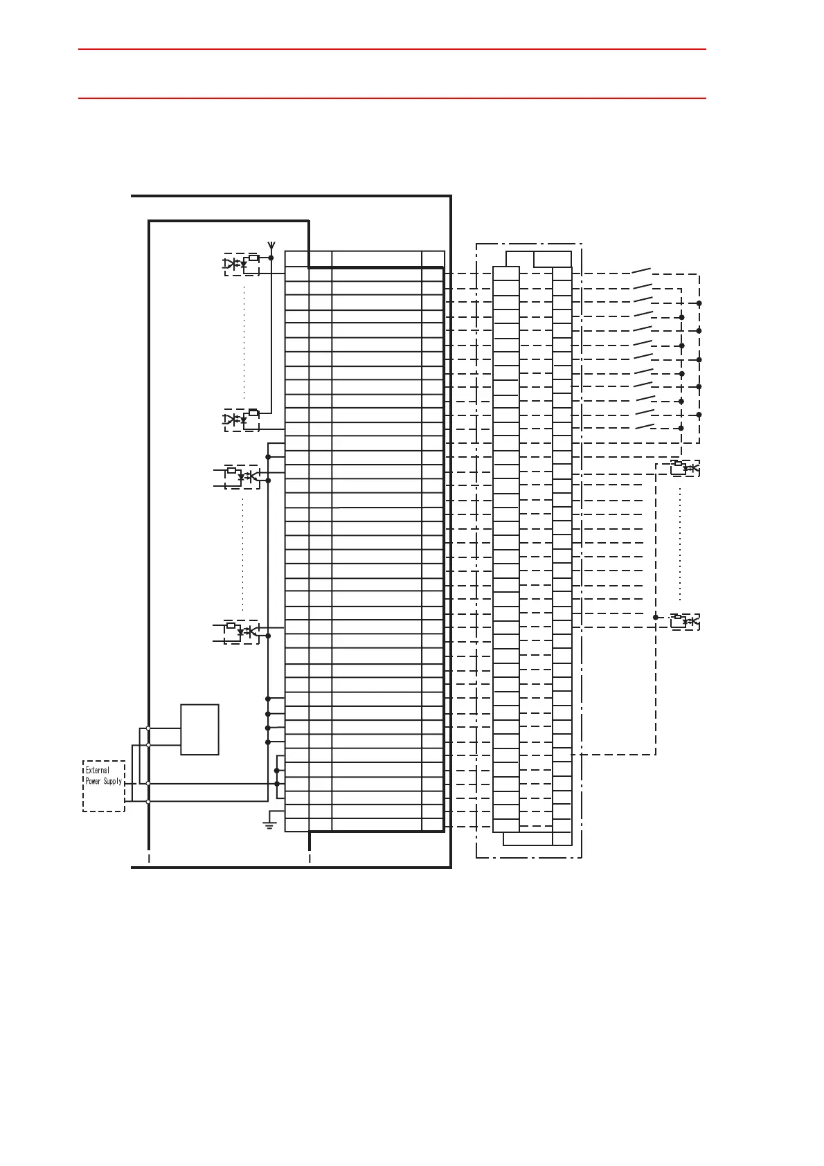
JANCD-NIO01 (CN09 Connector) I/O Allocation and Connection Diagram (For Spot Welding)
Each!Point
24VDC
50mA!!max.!
CN12
-3
-4
-1
-2
A20
B20
A19
B19
A18
B18
A17
B17
A16
B16
A15
B15
A14
B14
A13
B13
A12
B12
A11
B11
A10
B10
A9
B9
A8
B8
A7
B7
A6
B6
A5
B5
A4
B4
A3
B3
A2
B2
A1
B1
Each!Point
24VDC
8mA!!max.!
Name
Signal
Robot!I/F!Unit!(JZNC-NIF01)
NX100
CN09!Connector
B1
A1
B2
A2
B3
A3
B4
A4
B5
A5
B6
A6
B7
A7
B8
A8
B9
A9
B10
A10
B11
A11
B12
A12
B13
A13
B14
B15
A14
A15
B16
B17
A16
A17
B18
A18
B19
A19
B20
A20
Connector!Terminal!Converter
(Optional)
Model:PX7DS-40V6-R
+24VU
!!!+24!VE
!!!!0
24!
VE
JANCD-NIO01
Terminal
!Number
20010
20011
20012
20013
20014
20015
20016
20017
20020
20021
20022
20023
30010
30011
30012
30013
30014
30015
30016
30017
30020
30021
30022
30023
External!Start
*!Remove!Jumper-pin!between!CN12-1!and!-3,!CN12-2!and!-4
!!when!a!external!power!supply!is!used.
2
1
4
3
6
5
8
7
10
9
12
11
14
13
16
15
18
17
20
19
22
21
24
23
26
25
28
30
27
29
32
34
31
33
36
35
38
37
40
39
-
IN
IN
IN
IN
IN
IN
IN
IN
OUT
OUT
OUT
OUT
OUT
OUT
OUT
OUT
OUT
OUT
OUT
OUT
Call!Master!Job
Alarm/Error!Reset
-
-
-
-
Interference1!Entrance!
Prohibited
Welding!ON/OFF
Welding!Pause
0
24VU
0
24VU
Running
Servo!is!ON
Top !of!Master!Job
Alarm/Error!Occurred
Battery!Alarm
Remote!Mode!Selected
Play!Mode!Selected
Teach!Mode!Selected
In!Cube!1
In!Cube!2
Work!Home!Position
Intermediate!Start!OK
(continuousing!Sequence)
024VU
0
24VU
0
24VU
0
24VU
+24VU
+24VU
+24VU
+24VU
FG
Logical
Number
Connector
Number
+24VU
0
24!
VU
IN
IN
IN
IN
Interference2!Entrance!
Prohibited
Internal!
Power!Supply
!!!+24!V
!!!!0
24!
V
(24V,1A)

Other manuals for YASKAWA motoman NX100

Related product manuals