EasyManua.ls Logo

YASKAWA motoman NX100

YASKAWA motoman NX100
405 pages
To Next Page IconTo Next Page
To Next Page IconTo Next Page
To Previous Page IconTo Previous Page
To Previous Page IconTo Previous Page
Loading...
7.6 User I/O Signal Assignment
7-54
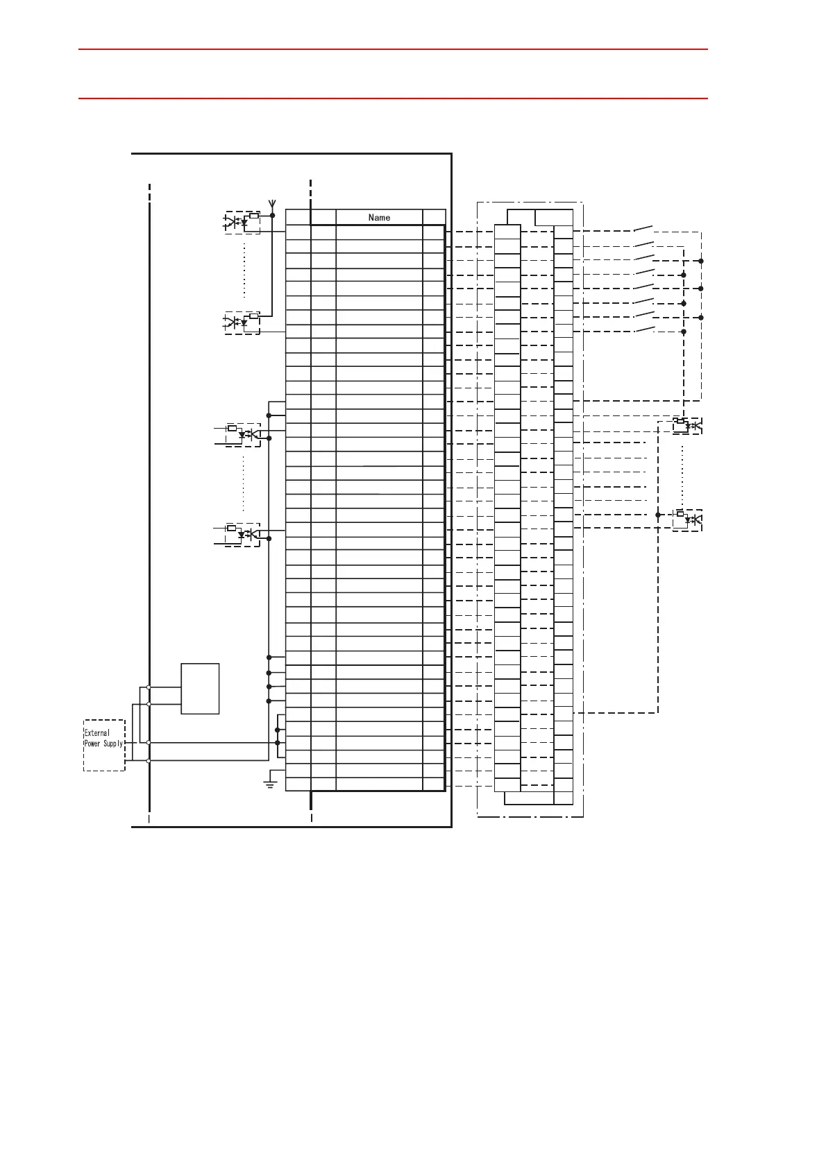
JANCD-NIO01 (CN07 Connector) I/O Allocation and Connection Diagram (For Spot Welding)
CN12
-3
-4
-1
-2
A20
B20
A19
B19
A18
B18
A17
B17
A16
B16
A15
B15
A14
B14
A13
B13
A12
B12
A11
B11
A10
B10
A9
B9
A8
B8
A7
B7
A6
B6
A5
B5
A4
B4
A3
B3
A2
B2
A1
B1
Robot!I/F!Unit!(JZNC-NIF01)
NX100
CN07!Connector
B1
A1
B2
A2
B3
A3
B4
A4
B5
A5
B6
A6
B7
A7
B8
A8
B9
A9
B10
A10
B11
A11
B12
A12
B13
A13
B14
B15
A14
A15
B16
B17
A16
A17
B18
A18
B19
A19
B20
A20
+24VU
JANCD-NIO01
20040
20041
20042
20043
20044
20045
20046
20047
30040
30042
30044
30046
30041
30043
30045
30047
024VU
0
24VU
+24VU
+24VU
+24VU
+24VU
FG
IN
IN
IN
IN
IN
IN
IN
IN
OUT
OUT
OUT
OUT
OUT
OUT
OUT
OUT
2
1
4
3
6
5
8
7
10
9
12
11
14
13
16
15
18
17
20
19
22
21
24
23
26
25
28
30
27
29
32
34
31
33
36
35
38
37
40
39
+24VU
Each!Point
24VDC
8mA!!max.!
Each!Point
24VDC
50mA!!max.!
Internal!
Power!Supply
!!!+24!V
!!!!0
24!
V
(24V,1A)
!!!+24!VE
!!!!0
24!
VE
0
24!
VU
Logical
Number
Signal
024VU
0
24VU
0
24VU
0
24VU
*!Remove!Jumper-pin!between!CN12-1!and!-3,!CN12-2!and!-4
!!when!a!external!power!supply!is!used.
Connector!Terminal!Converter
(Optional)
Model:PX7DS-40V6-R
Connector
Number
Terminal
!Number
OUT17
OUT18
OUT19
OUT20
OUT21
OUT22
OUT23
OUT24
IN17
IN18
IN19
IN20
IN21
IN22
IN23
IN24

Other manuals for YASKAWA motoman NX100

Related product manuals