EasyManua.ls Logo

YOKOGAWA DY100

YOKOGAWA DY100
138 pages
To Next Page IconTo Next Page
To Next Page IconTo Next Page
To Previous Page IconTo Previous Page
To Previous Page IconTo Previous Page
Loading...
9-35
IM 01F06A00-01E
9. GENERAL DESCRIPTION
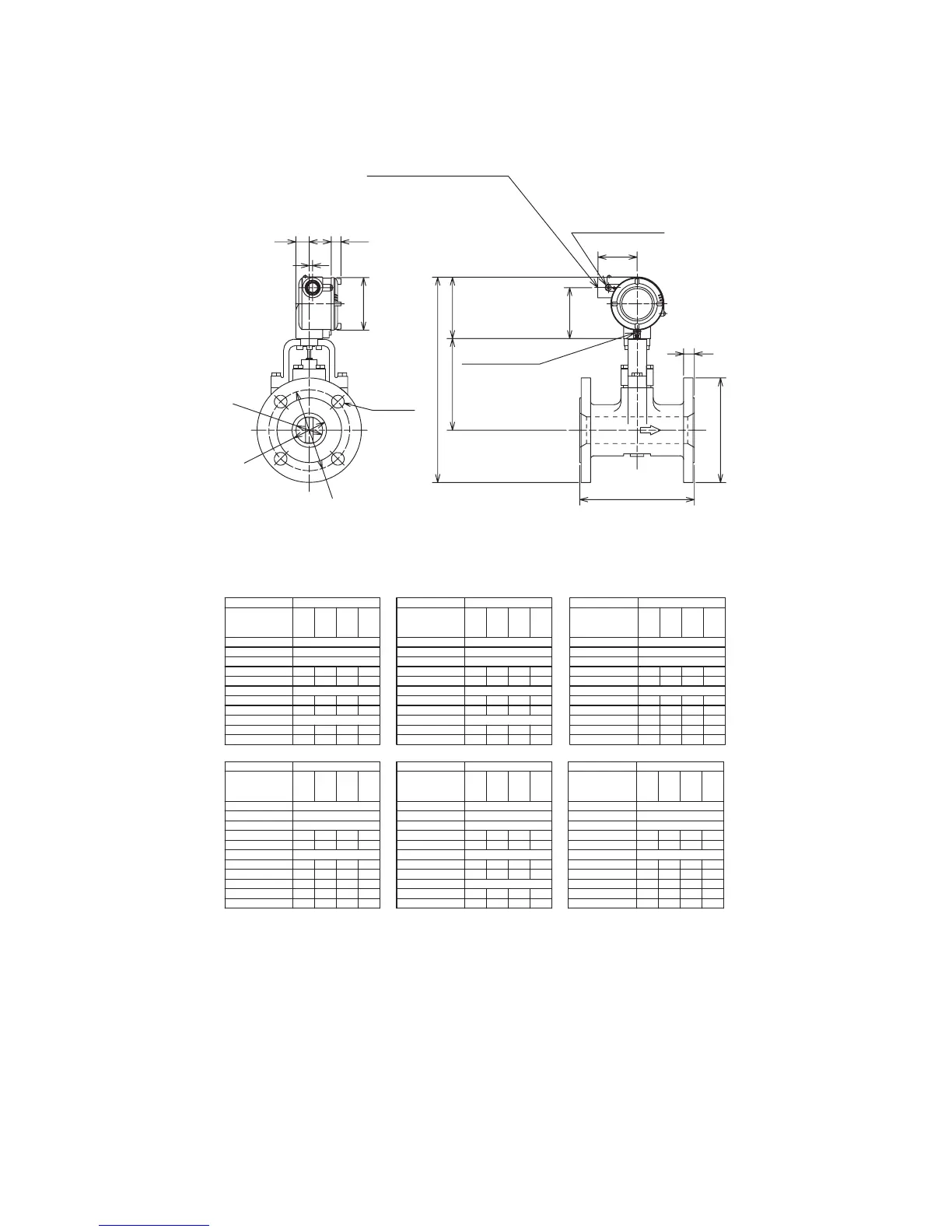
Stainless Steel Housing Reduced Bore Type (/E1/R1): DY025-/E1/R1 up to DY150-/E1/R1
Flange type
Unit: mm
(approx. inch)
ELECTRICAL CONNECTION
JIS G1/2 Female
ANSI 1/2NPT Female
ISO M201.5 Female
Only for
KEMA Explosionproof
CLAMP
EARTH TERMINAL
φD
L
75.5
91
H1
H
20
5
32.5
N - φG
φC
14.5
φJ
φ78
T
58
φ
CS
150
25.7
14.6
127
4
DY025 /E1 /R1
BJ1
125
280.5
14
90
19
6.2
BJ2
125
280.5
16
90
19
6.6
BA1
BS1
BP1
108
272
14.2
79.2
15.7
5.6
BA2
BS2
BP2
124
280
17.5
89
19
7.1
Model Code
Process
Connection
L
C
CS
D
H
H1
T
J
N
G
Weight kg
150
39.7
25.7
129
4
DY040 /E1 /R1
BJ1
140
290
16
105
19
9.7
BJ2
140
290
18
105
19
10.2
BA1
BS1
BP1
127
283.5
17.5
98.6
15.7
9.5
BA2
BS2
BP2
155.4
297.7
20.6
114.3
22.4
12.7
Model Code
Process
Connection
L
C
CS
D
H
H1
T
J
N
G
Weight kg
170
51.1
39.7
136
DY050 /E1 /R1
BJ1
155
304.5
16
120
4
19
10.6
BJ2
155
304.5
18
120
8
19
11.2
BA1
BS1
BP1
152.4
303.2
19.1
120.7
4
19
11.5
BA2
BS2
BP2
165.1
309.5
22.4
127
8
19
13.7
Model Code
Process
Connection
L
C
CS
D
H
H1
T
J
N
G
Weight kg
200
71
51.1
158
DY080 /E1 /R1
BJ1
185
341.5
18
150
8
19
18.7
BJ2
200
349
22
160
8
23
21.8
BA1
BS1
BP1
190.5
344.5
23.9
152.4
4
19
22
BA2
BS2
BP2
209.6
353.8
28.4
168.2
8
22.4
27
Model Code
Process
Connection
L
C
CS
D
H
H1
T
J
N
G
Weight kg
220
93.8
71
175
8
DY100 /E1 /R1
BJ1
210
371
18
175
19
25.1
BJ2
225
378.5
24
185
23
30.1
BA1
BS1
BP1
228.6
380.3
23.9
190.5
19
30.7
BA2
BS2
BP2
254
393
31.8
200.2
22.4
41.4
Model Code
Process
Connection
L
C
CS
D
H
H1
T
J
N
G
Weight kg
270
138.8
93.8
190
DY150 /E1 /R1
BJ1
280
421
22
240
8
23
46
BJ2
305
433.5
28
260
12
25
56.4
BA1
BS1
BP1
279.4
420.7
25.4
241.3
8
22.4
49.5
BA2
BS2
BP2
317.5
439.5
36.6
269.7
12
22.4
71.8
Model Code
Process
Connection
L
C
CS
D
H
H1
T
J
N
G
Weight kg

Table of Contents

Related product manuals