EasyManua.ls Logo

York CU060 - Imensions Cu180

York CU060
20 pages
Print Icon
To Next Page IconTo Next Page
To Next Page IconTo Next Page
To Previous Page IconTo Previous Page
To Previous Page IconTo Previous Page
Loading...
036-33072-001 Rev. A (0601)
Unitary Products Group 7
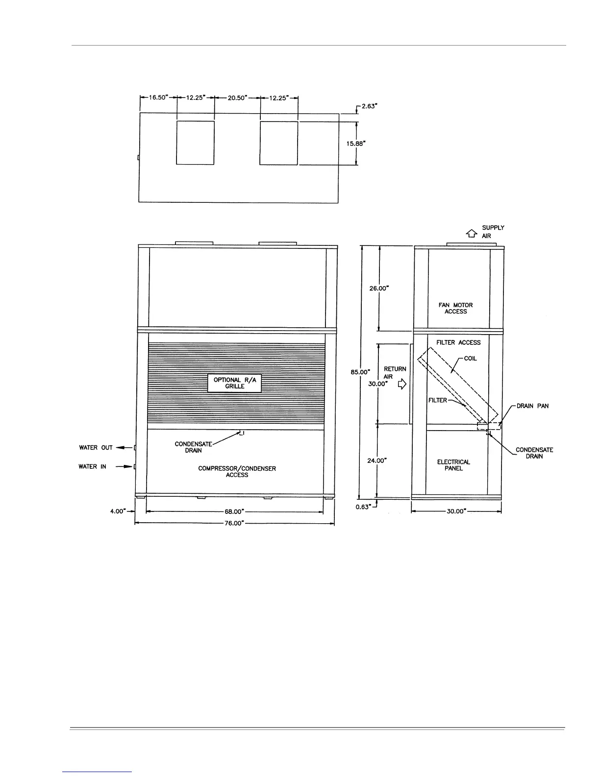
FIGURE 3 : DIMENSIONS CU180

Related product manuals