EasyManua.ls Logo

York DC-090 - DC090-150 Unit Bottom Duct Openings

York DC-090
70 pages
To Next Page IconTo Next Page
To Next Page IconTo Next Page
To Previous Page IconTo Previous Page
To Previous Page IconTo Previous Page
Loading...
5120410-XIM-B-0216
Johnson Controls Unitary Products 13
TOP VIEW
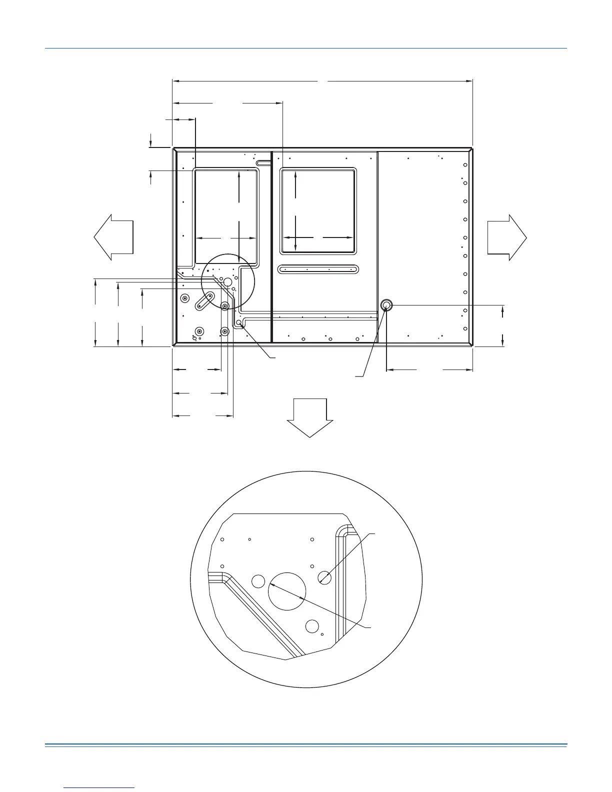
Figure 9: DC090-150 Unit Bottom Duct Openings
Bottom condensate drain
Bottom gas
supply entry
FRONT
RETURN
AIR
SUPPLY
AIR
RIGHT
LEFT
20 1/8
19 1/8
17 1/8
6 13/16
6 13/16
32 11/16
14 1/2
16 3/8
18 1/16
25 9/16
12 5/16
27 1/2
24
21
18
89
(2261)
(830)
(173)
(173)
(690)
(457)
(610)
(533)
(511)
(486)
(435)
(368)
(416)
(459)
(649)
(313)
NOTE: (XXX) Indicates Millimeters
Ø 2.469
3X Ø 0.875
Bottom power, control
and convenience outlet
wiring entry
(22)
(63)

Table of Contents

Related product manuals