EasyManua.ls Logo

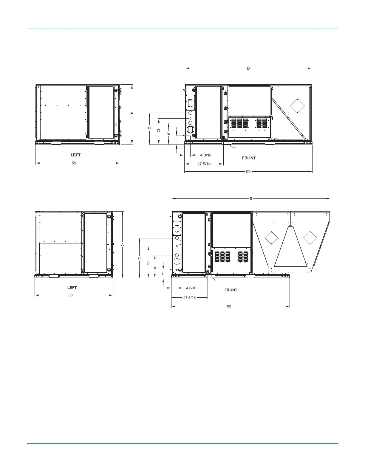
York Predator XP102 - XP078-150 Unit Dimensions

York Predator XP102
54 pages
Print Icon
To Next Page IconTo Next Page
To Next Page IconTo Next Page
To Previous Page IconTo Previous Page
To Previous Page IconTo Previous Page
Loading...
528195-YTG-I-0513
46 Johnson Controls Unitary Products
XP078-150 Unit Dimensions
XP078-120
XP150
See detail A for drain location

Related product manuals