EasyManua.ls Logo

A.O. Smith Upsilon - Wiring diagram

A.O. Smith Upsilon
68 pages
Print Icon
To Next Page IconTo Next Page
To Next Page IconTo Next Page
To Previous Page IconTo Previous Page
To Previous Page IconTo Previous Page
Loading...
Installation and Service Manual Upsilon-Series
35
T1
P1
T2
X11X9X8
X7
X6
X5
X4 X3
X2
X1
X12
6,3A T
6,3A T
X11X9X8
X7
X6
X5
X4 X3
X2
X1
X12
6,3A T
6,3A T
A B
25
A2 B2
P1
T2
A20
A23
A4
A5
A6
B4
B5
B6
B8
B9
A8
T1a
A11
A9
A10
B10
24
30
30
1
A3
B3
26
A21
T1a (HEX4)
B11
B23
B22A22
B7
A7
11 1
20 10
10 1
18 9
8 1 12 1
1
9
1
2
3
11 1
10 1
18 9
8 1 12 1
1
9
1
2
3
11 1
10 1
18 9
8 1 12 1
1
9
1
2
3
20 10
C1 C2 C3
1
1
1
16
14
6
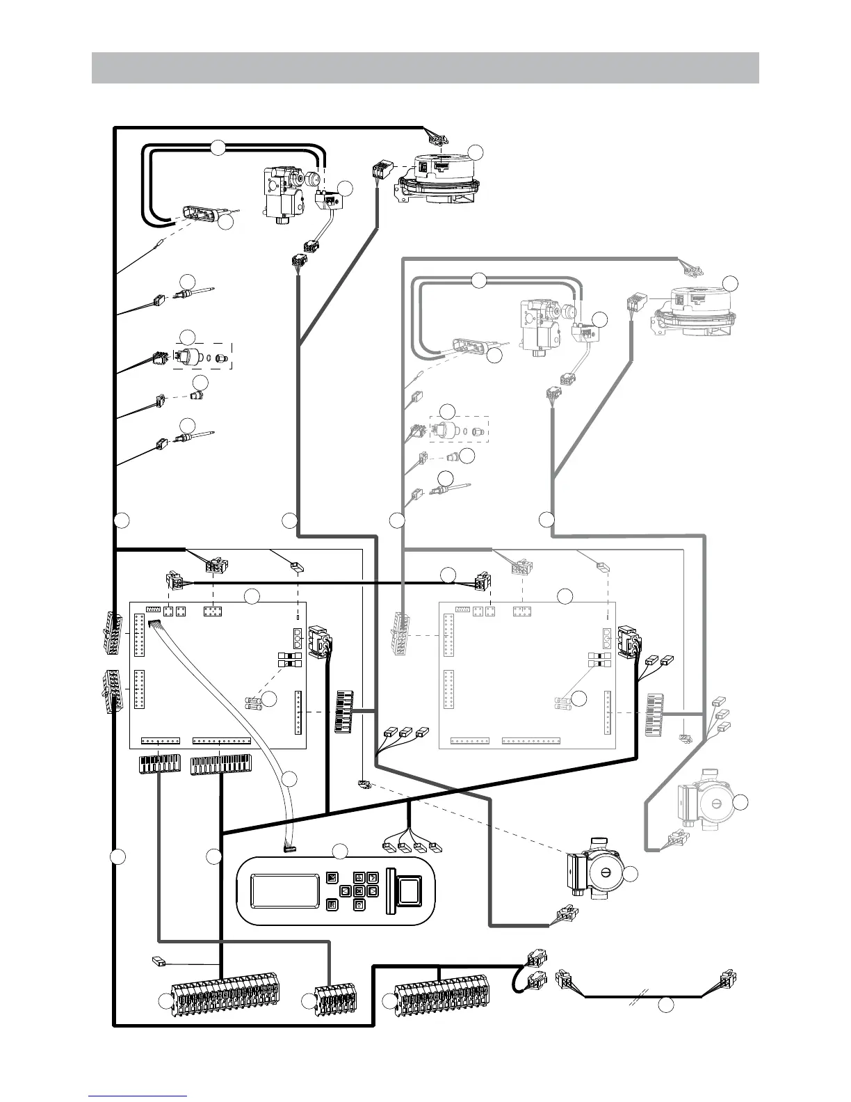
8.2 Wiringdiagram
gure 8.1.a

Related product manuals