EasyManua.ls Logo

AAON Orion ASM02221 - Wiring to VAV;Zone Controller

AAON Orion ASM02221
20 pages
Print Icon
To Next Page IconTo Next Page
To Next Page IconTo Next Page
To Previous Page IconTo Previous Page
To Previous Page IconTo Previous Page
Loading...
APPENDIX
E-BUS Digital Room Sensor Technical Guide
14
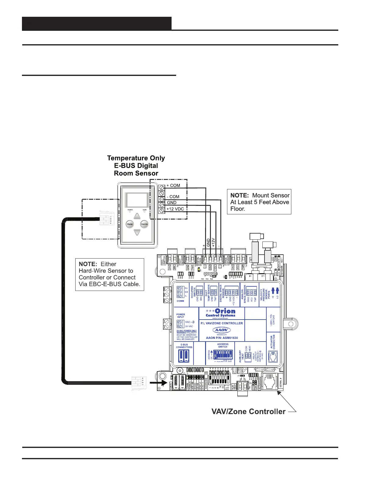
E-BUS Digital Room Sensor to VAV/Zone Controller Wiring
E-BUS Digital Room Sensor to VAV/
Zone Controller Wiring
The Temperature Only E-BUS Digital Room Sensor connects to the
VAV/Zone Controller with an EBC E-BUS expansion cable. It can also
be hard-wired to the VAV/Zone Controller.
The E-BUS Digital Room Sensor should be mounted at approximately
5 Ft. above the oor on the wall in an area that does not have drafts or
is exposed to direct sunlight. See Figure 20 for wiring details.
Figure 20: VAV/Zone Controller E-BUS Digital Room Sensor Wiring

Related product manuals