EasyManua.ls Logo

AAON RL Series - Unit Lifting Details; Unit Specific Lift Slot Locations; Rigging at Marked Lifting Points Warning

AAON RL Series
36 pages
Print Icon
To Next Page IconTo Next Page
To Next Page IconTo Next Page
To Previous Page IconTo Previous Page
To Previous Page IconTo Previous Page
Loading...
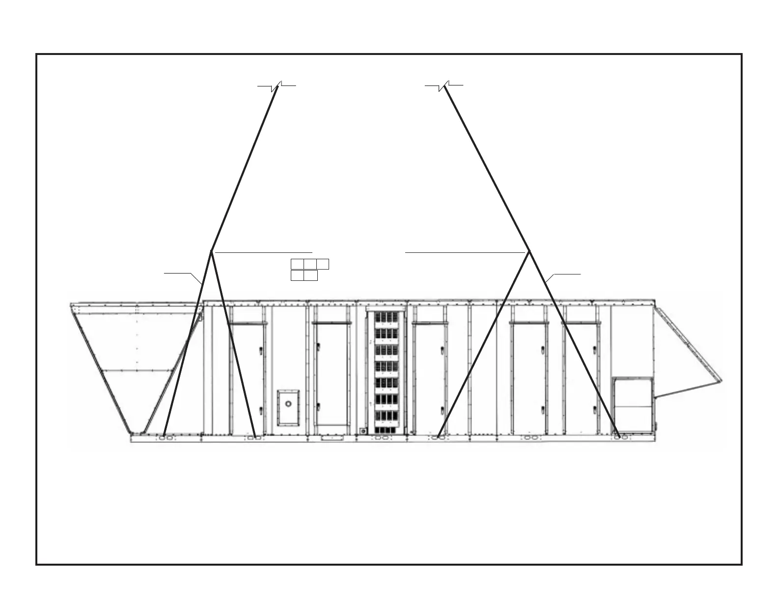
RL UNIT LIFTING DETAIL
Drawing N.T.S
192” Minimum Length
Equal on Both Legs
SPREADER BARS
192” Minimum Length
Equal on Both Legs
A B C 100” Wide Cabinet = 112”
D E 142” Wide Cabinet = 154”
General Configuration
Lift Slot Locations Are Unit Specific
NOTE: UNIT MUST BE RIGGED AT ALL MARKED LIFTING POINTS.

Related product manuals