EasyManua.ls Logo

AB Inflatables ABJET - E L E C T R I C a L D I Ag R a M

AB Inflatables ABJET
46 pages
Print Icon
To Next Page IconTo Next Page
To Next Page IconTo Next Page
To Previous Page IconTo Previous Page
To Previous Page IconTo Previous Page
Loading...
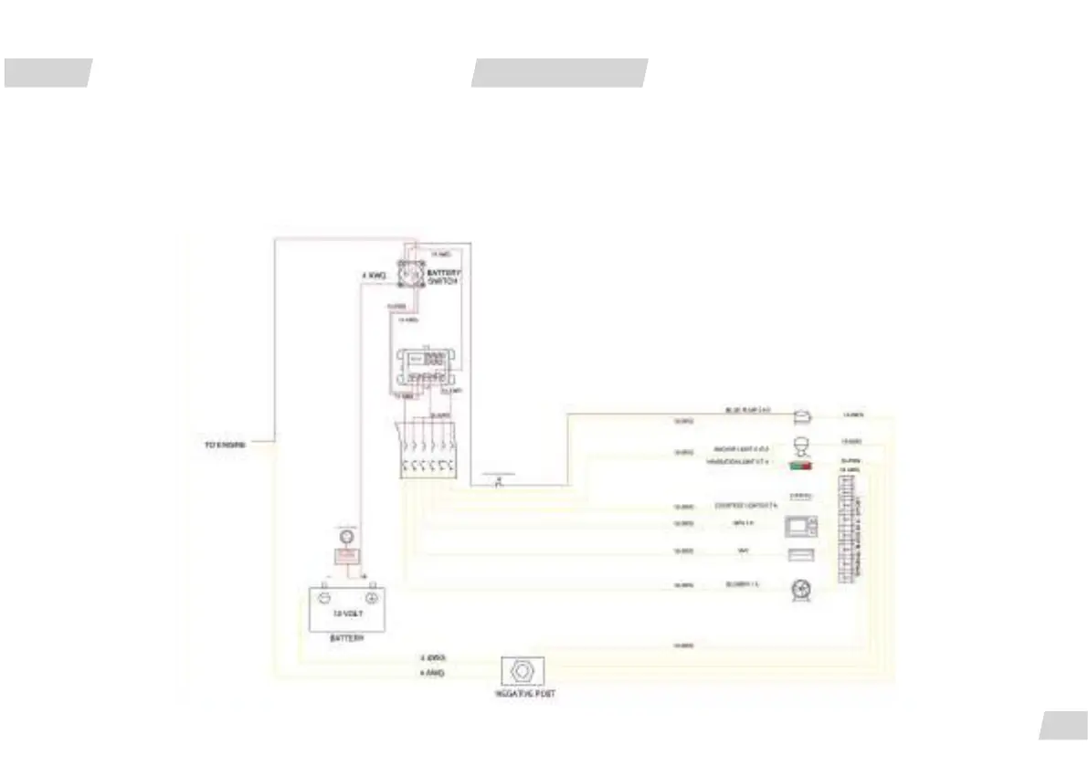
ELECTRICAL DIAGRAMS
Please refer to these electrical diagrams when you want to
make modications, repairs or maintenance to the electrical
power system of the boat.
1 Wiring diagram
41

Related product manuals