EasyManua.ls Logo

ABB ACS600 - Page 24

ABB ACS600
28 pages
Print Icon
To Next Page IconTo Next Page
To Next Page IconTo Next Page
To Previous Page IconTo Previous Page
To Previous Page IconTo Previous Page
Loading...
du/dt Filters Installation Guide
24
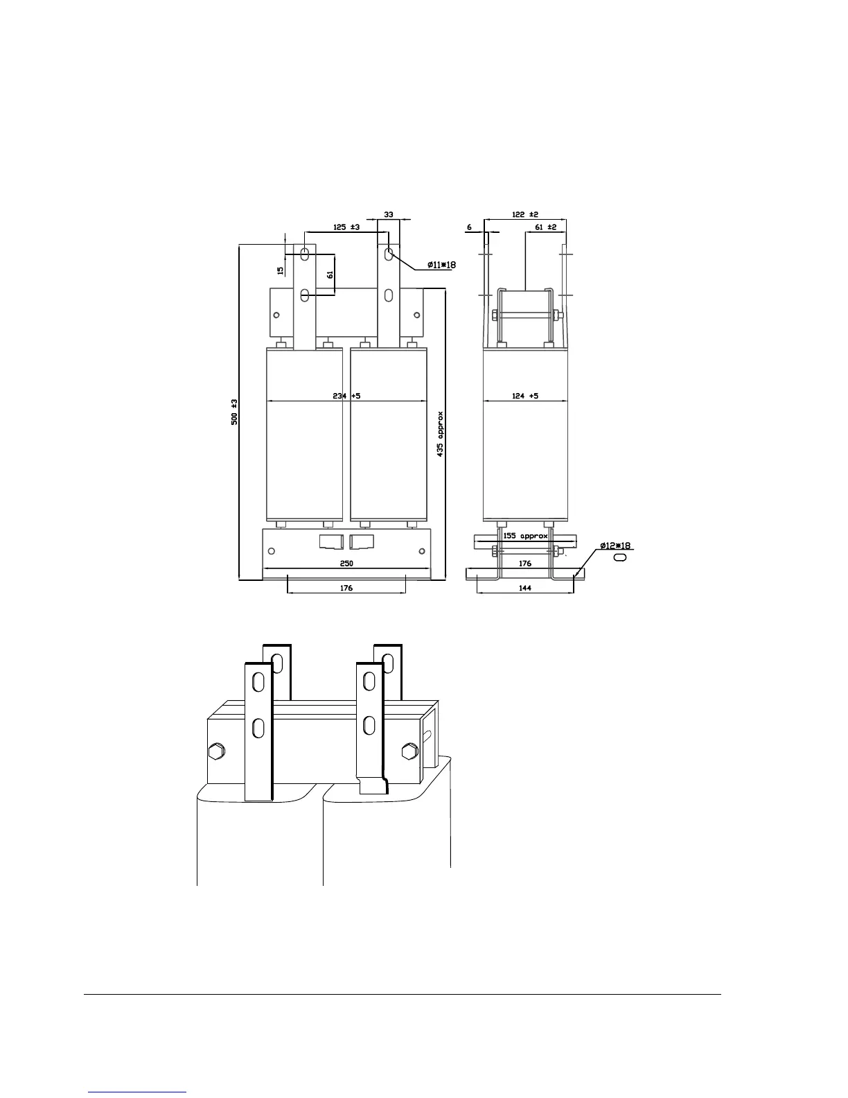
NOCH0760-60 Weight: 43 kg (95 lbs)
1.1
2.1
1.2
2.2

Related product manuals