EasyManua.ls Logo

ABB ACS800 - Frame Size R7 with DC Busbars on both Sides (MM)

ABB ACS800
162 pages
Print Icon
To Next Page IconTo Next Page
To Next Page IconTo Next Page
To Previous Page IconTo Previous Page
To Previous Page IconTo Previous Page
Loading...
Dimensional drawings
124
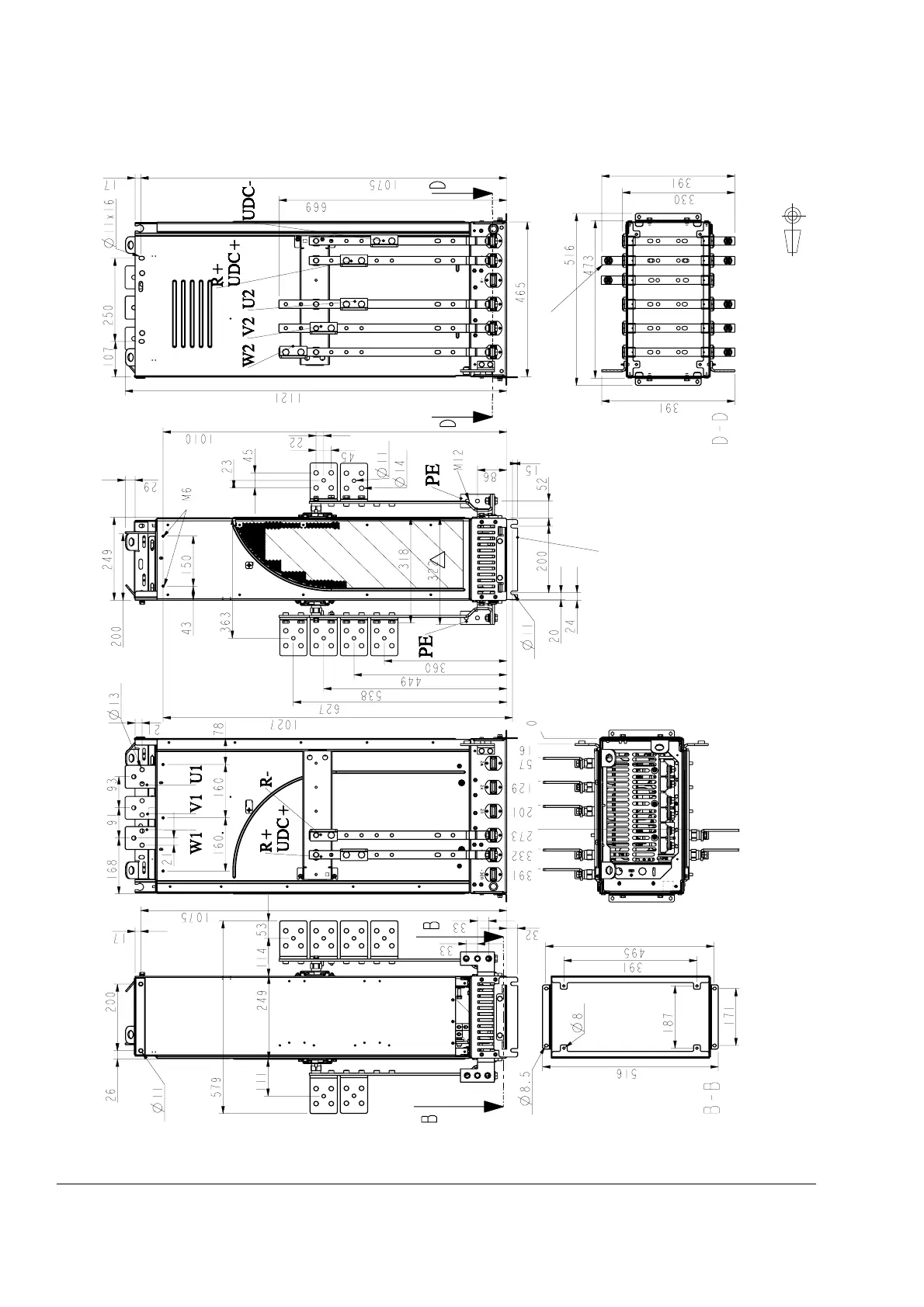
Frame size R7 with DC busbars on both sides (mm)
64796003_2/7 G
Fastening bracket
for wall mounting only
Bilateral busbar

Table of Contents

Other manuals for ABB ACS800

Related product manuals