EasyManua.ls Logo

ABB Eden - Connection Examples

ABB Eden
17 pages
Print Icon
To Next Page IconTo Next Page
To Next Page IconTo Next Page
To Previous Page IconTo Previous Page
To Previous Page IconTo Previous Page
Loading...
2TLJ172066M0201, rev. F 7 www.abb.com/jokabsafety
2015-02-09
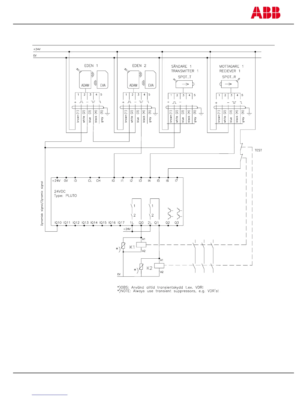
Connection examples
Connection example: Two Eden and one Spot T/R connected to Pluto safety-PLC
Caution! All cable colours according to ABB Jokab Safety standard cables.
ABB
Please note!
This model of Eden is obsolete and has been replaced by Eden DYN

Related product manuals