EasyManua.ls Logo

ABB SPAC 310 C - Intermodular Control Signal Exchange

ABB SPAC 310 C
110 pages
Print Icon
To Next Page IconTo Next Page
To Next Page IconTo Next Page
To Previous Page IconTo Previous Page
To Previous Page IconTo Previous Page
Loading...
13
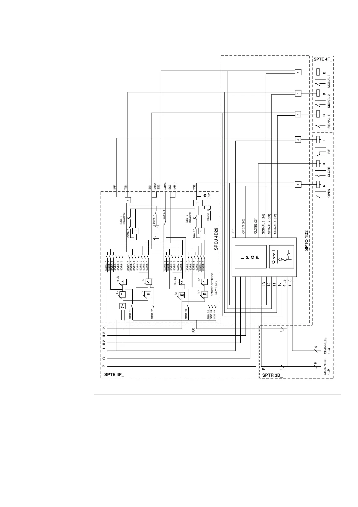
Intermodular
control signal
exchange
The initial factory settings of the feeder terminal
may have to be changed in different applica-
tions. The scheme below illustrates how the
input and output signals can be programmed to
obtain the required functions for the unit.
1
SIGNAL 3 (24)
SIGNAL 2 (23)
SIGNAL 1 (22)
CLOSE (21)
OPEN (20)
SGR3 / 1
SGR1 / 1
SGR3 / 2
SGR2 / 1
SGR2 / 2
SGR1 / 2
SGR3 / 3
SGR1 / 3
SGR3 / 4
SGR2 / 3
SGR2 / 4
SGR1 / 4
SGR3 / 5
SGR1 / 5
SGR3 / 6
SGR2 / 5
SGR2 / 6
SGR1 / 6
SGR3 / 7
SGR1 / 7
SGR3 / 8
SGR2 / 7
SGR2 / 8
SGR1 / 8
I>
t>, k
to>, ko
Io>
to»
Io»
BS
SGB / 1
SGB / 2
SGB / 3
SGB / 4
SGB / 5
SGB / 8
REMOTE SETTINGS
RELAY RESET
1
SGB / 6
RESET+
PROGRAM
1
SGB / 7
RESET+
PROGRAM
1
1
1
SGF1 / 4
RESET
TRIP
t
(AR2)
(AR1)
SGF2 / 8
SGF2 / 7
1
(AR3)
A
B
I
P
Q
E
E
13
12
11
10
4...9
1...3
IRF
OPEN
CLOSE
SS1
TS1
TS2
SS3
SS2
IRF
CHANNELS
4...9
6
1
1
CHANNELS
1...3
6
IL1
IL2
IL3
Io
P
Q
SPTR 3B_
SPTE 4F_
F
IRF
D
E
C
SIGNAL 1
SIGNAL 2
SIGNAL 3
1
1
SPTE 4F_
&
Fig. 6. Intermodular control signals of SPAC 310 C and SPAC 312 C

Related product manuals