EasyManua.ls Logo

Aerospool WT-9 Dynamic - Electrical System

Default Icon
64 pages
Print Icon
To Next Page IconTo Next Page
To Next Page IconTo Next Page
To Previous Page IconTo Previous Page
To Previous Page IconTo Previous Page
Loading...
WT-9 Dynamic Club S FLIGHT MANUAL Section 7 Page 7-11
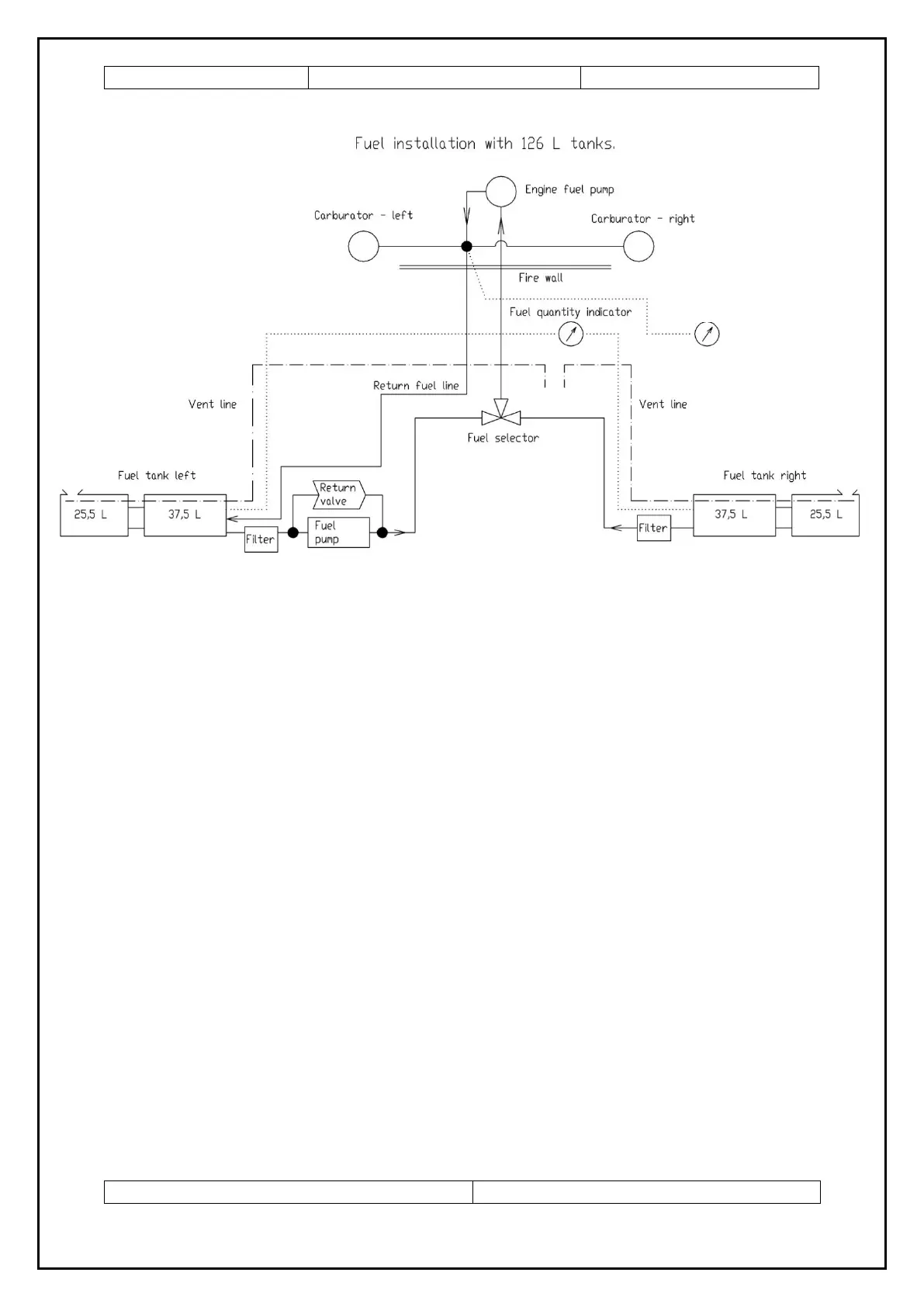
Fig. 14 The fuel system scheme
On the WT-9 Dynamic Club S airplane the left tank is considered the main tank as
the electric fuel pump operates on this tank and the excess fuel is also returned there.
The left tank must be used for all take offs and landings. When You are flying with
full tanks, use the left tank for 30 40 minutes before changing to the right tank.
This allows space for the return of excess fuel without venting it overboard.
Monitor the fuel quantity when you are doing long flights or flights with low fuel
quantity. To maximize range/endurance when the red annunciator lights flash (7
litters each tank), the following procedure is recommended. Select the right tank and
use this tank until all the fuel is exhausted. Change back to the left tank should now
have slightly more than 7 litres (around 20 minutes flying depending on power
settings) because of the return fuel. Continue flight and landing procedure with the
electric fuel pump on, as is written in this manual.
7.11 Electrical system
There are electrical system diagrams in the Maintenance Manual for the ultralight
airplane WT-9 Dynamic Club S. The wiring system depends on instrumentation and
other electric equipment of an individual aeroplane according to a customer’s desire.
The dual engine ignition is a separate part of the electric system. Each of two ignition
circuits has its own break switch. The detailed description of the ignition and the AC
generator is listed at the Operator’s Manual for ROTAX ULS engine.
Date: 15.1.2007 / Rev.: 4
Fuel pressure indicator

Other manuals for Aerospool WT-9 Dynamic

Related product manuals