EasyManua.ls Logo

Airmar P19 - Installation in Cored Fiberglass Hull; Maintenance, Parts & Replacement; Antifouling Paint; Cleaning

Airmar P19
4 pages
Print Icon
To Previous Page IconTo Previous Page
To Previous Page IconTo Previous Page
Loading...
AIRMAR
®
TECHNOLOGY CORPORATION
35 Meadowbrook Drive, Milford, New Hampshire 03055-4613, USA
www.airmar.com
4
Copyright © 2006, 2007 Airmar Technology Corp. All rights reserved.
Warning: Always attach the safety wire to prevent the blanking
plug from backing out in the unlikely event that the cap nut fails
or is screwed on incorrectly.
4. Reattach the safety wire.
Installation in a Cored Fiberglass Hull
The core (wood or foam)
must
be cut and sealed carefully. The
core
must
be protected from water seepage, and the hull
must
be
reinforced to prevent it from crushing under the hull nut allowing
the housing to become loose.
Warning: Always wear safety goggles and a dust mask.
1. Drill a 3 mm or 1/8" pilot hole from inside the hull. If there is a rib,
strut, or other hull irregularity near the selected mounting
location, drill from the outside. (If the hole is drilled in the wrong
location, drill a second hole in a better location. Apply masking
tape to the outside of the hull over the incorrect hole and fill it with
epoxy.)
2. Using the appropriate size OUTSIDE HULL hole saw, cut a hole
from outside the hull through the
outer
skin only (see table on
page 1) (see Figure 4).
3. From inside the hull using the appropriate size HULL INTERIOR
hole saw, cut through the
inner
skin and most of the core (see
table on page 1). The core material can be very soft. Apply only
light pressure to the hole saw after cutting through the
inner
skin to avoid accidentally cutting the
outer
skin.
4. Remove the plug of core material, so the
inside
of the outer skin
and the inner core of the hull is fully exposed. Sand and clean
the inner skin, core, and the outer skin around the hole.
Caution: Completely seal the hull to prevent water seepage
into the core.
5. If you are skilled with fiberglass, saturate a layer of fiberglass
cloth with a suitable resin and lay it inside the hole to seal and
strengthen the core. Add layers until the hole is the correct
diameter.
Alternatively, a hollow or solid cylinder of the correct diameter
can be coated with wax and taped in place. Fill the gap between
the cylinder and hull with casting epoxy. After the epoxy has set,
remove the cylinder.
6. Sand and clean the area around the hole, inside and outside, to
ensure that the marine sealant will adhere properly to the hull. If
there is any petroleum residue inside the hull, remove it with
either mild household detergent or a weak solvent (alcohol)
before sanding.
7. Proceed with “Bedding”, “Installing”, and “Cable Routing &
Connecting” (see pages 2 and 3).
Maintenance, Parts & Replacement
Antifouling Paint
Surfaces exposed to salt water
must
be coated with antifouling
paint. Use
WATER-BASED
antifouling paint only.
Never
use
ketone based antifouling paint, since ketones can attack many
plastics possibly damaging the transducer. Apply antifouling paint
every 6 months or at the beginning of each boating season.
Cleaning
Aquatic growth can accumulate rapidly on the transducer’s
surface, reducing its performance within weeks. Clean the surface
with a Scotch-Brite® scour pad and mild household detergent,
being careful
to avoid making scratches. If the fouling is severe,
lightly wet sand it with fine grade wet/dry paper.
Replacement Transducer & Parts
The information needed to order a replacement Airmar transducer
is printed on the cable tag.
Do not
remove this tag. When
ordering, specify the part number, date, and frequency in kHz. For
convenient reference, record this information on the top of page one.
Lost, broken, or worn parts should be replaced immediately. Any
O-rings must be free of abrasions and cuts to ensure a watertight
seal.
Obtain parts from your instrument manufacturer or marine dealer.
Gemeco (USA) Tel: 843.394.3565
Fax: 843.394.3736
email: sales@gemeco.com
Airmar Europe Tel: +45.45.81.04.18
Fax: +45.45.81.04.93
email: sales@airmareurope.com
Model
Housing, Washer, & Hull Nut
or
Spacer
Hull Nut Cap Nut
Blanking
Plug
P19
P219
P269
04-004
P217
P314
33-217 (plastic, flush)
33-092-01 (plastic, counterbore)
04-004 04-234 (plastic) 33-414
P319 04-646-01 (spacer) 04-004
B17
B21 B
33-100 (bronze, low profile)
33-224-01 (bronze, counterbore)
02-030
04-234 (plastic)
02-131-01 (bronze)
33-414
B117
B619
04-646-01 (spacer) 02-030
SS577 33-495-01 (stainless steel,
low profile)
20-570-01
04-186-1
(isolation ring)
04-011 (plastic) 33-414
SS555 04-646-01 (spacer)
20-520-02
04-186-1
(isolation ring)
——
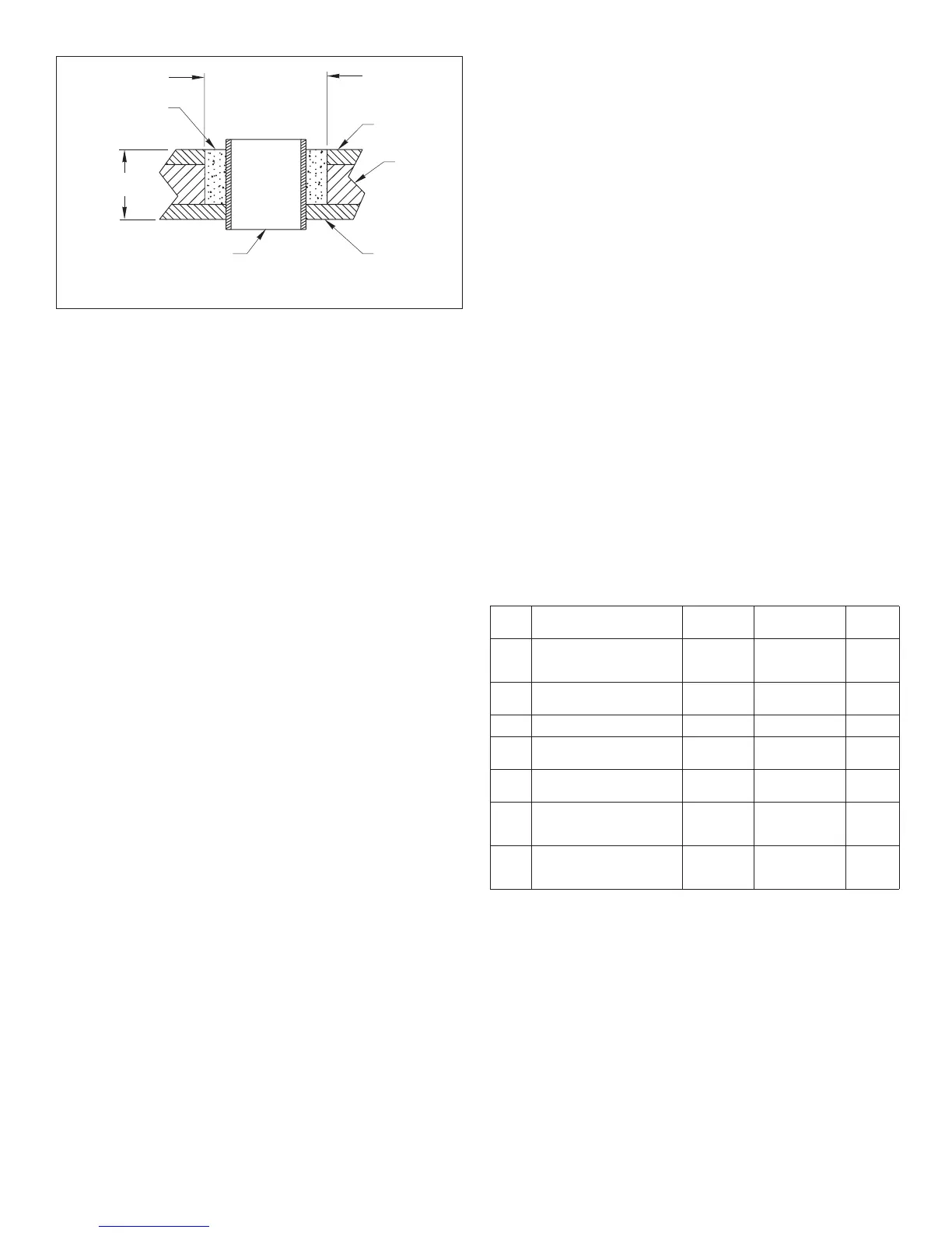
Figure 4. Preparing a cored fiberglass hull
inner skin
core
outer skinsolid or hollow cylinder
pour in
casting
epoxy
9-12 mm
(3/8-1/2")
larger than the
hole through the
hull’s outer skin
hull thickness
Copyright © 2005 Airmar Technology Corp.

Related product manuals