EasyManua.ls Logo

ALERTON MS/TP Microset II - Securing the MS;TP Microset II

ALERTON MS/TP Microset II
45 pages
Print Icon
To Next Page IconTo Next Page
To Next Page IconTo Next Page
To Previous Page IconTo Previous Page
To Previous Page IconTo Previous Page
Loading...
Installation and Operations Guide
|
Mounting
© Honeywell LTBT-MSTPMS2IOG Rev. 02
9
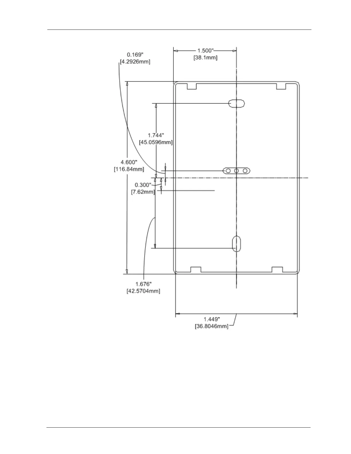
Figure 2 Backplate mounting dimensions.
The MS/TP Microset II ships with the backplate on backwards. This makes the
backplate easier to remove during installation. Two screws attach the backplate
to an electrical box, mud ring, or other mounting surface.
To secure the MS/TP Microset II to a mounting surface
1. Remove the backplate from the MS/TP Microset II and the wiring
pigtail.
2. Flip the backplate so the smooth side faces the mounting surface.
3. Rethread the wires through the center knockout on the backplate.

Related product manuals