EasyManua.ls Logo

alfaplam TERM -20 - 8. PRACTICAL INSTRUCTIONS AND ADVICE FOR HEATING SYSTEM USE

alfaplam TERM -20
18 pages
Print Icon
To Next Page IconTo Next Page
To Next Page IconTo Next Page
To Previous Page IconTo Previous Page
To Previous Page IconTo Previous Page
Loading...
7
Figure 5 Figure 6
8. PRACTICAL INSTRUCTIONS AND ADVICE FOR HEATING SYSTEM
USE
- We recommend that you choose a closed system due to the risk of corrosion in an open heating system.
- All connections must be well sealed and fastened.
- Before commissioning, the complete installation should be examined with water with pressure of 2,4 bar.
- It is desirable that water is drained out from the system at least once because of the grime located in the system.
- For an installation in which only a solid fuel “alfa term 20” is connected, we recommend expansion vessel from 18 (l) but
not less than 12(l) which would be placed on returning water, as close as possible to the boiler, and no block valve should be
set between the boiler and the expansion vessel.
In order to reduce the risk of condensation, it is recommended to use a three-way mixing valve with a fitting thermostat
when installing the solid fuel.
We recommend that you do not adjust the water temperature below 57 ºC due to possible condensation of the boiler,
neither above 75ºC.
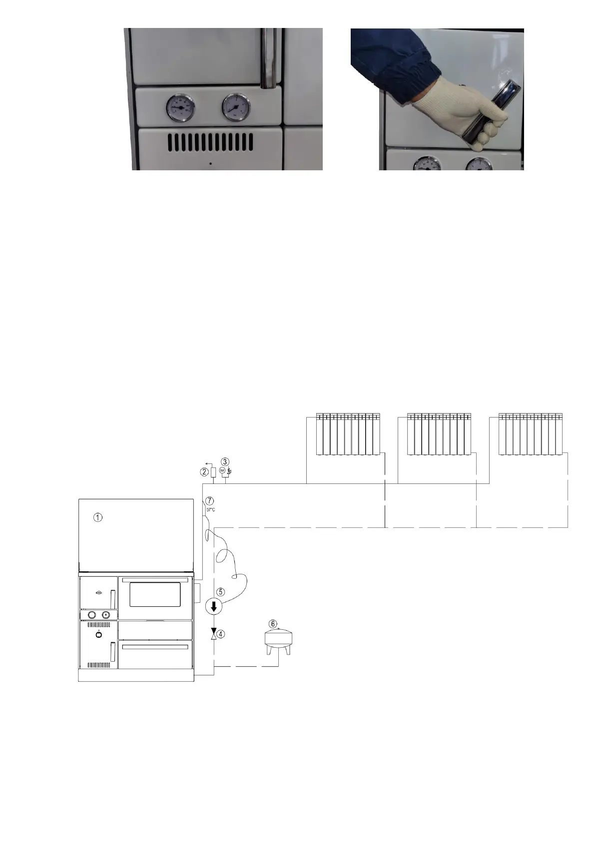
Scheme of the hydraulic installation of a solid fuel (radiator heating)
Legend:
1. Solid fuel
2. Auto Air Vent
3. Safety valve 3 bar
4. Non-return valve
5. Circulation pump
6. Closed expansion vessel
7. Contact thermostat
Note:
- It is mandatory to install a thermal discharge valve with thermal
protection, the so-called thermal fuse in accordance with the
recommendations from the technical instructions.
- Install the safety valve directly on the boiler, at the connection
provided, which is described in the instructions.

Related product manuals