EasyManua.ls Logo

alfaplam TERM -20 - 18. Overall dimensions of solid fuel ALFA TERM 20; 19. DETERMINING THE REQUIRED HEAT OUTPUT; 20. TURNING THE APPLIANCE OFF

alfaplam TERM -20
18 pages
Print Icon
To Previous Page IconTo Previous Page
To Previous Page IconTo Previous Page
Loading...
14
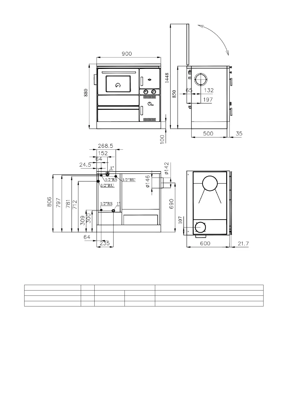
18. Overall dimensions of solid fuel ALFA TERM 20
19. DETERMINING THE REQUIRED HEAT OUTPUT
There is no absolute rule that would allow the calculation of the required heat output. This power is determined by the
space you want to heat, but it also largely depends on the insulation. On average, the required heat output for a properly
insulated room would be 30 kcal h per m
3
(at an outdoor temperature of 0°C).
Indicative combustion value
Required quantity in the ratio of 1 kg of dry wood
Fuel
Unit
kcal/h
kW
Dry wood (15% moisture)
kg
3600
4.2
1.00
Wet wood
(50% moisture)
kg
1850
2.2
1.95
20. TURNING THE APPLIANCE OFF
In the event of fire or overheating, close the air inlet covers and DO NOT open the fireplace door. Extinguish the fire with
appropriate means (home fire extinguisher...). NEVER USE WATER TO EXTINGUISH THE FIRE! Also notify local firefighters in
case of fire. Follow local fire protection regulations!

Related product manuals