EasyManua.ls Logo

Allen-Bradley PowerFlex 700AFE - Customer Power Terminal Comparison; Locations and Specifications

Allen-Bradley PowerFlex 700AFE
102 pages
To Next Page IconTo Next Page
To Next Page IconTo Next Page
To Previous Page IconTo Previous Page
To Previous Page IconTo Previous Page
Loading...
56 Rockwell Automation Publication 750-RM003A-EN-P - April 2018
Chapter 1 Selection Considerations
Customer Power Terminal
Comparison
This section compares the customer power terminals of the bus supplies.
PowerFlex 700AFE Bus Supply Customer Power Terminal Locations
and Specifications
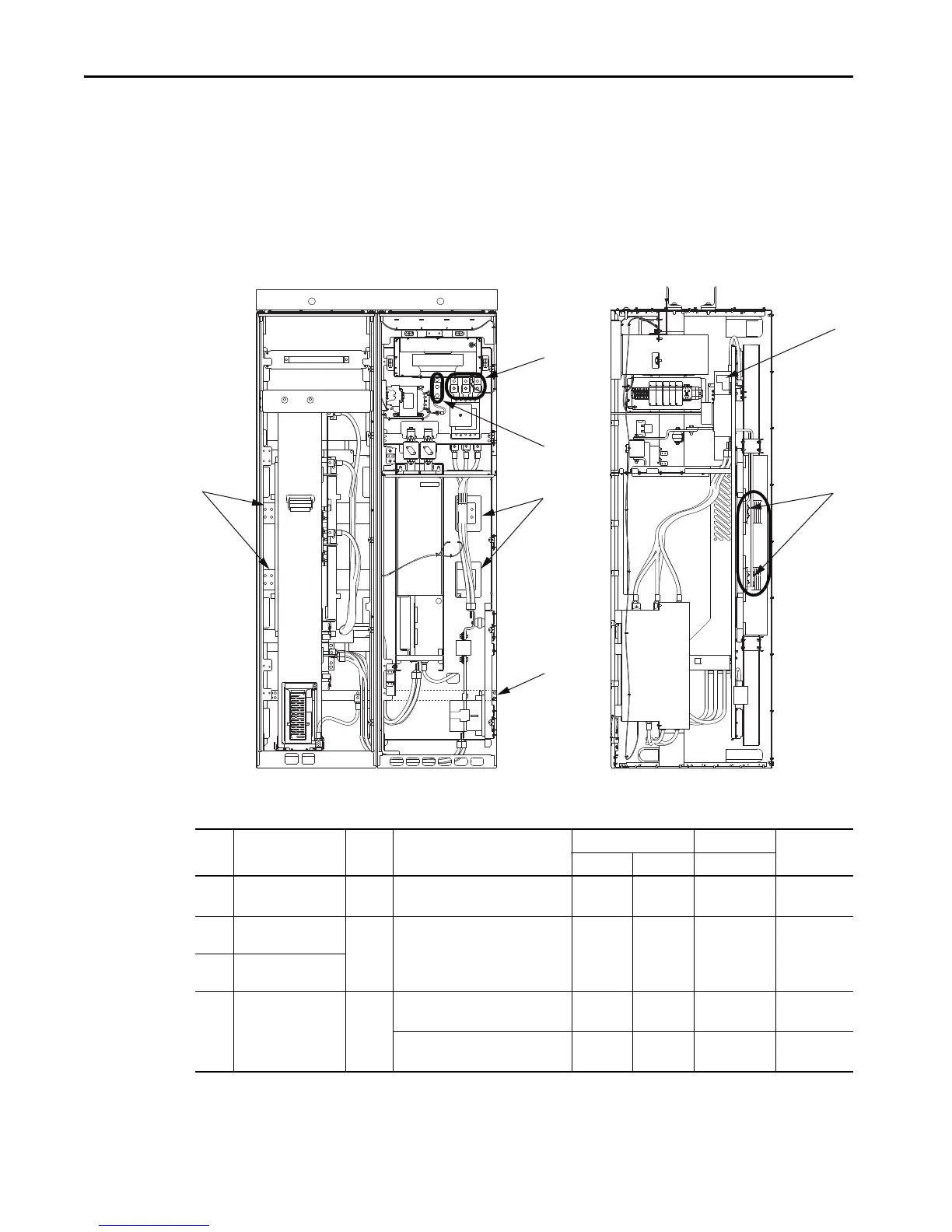
Figure 9 - PowerFlex 700AFE Frame 10 Power Terminal Locations in IP20 2500 MCC Style
Enclosure
Table 27 - PowerFlex 700AFE Frame 10 IP20 MCC Power Terminal Specifications
1
2
4
4
4
3
2
Shown with
enclosure doors
and side removed.
Front View Right Side View
Item Name Frame Description
Wire Size Range
(1)
(2)
Torque
Terminal Bolt
Size
(3)
(4)
Max Min Recommended
1 Input power terminals
L1, L2, L3
(1)
10 Input power 240 mm
2
(500 MCM)
95 mm
2
(3/O AWG)
40 N•m
(354 lb•in)
2 SHLD terminal, line PE,
ground
(3)
10 Terminating point for wiring shields
300 mm
2
(600 MCM)
2.1 mm
2
(14 AWG)
40 N•m
(354 lb•in)
M5-M10
3 SHLD terminal, motor
PE, ground
(3)
4DC bus
(3)
(DC–, DC+) 10 DC output (using cable) 240 mm
2
(500 MCM)
2.1 mm
2
(14 AWG)
70 N•m
(620 lb•in)
M12
DC output (using splice kit
SK-Y1-BUSSPLICE-F10)
——40 Nm
(354 lb•in)
M10
(1) Maximum/minimum sizes that the terminals can accept. These sizes are not recommendations.
(2) Do not exceed maximum wire size. Parallel connections can be required.
(3) These connections are bus bar type terminations and require the use of lug type connectors.
(4) Apply counter-torque to the nut on the other side of terminations when tightening or loosening the terminal bolt to avoid damage to the terminal.

Table of Contents

Related product manuals