EasyManua.ls Logo

Allen-Bradley Rockwell Automation PowerFlex 700 Series - Page 40

Allen-Bradley Rockwell Automation PowerFlex 700 Series
72 pages
Print Icon
To Next Page IconTo Next Page
To Next Page IconTo Next Page
To Previous Page IconTo Previous Page
To Previous Page IconTo Previous Page
Loading...
40 Rockwell Automation Publication PFLEX-AP005B-EN-P - May 2019
Chapter 1 Drive Selection Considerations
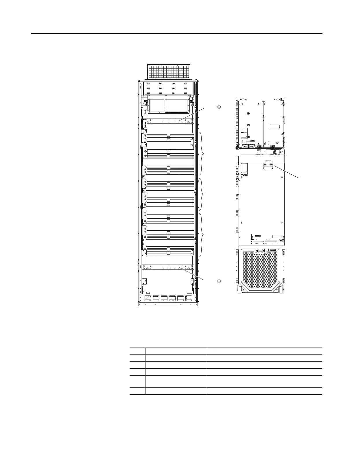
Figure 18 - PowerFlex 755 Drive Power Terminal Bus Bar Locations
Table 19 - PowerFlex 755 Drive Frame 8 Power Terminal Locations
No. Name Description
1 Power Bus R/L1, S/L2, T/L3
2 DC Bus DC+, DC- (requires field installed kit 20-750-BUS1-F8)
3 Power Bus U/T1, V/T2, W/T3
4 PE Grounding Bar Terminating point to chassis ground for incoming AC line and
motor shield
5 DC+ and DC- Bus voltage test points
R / L1
S / L2
T / L3
DC+
DC-
U / T1
V / T2
W / T3
PE
PE
Frame 8
With Optional
Exhaust Hood
(on IP20)

Related product manuals