EasyManua.ls Logo

Alliance Laundry Systems UT055E - Gas Connection Locations - T30 and T45 Series

Alliance Laundry Systems UT055E
136 pages
Print Icon
To Next Page IconTo Next Page
To Next Page IconTo Next Page
To Previous Page IconTo Previous Page
To Previous Page IconTo Previous Page
Loading...
Specifications and Dimensions
Part No. 70458301ENR7
©
Copyright, Alliance Laundry Systems LLC - DO NOT COPY or TRANSMIT 31
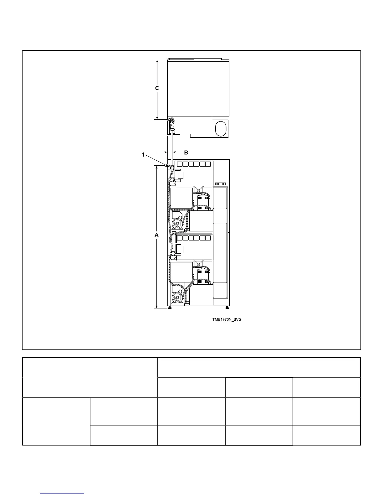
Gas Connection Locations – T30 and T45 Series
TMB1970N
1
1/2 in. NPT
Gas Connection
Models A B C
Non-CE and Non-
Australian
75.20 in. (1,910 mm) 1.74 in. (44 mm) 36.84 in. (936 mm)T30 Series
CE and Australian 75.28 in. (1,912 mm) 2.5 in. (64 mm) 30.60 in. (777 mm)

Table of Contents

Other manuals for Alliance Laundry Systems UT055E

Related product manuals