EasyManua.ls Logo

Allied A97UH2E - Wiring Diagram

Allied A97UH2E
70 pages
Print Icon
To Next Page IconTo Next Page
To Next Page IconTo Next Page
To Previous Page IconTo Previous Page
To Previous Page IconTo Previous Page
Loading...
508433-01 Issue 2345 Page 59 of 70
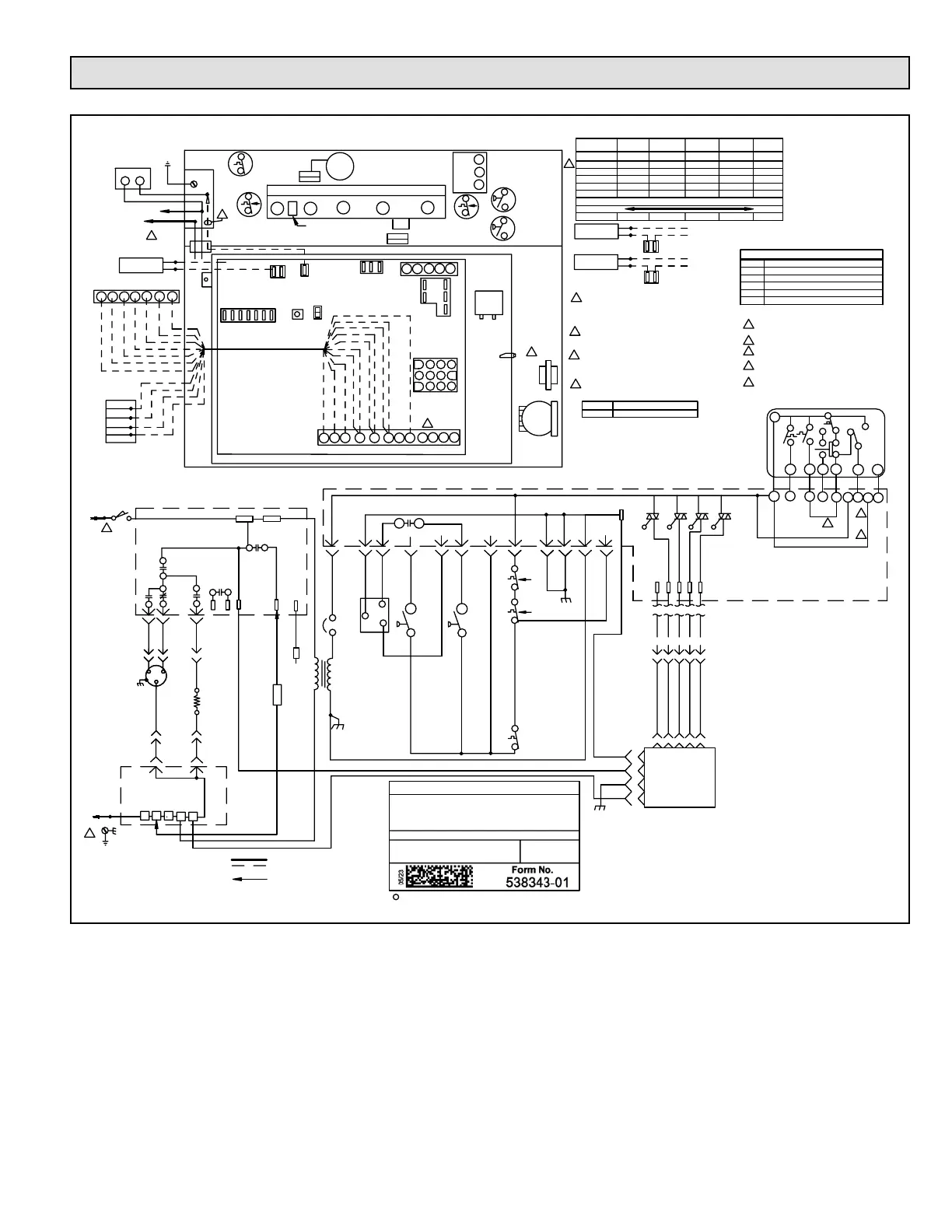
Wiring Diagram
Figure 58.
J159
P159
IGNITOR
1
2
NOTE-
IF ANY WIRE IN THIS APPLIANCE IS REPLACED,IT
MUST BE REPLACED WITH WIRE OF LIKE SIZE,
HEATING UNITS-GAS
S51
L1
N
N N N
EQUIPMENT
GROUND
N N
P159
J159
BLUE
BLUE
CB8
WARNING-
ELECTRIC SHOCK HAZARD,CAN CAUSE INJURY
OR DEATH.UNIT MUST BE GROUNDED IN ACCORDANCE
WITH NATIONAL AND LOCAL CODES.
DENOTES OPTIONAL COMPONENTS
LINE VOLTAGE FIELD INSTALLED
CLASS II VOLTAGE FIELD WIRING
.65 AMP
24V
24VAC
SEC
NO
S102
C
GV1
GAS
VALVE
R33
S10
INTEGRATED
CONTROL
A92
THERMOSTAT HEAT ANTICIPATION SETTING
INTEGRATED CONTROL
INTEGRATED
CONTROL
A92
LOW HEAT
PRESSURE
SWITCH
CB8
S102
HIGH HEAT
PRESSURE
SWITCH
W2
PRIMARY
GAS
LIMIT
CIRCUIT
BREAKER
T1
TRANSFORMER
120V ACC
(IF USED)
G
N
L1
GV1
GAS
VALVE
B3
S51
S1
ROOM THERMOSTAT
C
Y1
OUTDOOR
UNIT
Y1
G
W1
R
C
9
8
7
6
5
4
321
C
HI
S10
S128
COMBUSTION AIR
INDUCER MOTOR
B6
P84
J84
INTERLOCK
DOOR
L13
POWER
CHOKE
P48
P49
24VAC
COM
Y2
W2
W1
G
Y1
R
DS
3
2
TERMINAL BOARD
Y2
INDOOR
BLOWER
MOTOR
Y2
Supersedes
Litho U.S.A.
C
MVL
7
11
5
21
HLI
RO(OUT)
6
8
TH
GND
TR
MV COM
FLAME
SENSOR
A92
FLAME
SENSE
2
3
1
HUM
4
WHT
120V
T1
BLK
B6
J84
J84
COMBUSTION AIR
BLOWER MOTOR
3
COMBUSTION AIR
BLOWER MOTOR
P84
P84
B6
2
DOOR
INTERLOCK
5
LINE
CIRC
2
HIGH HEAT
PRESSURE SWITCH
1
LOW HEAT
PRESSURE SWITCH
S128
PS2
MVH
PS1
C
4
10
9
GND
HOT
O
W951
S1
C
NO
9
4
11
(1) S47
2 HEAT 2 COOL
S47
J159
P159
FLAME
ROLLOUT
SWITCH
10
11
12
TB1
HONEYWELL VALVE
1
4
4
BURNERS
R33
IGNITOR
FLAME
SENSOR
5
6
7
FIELD SUPPLIED ACC WIRE
6
1
HEAT
COOL
FAN
ON
R
W1
Y1
G
W2
Y2
COOL
2
2
AUTO
ROOM THERMOSTAT
TWO STAGE
HEAT,COOL
USE COPPER CONDUCTORS ONLY
7
W1
W2
G
Y2
Y1
C
LO
DS
3
RO(IN)
L
HEAT PUMP
CUT W951 JUMPER FROM O TO R, LABELED
"HEAT PUMP", AT A92 CONTROL BOARD, WHEN
USED FOR DUAL FUEL APPLICATIONS
RATING, INSULATION THICKNESS, AND TERMINATION
K1
K4
K7
K8
8
8
HI
W914
W915
2
3
1
.43 AMP
WHITE RODGERS VALVE
CUT W914 JUMPER LABELED DEHUM FROM DS
TO R, AT A92 CONTROL BOARD, WHEN USED
WITH A THERMOSTAT HAVING
DEHUMIDIFICATION CONTROL.
NOTE: SEE INSTALLATION INSTRUCTIONS FOR PROCEDURE
TO SET CORRECT BLOWER SPEED FOR SPECIFIC COOLING
TONNAGE BEING APPLIED, AND HEATING TEMPERATURE
RISE REQUIRED.
TYPICAL SYSTEM SHOWN FOR 2 HEAT/2 COOL WITH A
CONVENTIONAL THERMOSTAT. SEE INSTALLATION
INSTRUCTIONS FOR CONNECTIONS TO OTHER EQUIPMENT
AND ACCESSORIES.
DIP SWITCH FACTORY DEFAULT IS FOR A TWO
STAGE THERMOSTAT
DH AND L TERMINALS NOT USED.
M
1
2
3
4
56
7
J3
L1
NEUTRALS
J2
M
7
7
2011
C
R
DH
HUM
ACC
L1
J3
P3
J3
P3
P3
J3
P3
J3
120V
ACC
ACC
DIAGNOSTIC
PUSH
BUTTON
C
C
SEVEN
SEGMENT
LED
K5
K11
SEE HUM VIEWS
HUMIDIFIER
HUMIDIFIER
HUMIDIFIER
HUM
AT IFC
TO C
TO R OR H ON THERMOSTAT
TO N
TO L1
HUM
AT IFC
P2
J2
030-08
045-12
070-16
(2) S47
S47
FLAME
ROLLOUT
SWITCH
JACK/PLUG-INDOOR BLOWER-POWER
J,P48
J,P49
J,P2
J,P84
L13 USED ON 3/4
AND 1 HP ONLY
090-16
110-20
WHT
WHT
WHT
WHT/PINK
YEL
ORG
PURPLE
BRN
PINK
BRN
STRIPE
BLUE
PINK
BLUE
PURPLE
BRN
GRN/YEL
GRN/YEL
YEL
BRN
YEL
BLK
RED
WHT
9
DO NOT USE RED (LOW SPEED) FOR HIGH
HEAT ON ALL MODELS.
J49
BLUE
YLW
BRN
BLK
4
3
2
1
5
PARK
LOW HEAT
HIGH HEAT
LOW COOL
HIGH COOL
SEE BLOWER SPEED CHART
RED
UNIT
HIGH HEAT
HI COOL LOW COOL
BLACK
BLUE
045-12
070-16
090-16
110-20
HI
SPEED TAPS
LOW HEAT
PARK
LOW
BLACK
BLACK
BLACK
YELLOW
YELLOW
YELLOW
RED
RED
RED
RED
YELLOW
YELLOW
RED
BROWN
BROWN
BROWN
BROWN
BLUE
BLUE
BLACK
BLUE
BROWN
BLOWER SPEED SELECTION
BLUE
JACKPLUG CHART
J,P3
J,P159
JACK/PLUG-INDOOR BLOWER-SPD TAP
JACK/PLUG-BURNER CONTROL
JACK/PLUG-COMB AIR INDUCER
JACK/PLUG-INDUCER/IGNITER
JACK/PLUG-IGNITION
9
J48
P48
INDOOR
BLOWER
MOTOR
C
L
G
N
WHT/BLK
BLACK
GN/YLW
WHT
B3
24-V
COM.
P49
4
3
2
1
5
CUT W915 JUMPER LABELED "2 STAGE COMPR."
FROM Y1 TO Y2 AT A92 CONTROL WHEN USED
WITH A 2 STAGE COOL THERMOSTAT.
DF045-12
BRN W / YEL
BLACK
BLUE
030-08
YELLOW
RED
BROWN

Related product manuals