EasyManua.ls Logo

Alpine ALP150B - Boiler Clearances to Combustible (and Non-Combustible) Material

Alpine ALP150B
152 pages
Print Icon
To Next Page IconTo Next Page
To Next Page IconTo Next Page
To Previous Page IconTo Previous Page
To Previous Page IconTo Previous Page
Loading...
103448-07 - 1/16 11
2. Alpine boilers are not intended to support
external piping and venting. All external piping and
venting must be supported independently of the
boiler.
3. Alpine boilers must be installed level to
prevent condensate from backing up inside the
boiler.
4. Alpine boilers can be installed either as oor
standing (ALP080B through ALP285B) or as wall
hung (ALP080B through ALP210B). Factory
assembled oor standing models are identied with
sufx F in a boiler part number code (example _
ALP210BF-1L02). Factory assembled wall hung
models are identied with sufx W in a boiler part
number code (example - ALP210BW-1L02).
5. Boiler Floor Standing Installation:
a. For basement installation provide a solid base
such as concrete, where oor is not level or water
may be encountered on the oor around boiler.
Floor must be able to support weight of boiler,
water and all additional system components.
b. Boiler must be level to prevent condensate from
backing up inside the boiler.
c. Provide adequate space for condensate piping or
a condensate pump if required.
Boiler Clearances to Combustible (and Non-
Combustible) Material:
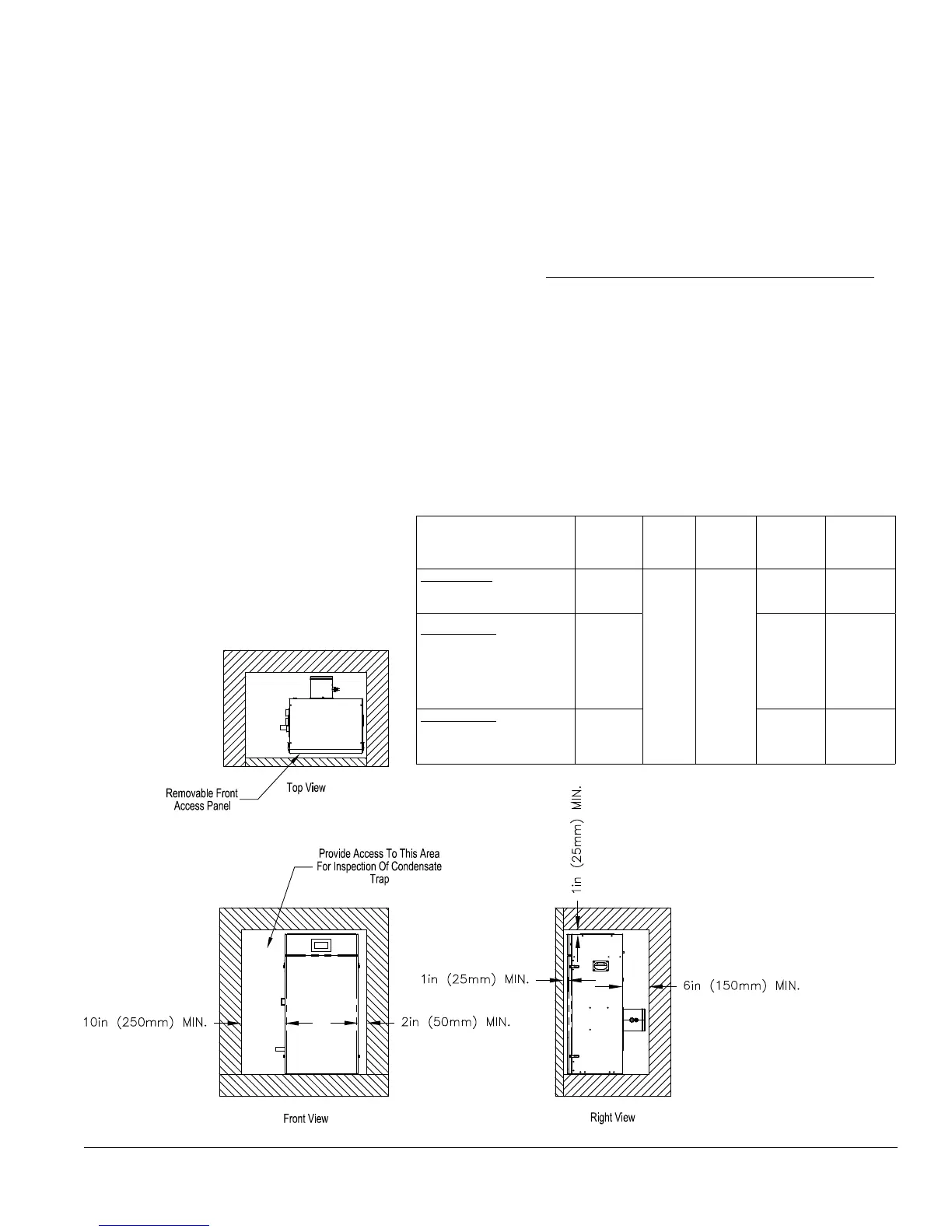
Models ALP080B through ALP210B and ALP285B:
These boilers are listed for closet installation with the
following minimum clearances – Top = 1 in. (25 mm),
Front = 1 in. (25 mm), Left Side = 10 in. (250 mm),
Right Side = 2 in. (50 mm), Rear = *6 in. (150 mm)
* Note:
When boiler is vented vertically, the minimum
clearance from the rear of the jacket is increased to
18 in. (460 mm) with a short radius 90° elbow in
order to provide adequate space at boiler rear for
installation of vent and air intake piping and service
access.
III. Pre-Installation and Boiler Mounting G. General (continued)
Listed Direct
Vent System
Vent Pipe
Material
Vent
Pipe
Direction
Enclosure
Vent Pipe
Nominal
Diameter
Minimum
Clearance to
Combustible
Material
Factory Standard
Two-Pipe CPVC/PVC Vent and PVC
Combustion Air Intake
* CPVC/PVC
Vertical or
Horizontal
Unenclosed
at all Sides
3 in. (80 mm)
or
4 in.( 100 mm)
1 in. (25 mm)
Available Optional
Two-Pipe Rigid Polypropylene Vent
(or, Flexible Polypropylene Liner
for Vertical Venting only) and Rigid
Polypropylene or PVC Combustion
Air Intake
Pipe Rigid
Polypropylene
Vent (or,
Flexible
Polypropylene
Liner for
Vertical
Venting only)
3 in. (80 mm)
or (110 mm)
or
4 in. (100 mm)
or (110 mm)
1 in. (25 mm)
Available Optional
Two-Pipe Stainless Steel Vent and
Galvanized Steel or PVC Combustion
Air Intake
Stainless
Steel
3 in. (80 mm)
or
4 in.( 100 mm)
1 in. (25 mm)
Figure 2A: Clearances To Combustible and Non-combustible Material, Floor Standing

Table of Contents

Related product manuals