EasyManua.ls Logo

Alpine ALP150B - Page 7

Alpine ALP150B
152 pages
Print Icon
To Next Page IconTo Next Page
To Next Page IconTo Next Page
To Previous Page IconTo Previous Page
To Previous Page IconTo Previous Page
Loading...
103448-07 - 1/16 7
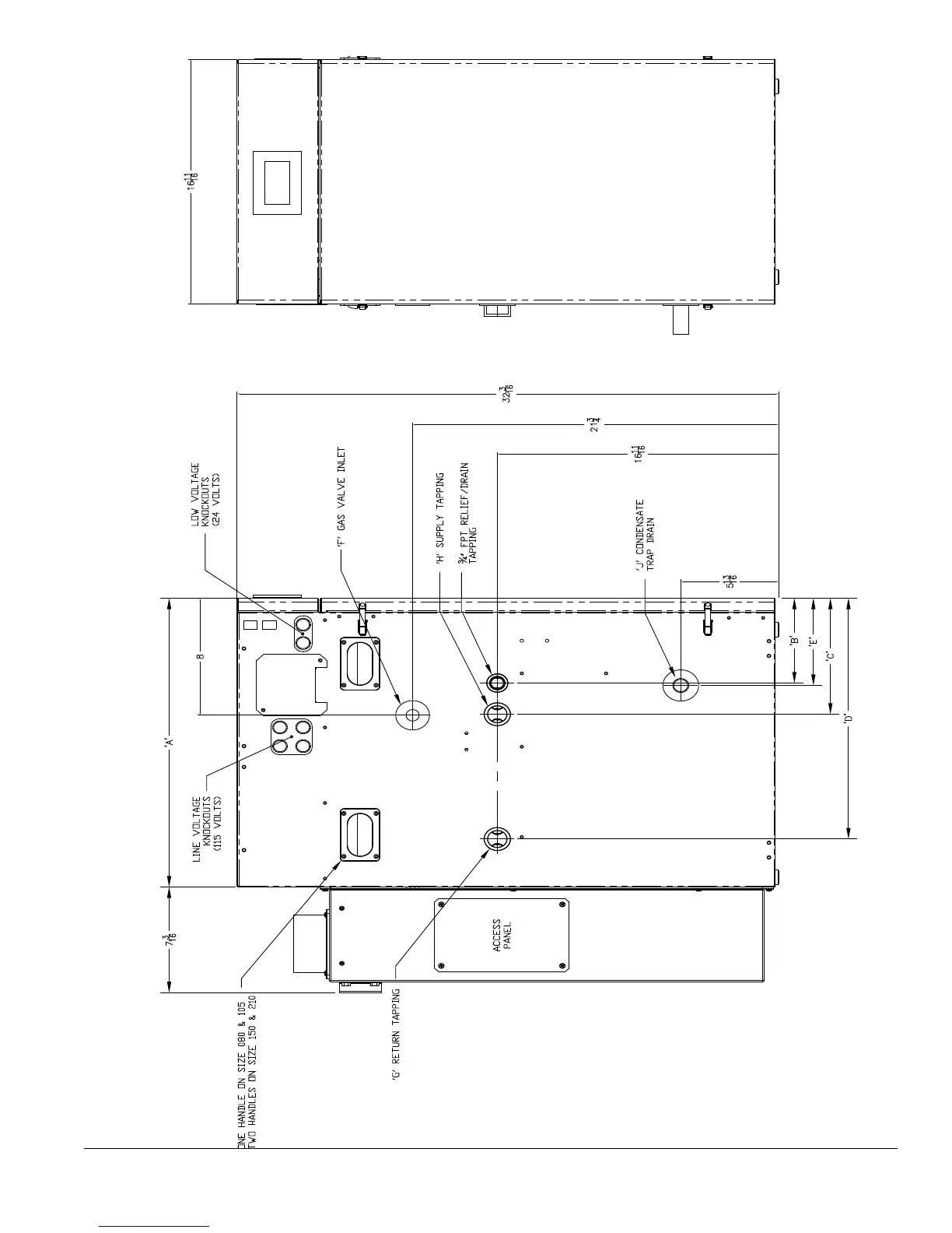
Figure 1B: Models ALP080B through ALP210B (Wall or Floor Mounted)
I. Product Description, Specications and Dimensional Data (continued)

Table of Contents

Related product manuals