EasyManua.ls Logo

Amada HFA-250 - Page 32

Amada HFA-250
174 pages
Print Icon
To Next Page IconTo Next Page
To Next Page IconTo Next Page
To Previous Page IconTo Previous Page
To Previous Page IconTo Previous Page
Loading...
I-12
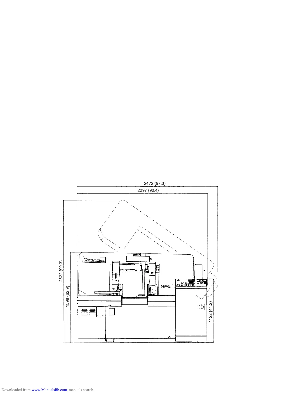
Machine dimensions
Unit: mm {in.}
2472 {97.3}
2297 {90.4}
2522 {99.3}
1598 {62.9}
1122 {44.2}

Table of Contents

Related product manuals