EasyManua.ls Logo

Amada HFA-250 - Page 39

Amada HFA-250
174 pages
Print Icon
To Next Page IconTo Next Page
To Next Page IconTo Next Page
To Previous Page IconTo Previous Page
To Previous Page IconTo Previous Page
Loading...
II-3
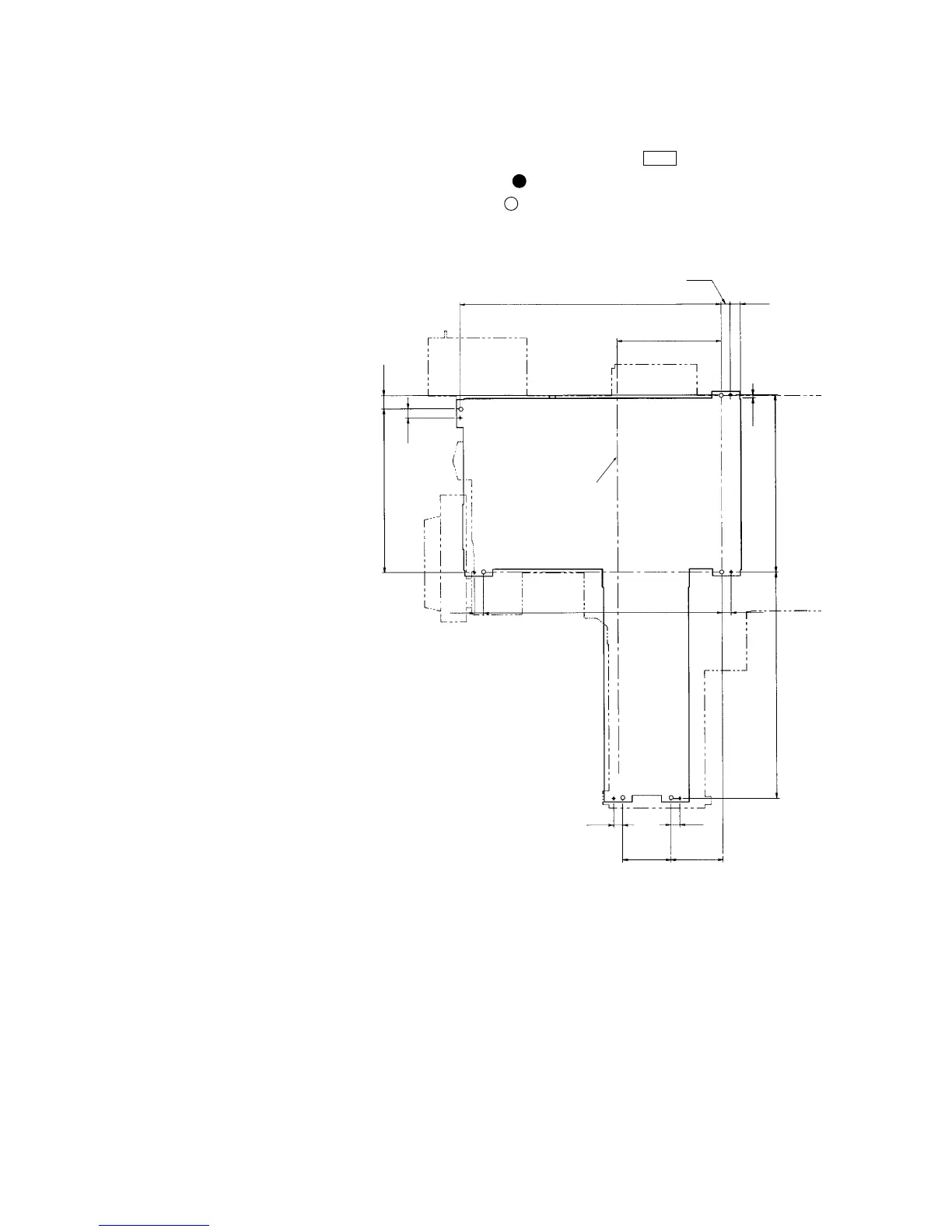
HFA-400 and HFA-400W foundation drawing
Position where machine leg rests on floor:
Leveling bolt position:
Anchor bolt position:
Unit: mm {in.}
1445 {56.89}
576 {22.68}
50 {1.97}
57 {2.24}
266
{10.47}
50 {1.97}50 {1.97}
50 {1.97}
288
{11.34}
1255 {49.41}
979 {38.54}
905 {35.63}
17 {0.67}
50
{1.97}
50
{1.97}
50
{1.97}
50 {1.97}
74 {2.91}
1320 {51.97}1320 {51.97}
STATIONARY VISE
JAW SURFACE

Table of Contents

Related product manuals