EasyManua.ls Logo

American Eagle SRS-65 - Hydraulic Circuit with Auxiliary Cooler

Default Icon
34 pages
Print Icon
To Next Page IconTo Next Page
To Next Page IconTo Next Page
To Previous Page IconTo Previous Page
To Previous Page IconTo Previous Page
Loading...
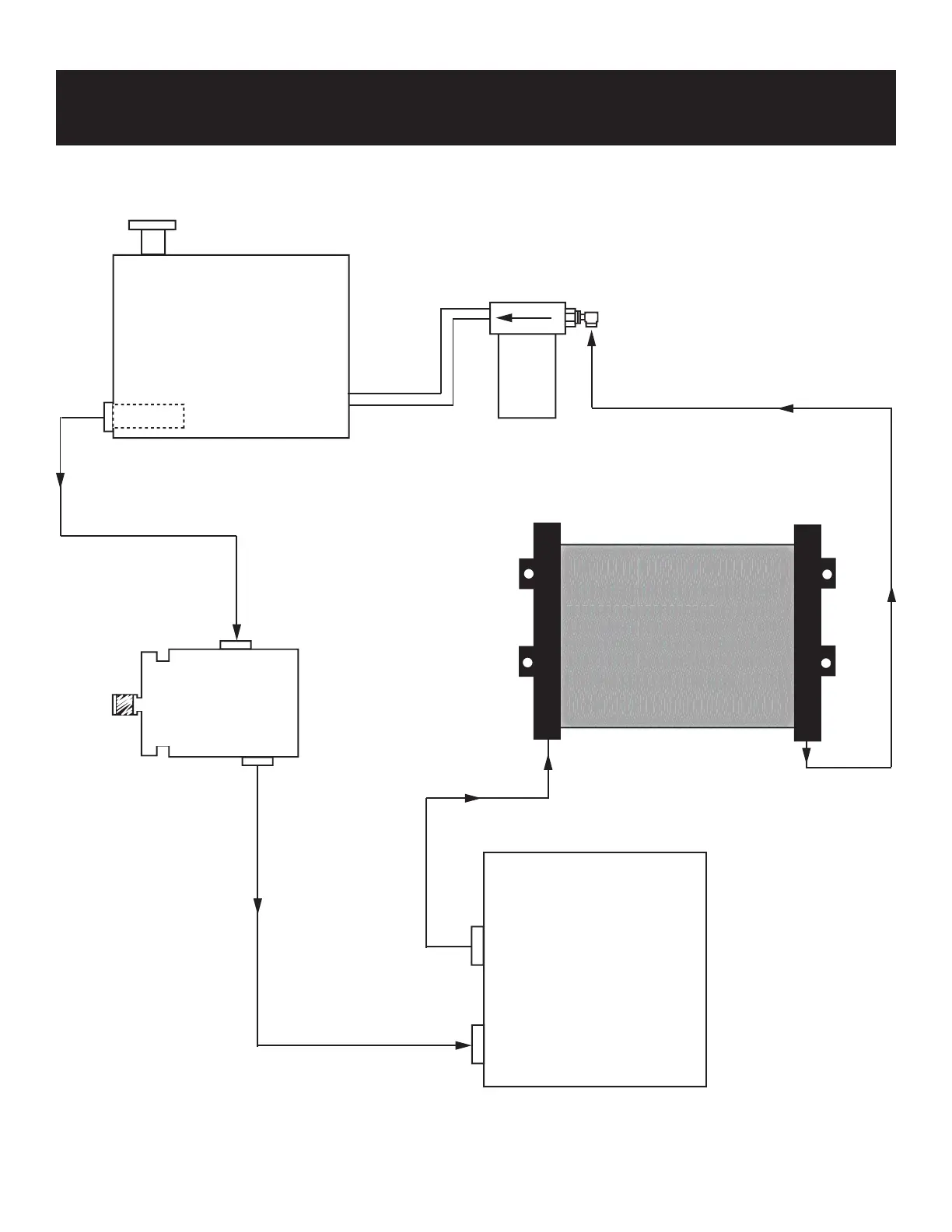
Installation 
Typical Hydraulic Circuit for Compressor
with Auxiliary Cooler
COMPRESSOR
RETURN
PRESSURE
AUXILIARY
COOLER
SINGLE
HYDRAULIC
PUMP
SUCTION PORT
FILTE R
FILTER SCREEN
HYDRAULIC
RESERVOIR

Related product manuals