EasyManua.ls Logo

Ashley AP5790 - Special Mobile Home Requirements

Ashley AP5790
56 pages
Print Icon
To Next Page IconTo Next Page
To Next Page IconTo Next Page
To Previous Page IconTo Previous Page
To Previous Page IconTo Previous Page
Loading...
-8-
SPECIAL MOBILE HOME REQUIREMENTS
WARNING! - Do not install in a sleeping room.
CAUTION! - The structural integrity of the mobile home oor, wall,
and ceiling/roof must be maintained.
In addition to the previously detailed installation requirements,
mobile home installations must meet the following requirements:
The unit must be secured to the oor using lag bolts in the holes
provided in the pedestal base.
The heater must be electrically grounded to the steel chassis
of the mobile home with 8 GA copper wire using a serrated or
star washer to penetrate paint or protective coating to ensure
grounding.
Vent must be 3 or 4-inch “PL” Vent and must extend a minimum or
36 in.(914mm) above the roof line of the mobile home and must
be installed using a UL listed ceiling re stop and rain cap.
When moving your mobile home, all exterior venting must be
removed while the mobile home is being relocated. After
relocation, all venting must be reinstalled and securely fastened.
Outside Air is mandatory for mobile home installation. See Outside
Air Supply section and your dealer for purchasing.
Check with your local building ofcials as other codes may apply.
Installation
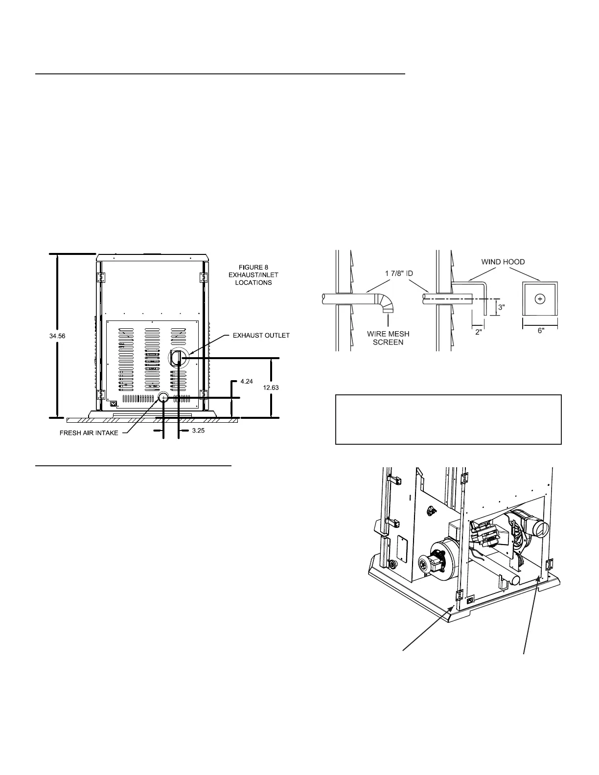
NOTE: Dimensions from the oor to your
stoves inlet/exhaust pipes are approximate
and may vary depending on your installation.
Figure 9
Typical Fresh Air Termination
OUTSIDE AIR SUPPLY (OPTIONAL, UNLESS INSTALLING IN A MOBILE HOME)
Adequate ventilation air is required to operate this heater. During operation, the heater draws air for combustion
which can be assisted by the installation of outside combustion air inlets. However, certain weather conditions
such as icing or use of kitchen exhaust fans may impact and reduce the effectiveness of vents. It is important to
note that room air starvation will negatively impact the operation of the heater.
Depending on your location and home construction, outside air may be necessary for optimal performance.
Metal pipe (solid or exible) must be used for the outside air installation. PVC pipe is NOT approved and should
NEVER be used.
A wind shield over the termination of the outside air pipe or a 90-degree elbow or bend away from the prevailing
winds MUST be used when an outside air pipe is installed through the side of a building. The outside air termination
MUST be at least 1ft (0.305m) away from the exhaust system termination.
The outside air pipe on your heater is 2” (50.8mm) OD. The outside air connecting pipe must be at least 2”
(50.8mm) ID. The outside air connection used MUST NOT restrict the amount of air available to your heater. The
outside air connecting pipe must be as short and free of bends as possible, and it must t over, not inside, the
outside air connection to the heater.
Mobile Home
Mounting
Bolt Hole
Mobile Home
Mounting Bolt Hole

Other manuals for Ashley AP5790

Related product manuals