EasyManua.ls Logo

Asko D5532 FI - Installation

Asko D5532 FI
24 pages
Print Icon
To Next Page IconTo Next Page
To Next Page IconTo Next Page
To Previous Page IconTo Previous Page
To Previous Page IconTo Previous Page
Loading...
INSTALLATION
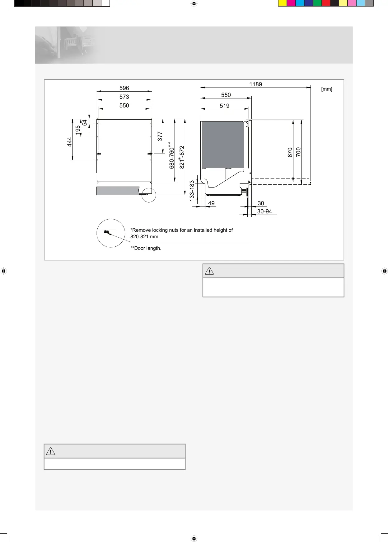
519
1189
550
30-94
596
573
550
54
377
680-760
30
670
195
444
49
700
821 -872
133-183
[mm]
*Remove locking nuts for an installed height of
820-821 mm.
**Door length.
It is important that you read through and follow the instructions
and directions below. Conduct installation and connection in
accordance with the separate installation instructions.
SAFETY INSTRUCTIONS
Connections to electricity, water and drainage must be
performed by a qualified professional.
Electrical, water and drainage installations must be carried out
by a qualified professional.
Always follow applicable regulations for water, drainage and
electricity.
An incorrect or flawed installation can result in higher
consumption of energy, water and detergent, which can result
in increased costs and poor dishwashing results. In order to
minimise noise it is important that you follow the instructions.
Exercise caution during installation! Use protective gloves!
Always have someone assist you!
Place a watertight protective tray on the floor under the
dishwasher to prevent damage from any water leaks.
Before screwing the dishwasher into place, test the dishwasher
by running the Rinse & Hold program. Check that the
dishwasher fills with water and drains. Check also that none of
the connections leak.
WARNING!
Turn off the water supply when installing the dishwasher!
WARNING!
The plug must be disconnected or power to the socket turned
off while the work is carried out!
SETUP
The recess and connection dimensions are included in the
separate installation instructions. Check that all dimensions are
correct before starting the installation.
Make sure the area on which the dishwasher is to be installed
is firm. Adjust the adjustable feet so that the dishwasher is level.
Tighten the lock nuts.
Stronger door springs are available for purchase for dishwashers
with a fitted wooden door. Springs are available for various
weights and sizes of wooden door. Door springs can be
purchased from the retailer who sold you the dishwasher.
DRAINAGE CONNECTION
See the separate installation instructions for all necessary
information.
The drainage hose may be extended by a maximum of 3 m (the
total length of the drainage hose must not exceed 4.5 m). Any
joins and connecting pipes must have an internal diameter of at
least 14 mm. However, the drainage hose should ideally be
replaced with a new hose without joins.
No part of the drainage hose may be more than 950 mm above
the bottom of the dishwasher. The hose must not be routed
directly to a floor drain or the like. In such cases, the hose can act
as a siphon and empty the dishwasher.
18

Related product manuals